PE28 4JJ - 3 bed spacious village family home in Spires End, PE28 4JJ

View on Property Piper

3 bedroom detached house for sale in Spires End, Alconbury Weston, Huntingdon, PE28 4JJ, PE28

Summary - 4 SPIRES END ALCONBURY WESTON HUNTINGDON PE28 4JJ

3 bed 2 bath Detached

Large quiet-plot detached house with garage, summer house and excellent transport links.
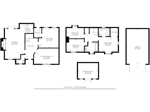
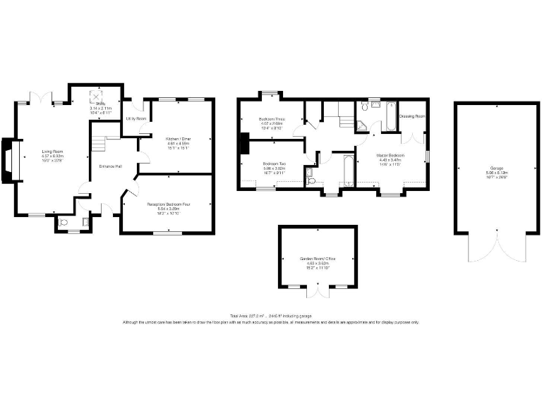
Detached 3-bedroom home with generous 23ft living room and inglenook fireplace
Set on a quarter-acre plot in a quiet private road, this detached family home combines generous living spaces with character details and practical tech. The 23ft living room with substantial inglenook and French doors is a warm entertaining hub, while a separate reception can double as a guest or fourth bedroom. A fully insulated summer house with power provides a useful home-studio or hobby room.

Practical features include a 27ft double garage with electric car charger, Gigaclear high-speed internet and mains gas central heating. The kitchen/diner and utility room support family life, and upstairs the master suite offers an en-suite, walk-in wardrobe and three double bedrooms in total. The property sits elevated with leafy front and rear outlooks and private driveway parking.

There are a few material points to note: the house is timber-framed (built early 1990s) and double glazing install dates are not provided. Flood risk is rated medium for the area, and council tax is described as expensive. The double garage offers scope for annexe conversion subject to planning — a possible value-add for multi-generational living or rental income.

This home suits families seeking space, village life and quick road links; Alconbury Weston delivers local amenities, good primary schools and easy access to the A1/A14 and Huntingdon train station. For buyers who value generous indoor/outdoor living and modern connectivity, this property presents ready-to-enjoy accommodation with sensible potential to adapt further.

Property Details

Image Descriptions

Floorplan Description

Rooms

Textual Property Features

Target Audience

AI Tags

Detected Visual Features

EPC Details

Nearby Schools

Nearest Bars And Restaurants

,,,,}

Nearest General Shops

,,}

Nearest Grocery shops

,,}

Nearest Supermarkets

,,}

Nearest Religious buildings

,,}

Nearest Medical buildings

,,,}

Nearest Leisure Facilities

,,,,}

Nearest Tourist attractions

,,}

Nearest Train stations

,,,,}

Nearest Bus stations and stops

,,,,}

Nearest Hotels

,,}

Tags

Local Market Stats

Similar Properties

Meta

High Res Images

Compatible Images

Low res Images

Thumbnails

Raw Images

High Res Floorplan Images

Compatible Floorplan Images

Low res Floorplan Images

FloorplanImages Thumbnail

Raw Floorplan Images