Two‑bed family home with garden and renovation potential.
No onward chain, freehold tenure
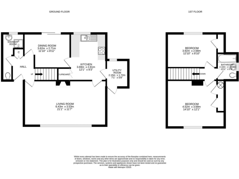
Set on a generous plot in peaceful Porthleven, this link‑detached two‑bedroom house offers sea and countryside views and scope to create a comfortable family home. The wraparound gardens and raised terraces provide space for outdoor living and landscaping, while the detached garage and on‑drive parking add practical convenience.
The property requires updating throughout — the kitchen and bathrooms are dated and the house needs modernisation and thermal improvements. The EPC rating is F (31) and heating is by an oil boiler; cavity walls are understood to have no insulation, so buyers should factor refurbishment and energy upgrades into their plans.
Sold freehold and offered with no onward chain, the house will suit a family or buyer seeking a renovation project in a sought‑after coastal village. Local amenities, primary schooling and the harbour are within walking distance, and broadband and mobile coverage are strong. Motivated sellers are open to offers.
3 bedroom detached bungalow for sale in Three bed bungalow, Porthleven, TR13 — £300,000 • 3 bed • 1 bath • 627 ft²
4 bedroom detached house for sale in Detached home close to village centre, Porthleven, TR13 — £450,000 • 4 bed • 3 bath • 1045 ft²
2 bedroom detached bungalow for sale in Treza Road, Porthleven, TR13 — £325,000 • 2 bed • 1 bath • 769 ft²
2 bedroom detached bungalow for sale in Porthleven TR13 — £330,000 • 2 bed • 1 bath • 528 ft²
3 bedroom semi-detached house for sale in Wheal Rose, Porthleven, Helston, Cornwall, TR13 — £255,000 • 3 bed • 1 bath • 791 ft²
4 bedroom semi-detached house for sale in Gibson Way, Porthleven, Helston, TR13 — £320,000 • 4 bed • 2 bath • 1023 ft²














































































































































































































