Contemporary family living with riverside walks and modern warranties.
10-year NHBC warranty gives structural cover for new-build buyers
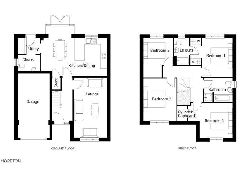
Open-plan kitchen-diner with breakfast bar and French doors to garden
Master bedroom with dressing area, Hammonds wardrobes and en-suite
Integral garage plus utility room and downstairs cloakroom
Close to riverside walks and green open space for families
Total size c.1,392 sq ft; average-sized family home footprint
Small rear/side plot; limited external space for large gardens
Local area records very high crime and high deprivation statistics
This newly built four-bedroom detached home combines contemporary living with practical family layout. The open-plan kitchen-diner with breakfast bar and French doors creates a bright, sociable ground floor, while an 18ft lounge offers a separate relaxation space. A utility room, cloakroom and integral garage add everyday convenience.
The first-floor master suite includes a dressing area, Hammonds wardrobes and an en-suite with both shower and bath, complemented by three further bedrooms and a luxury family bathroom. The property benefits from a 10-year NHBC warranty and modern Symphony kitchen fittings.
Set close to riverside walks and green space, the location suits families who value outdoor routes and easy access to Doncaster town centre. The home’s 1,392 sq ft interior is an average-sized family footprint with thoughtfully designed rooms.
Buyers should note material local factors: the surrounding area records very high crime levels and high deprivation, and the plot is relatively small. These are important when weighing long-term suitability, security needs, and resale considerations.
5 bedroom detached house for sale in Wheatley Hall Road,
Doncaster,
DN2 4FH, DN2 — £515,000 • 5 bed • 3 bath • 2138 ft²
3 bedroom detached house for sale in Wheatley Hall Road,
Doncaster,
DN2 4FH, DN2 — £270,000 • 3 bed • 2 bath • 970 ft²
4 bedroom detached house for sale in Wheatley Hall Road,
Doncaster,
DN2 4FH, DN2 — £325,000 • 4 bed • 2 bath • 1278 ft²
4 bedroom detached house for sale in Wheatley Hall Road,
Doncaster,
DN2 4FH, DN2 — £360,000 • 4 bed • 2 bath • 1548 ft²
5 bedroom detached house for sale in Wheatley Hall Road,
Doncaster,
DN2 4FH, DN2 — £437,000 • 5 bed • 3 bath • 1762 ft²
4 bedroom detached house for sale in Pheasant Hill Park,
Rossington,
DN11 0TT, DN11 — £369,000 • 4 bed • 1 bath • 1123 ft²














































