Spacious modern family layout with garage and move-in incentives.
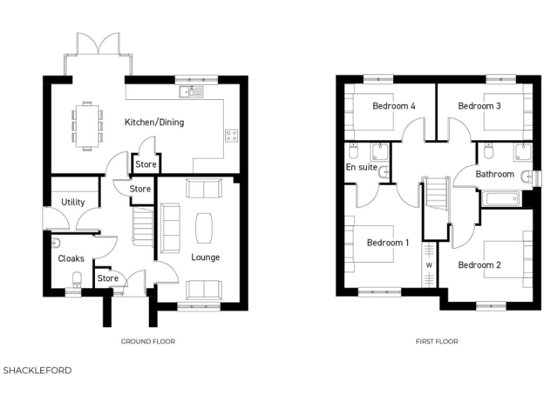
- New-build four-bedroom detached house, approximately 1,548 sq ft
- Large open-plan kitchen/diner with garden access and utility room
- Master bedroom with en-suite and fitted wardrobe options
- Detached garage and off-street parking
- Wet rooms provided on ground and first floors
- Part-exchange, deposit boost and flooring incentives available
- Small plot and garden; limited external space
- Local area: very high crime and very deprived neighbourhood
This new-build four-bedroom detached home offers modern family living with generous internal space and practical layout. The ground floor features a large open-plan kitchen/dining area with garden access, a separate living room, utility room and cloakroom; upstairs there is a master bedroom with en-suite plus three double bedrooms and a family bathroom.
The Shackleford provides useful extras such as a detached garage, wet rooms on the ground and first floors, and choices of Symphony kitchen units and fitted wardrobes to personalise the home. Incentives advertised include part-exchange, deposit support and flooring throughout, which can reduce typical moving friction and help you move sooner.
Buyers should note the location facts plainly: the development sits in a very deprived area with very high recorded crime and a small plot size. The setting is a minor conurbation on the edge of riverside green space, so while there are nearby outdoor routes and local amenities, the immediate neighbourhood has challenges that may affect resale and long-term desirability.
This property suits families seeking a spacious, low-maintenance new home with up-to-date fittings and practical layout, who value the purchase incentives and are comfortable with the local social and safety profile.
4 bedroom detached house for sale in Wheatley Hall Road,
Doncaster,
DN2 4FH, DN2 — £325,000 • 4 bed • 2 bath • 1278 ft²
4 bedroom detached house for sale in Wheatley Hall Road,
Doncaster,
DN2 4FH, DN2 — £355,000 • 4 bed • 2 bath • 1392 ft²
5 bedroom detached house for sale in Wheatley Hall Road,
Doncaster,
DN2 4FH, DN2 — £515,000 • 5 bed • 3 bath • 2138 ft²
5 bedroom detached house for sale in Wheatley Hall Road,
Doncaster,
DN2 4FH, DN2 — £437,000 • 5 bed • 3 bath • 1762 ft²
4 bedroom detached house for sale in Pheasant Hill Park,
Rossington,
DN11 0TT, DN11 — £369,000 • 4 bed • 1 bath • 1123 ft²
4 bedroom detached house for sale in Pheasant Hill Park,
Rossington,
DN11 0TT, DN11 — £368,000 • 4 bed • 1 bath • 1096 ft²






































