W11 1WE - 2 bedroom maisonette for sale in Hurstway Walk, North Kensi…

View on Property Piper

2 bedroom maisonette for sale in Hurstway Walk, North Kensington, W11

Summary - 434 HURSTWAY WALK LONDON W11 1WE

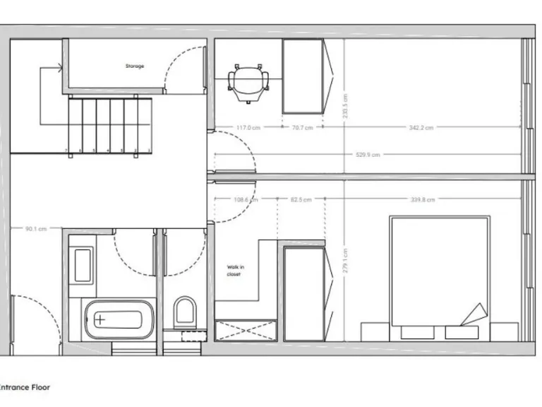
2 bed 1 bath Maisonette

**Standout Features:**
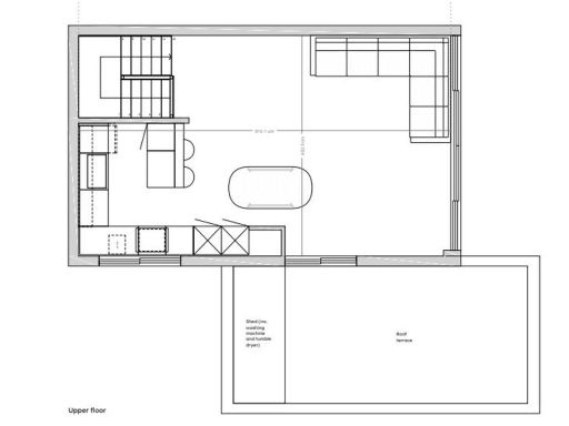
- Dual-level layout with an open-plan design
- Two double bedrooms with good natural light
- Secluded garden patio and private roof terrace
- Prime location in Notting Hill, near Portobello Road
- Community feel with excellent transport links (Latimer Road and Ladbroke Grove)
- Average size at 840 sq ft, ideal for modern living
- Leasehold with 83 years remaining, requiring prompt renewal

**Summary:**
Discover charming urban living in this dual-level maisonette located in the heart of Notting Hill. With an open-plan layout, the spacious living/dining area features large windows that flood the space with natural light, enhancing the modern-industrial vibe. The two double bedrooms provide comfort and flexibility, while the secluded garden patio and private roof terrace offer ideal spots for relaxation.

This 840 sq ft property not only boasts a prime location near the vibrant Portobello Road but also accesses the serene green spaces of Kensington Memorial Park. The area is family-friendly, with several excellent schools nearby, making it perfect for families and young professionals alike. Keep in mind that the lease has 83 years remaining, necessitating renewal soon, and the service charge stands at £3,000 annually. Don’t miss out on this unique opportunity to secure a home with endless potential in one of London’s most desirable neighborhoods!

Property Details

Brochure Descriptions

Image Descriptions

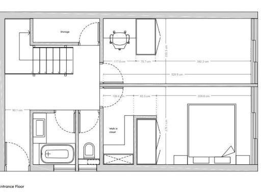
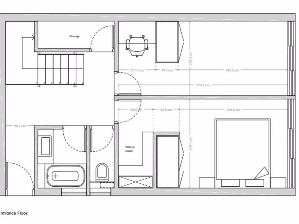
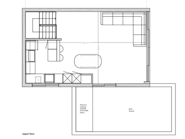
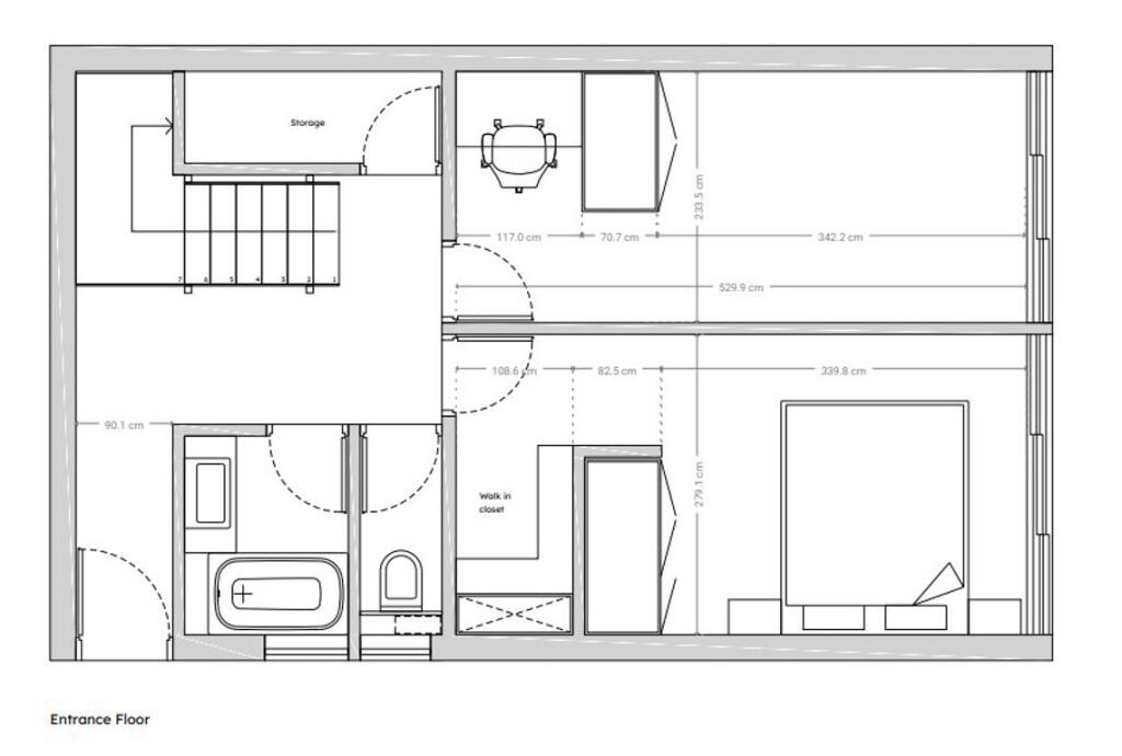
Floorplan Description

Rooms

Textual Property Features

Detected Visual Features

EPC Details

Nearby Schools

Nearest Bars And Restaurants

,,,,}

Nearest General Shops

,,}

Nearest Grocery shops

,,}

Nearest Supermarkets

,,}

Nearest Religious buildings

,,}

Nearest Medical buildings

,,,}

Nearest Airports

,}

Nearest Leisure Facilities

,,,,}

Nearest Tourist attractions

,,}

Nearest Train stations

,,,,}

Nearest Bus stations and stops

,,,,}

Nearest Hotels

,,}

Tags

Local Market Stats

AirBnB Data

Similar Properties

Meta

High Res Images

Compatible Images

Low res Images

Thumbnails

Raw Images

High Res Floorplan Images

Compatible Floorplan Images

Low res Floorplan Images

FloorplanImages Thumbnail

Raw Floorplan Images