**Standout Features:**
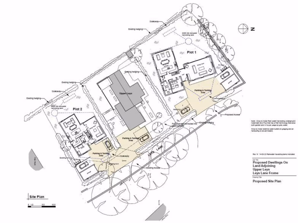
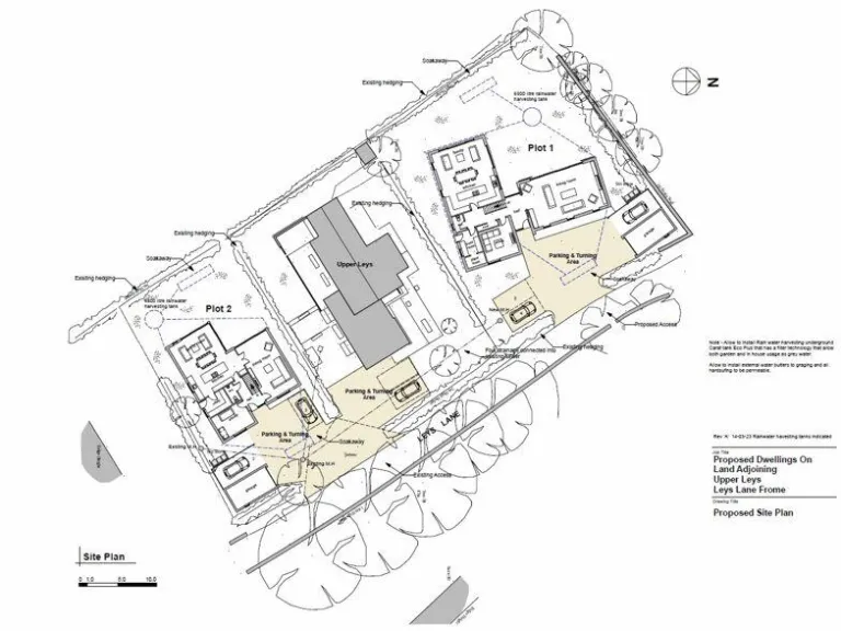
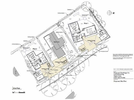
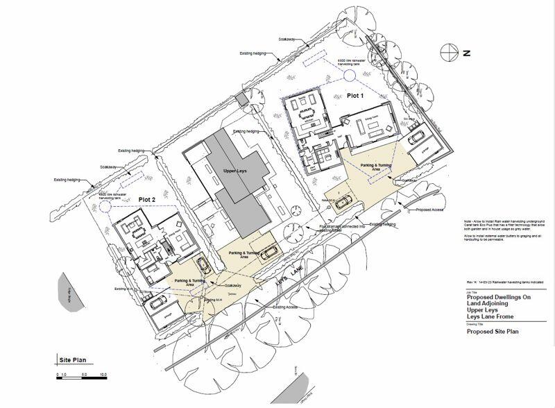
- Building plot with full planning permission for a 3,821 sqft detached dwelling
- Secluded setting on the northern fringe of Frome, offering privacy
- Large garden space with landscaping potential
- Low crime rate and affluent area, ideal for families or investors
- Garage included with plans for additional parking
**Summary:**
Seize a rare opportunity to develop your dream home on this expansive building plot in a peaceful, affluent neighborhood. This sought-after location comes with full planning permission for a striking two-storey residence, boasting a versatile layout featuring up to four bedrooms and three bathrooms across 3,821 sqft. The property is designed to maximize natural light, with large windows and spacious open-plan living areas, while the generous garden offers ample room for outdoor activities and landscaping.
Nestled in an upscale suburb of Frome, this plot enjoys a tranquil environment with low crime, surrounded by amenities and reputable schools. Whether you envision a family haven or a lucrative investment, this rare opportunity to create a bespoke home awaits—don't miss out! With its unique setting and size, this offering won't last long in today’s market, so act swiftly to make your vision a reality.
Land for sale in Building Plot, Frome, BA11 — £300,000 • 4 bed • 2 bath • 2487 ft²
Plot for sale in North Road, Midsomer Norton, BA3 — £110,000 • 4 bed • 2 bath • 1635 ft²
Plot for sale in The Old Dairy, Chelynch, BA4 — £700,000 • 1 bed • 1 bath • 4000 ft²
Plot for sale in Rudge Lane, Standerwick, Frome, BA11 2PT, BA11 — £495,000 • 1 bed • 1 bath • 3099 ft²
Land for sale in Land At Old Gore Lane, Emborough, Radstock,, BA3 — £350,000 • 1 bed • 1 bath
Plot for sale in ***a Selection Of 2 Self-build Building Plots With Implemented Planning Permission In Place***, BA3 — £150,000 • 1 bed • 1 bath














































