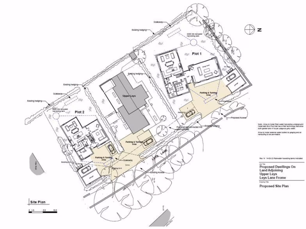
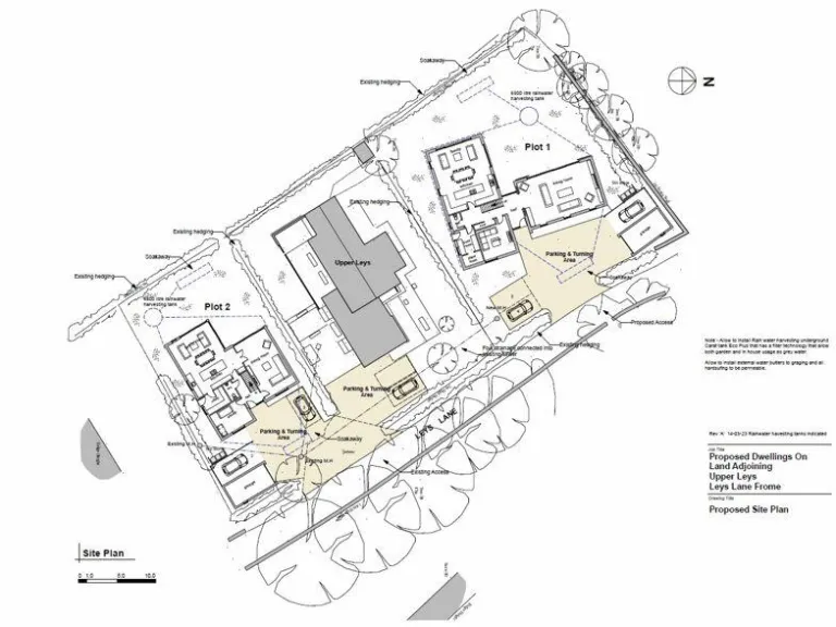
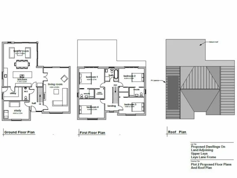
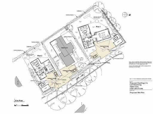
**Standout Features:**
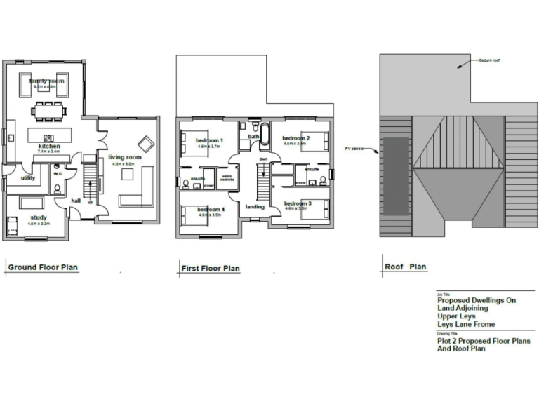
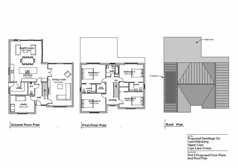
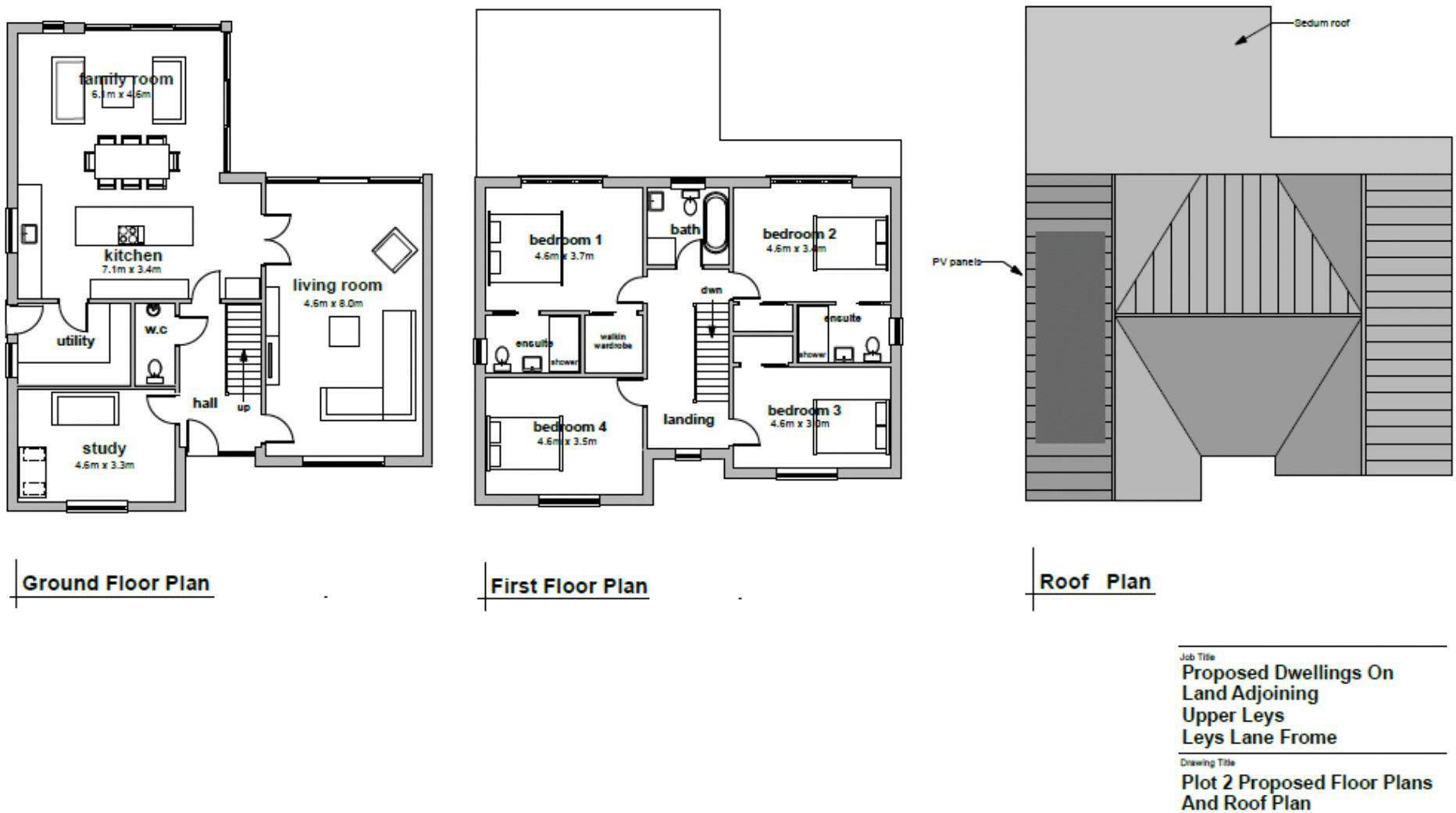
- Full planning permission for a spacious 2,487 sqft (231 sqm) detached dwelling (Planning Reference: 2023/0088/FUL)
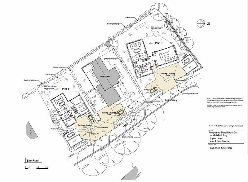
- Serene setting on the northern fringe of Frome
- Generous garden space with opportunities for landscaping
- All necessary utilities: mains water, surface water drainage, and electricity available
- Very low crime rate in a wealthy and affluent area
- Excellent mobile signal, though broadband speeds are slower
**Potential Concerns:**
- Future construction may involve planning and development logistics
- Current land condition and landscaping may require initial maintenance
This exceptional building plot in Frome offers a rare opportunity to create your dream home in a tranquil and private setting. With approved plans for an expansive 4-bedroom, 2-bathroom residence, this plot has the potential to become a luxurious family dwelling combining modern aesthetics and the charm of lush surroundings. The area boasts several highly-rated schools, making it a perfect location for families. Envision entertaining in an impressive garden or relaxing in airy living spaces filled with natural light, framed by views of the surrounding greenery.
The plot is priced attractively at £300,000, making it an excellent investment for those seeking the perfect canvas for their future home or a rental opportunity. Don’t miss this unique chance to secure a highly desirable piece of land in a peaceful and affluent neighborhood—explore the endless possibilities today!
Land for sale in Building Plot, Frome, BA11 — £400,000 • 4 bed • 3 bath • 3821 ft²
Land for sale in Land At Old Gore Lane, Emborough, Radstock,, BA3 — £350,000 • 1 bed • 1 bath
Plot for sale in North Road, Midsomer Norton, BA3 — £110,000 • 4 bed • 2 bath • 1635 ft²
Plot for sale in The Old Dairy, Chelynch, BA4 — £700,000 • 1 bed • 1 bath • 4000 ft²
Land for sale in Chilcompton, Wells Road, BA3 4EX, BA3 — £750,000 • 1 bed • 1 bath • 3900 ft²
Plot for sale in Rudge Lane, Standerwick, Frome, BA11 2PT, BA11 — £495,000 • 1 bed • 1 bath • 3099 ft²






















































