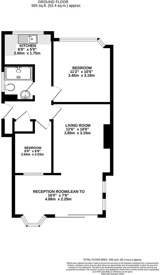
**Standout Features**:
- Two bedrooms, ground floor maisonette
- Private front and rear gardens
- Chain-free with vacant possession
- Ideal for cash buyers only
- Located in a quiet cul-de-sac, walking distance to Whitton High Street
- Requires updating and modernization
This two-bedroom ground floor maisonette offers a unique opportunity for cash buyers looking to make their mark. Situated in a tranquil cul-de-sac just a short stroll from Whitton High Street, this property boasts a private garden, perfect for outdoor living. While the interiors are in need of some updating, the spacious living area and potential for customization offer excellent renovation prospects, making it an ideal canvas for first-time buyers or those looking to invest.
With approximately 565 square feet of comfortable living space, this property includes two modest bedrooms, a cozy living/dining room with a charming fireplace, and compact kitchen—all awaiting your personal touch. The front and enclosed rear gardens provide additional outdoor space to enhance your lifestyle. While the property is in a convenient location surrounded by local amenities and good schools, it is essential to note that it requires improvements, presenting a rewarding project for the right buyer. Don't miss out on this promising opportunity for affordable living in a sought-after area!
2 bedroom maisonette for sale in Bramley Close, Whitton, TW2 — £350,000 • 2 bed • 1 bath • 579 ft²
2 bedroom maisonette for sale in Bramley Close, Twickenham, TW2 — £325,000 • 2 bed • 1 bath • 454 ft²
2 bedroom maisonette for sale in Whitton Dene, Isleworth, TW7 — £375,000 • 2 bed • 1 bath • 694 ft²
2 bedroom flat for sale in Whitton Road, Hounslow, TW3 — £250,000 • 2 bed • 1 bath • 604 ft²
2 bedroom flat for sale in Hounslow Road, Whitton, TW2 — £315,000 • 2 bed • 1 bath • 676 ft²
2 bedroom apartment for sale in Chertsey Road, Twickenham, TW2 — £375,000 • 2 bed • 1 bath • 675 ft²






































