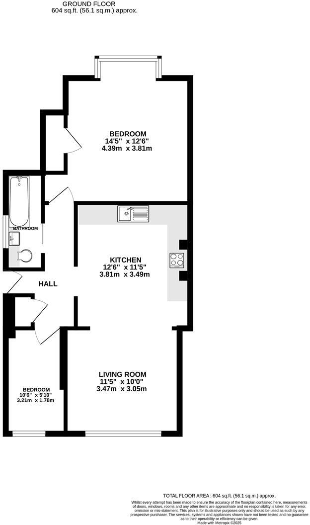
**Standout Features:**
- Ground floor maisonette with two bedrooms
- Large rear garden, currently overgrown
- Off-street parking for one vehicle
- Gas heating system
- Conveniently located near Hounslow Railway Station and local shops
- Requires full modernisation
- Short lease of 63 years; cash buyers only
- Competitively priced at £250,000
This charming ground floor maisonette offers a unique opportunity for cash buyers and investors seeking a project in a prime location. Boasting two well-sized bedrooms and an expansive open-plan kitchen/diner/living room, this property is begging to be revitalized. The large rear garden, though currently a bit unruly, holds immense potential for outdoor enthusiasts. With off-street parking conveniently available, this home is perfectly suited for those who value quick access to amenities and transport links.
Though it's in need of complete modernisation, this competitively priced home presents an exciting chance to design your dream space in an affluent and multicultural community. Expect some renovations and improvements, particularly to address the short lease term, which is likely to limit mortgage options. However, with schools and recreational spaces nearby, this property could become a delightful family home or a lucrative rental investment. Don't miss out on this opportunity to transform a hidden gem into a personal sanctuary in an increasingly desirable area!
2 bedroom maisonette for sale in Whitton Dene, Isleworth, TW7 — £375,000 • 2 bed • 1 bath • 694 ft²
3 bedroom apartment for sale in Benson Close, Hounslow, TW3 — £250,000 • 3 bed • 1 bath • 856 ft²
2 bedroom flat for sale in Upper Sutton Lane, Hounslow, TW5 — £315,000 • 2 bed • 1 bath • 689 ft²
2 bedroom apartment for sale in Brookwood Road, Hounslow, TW3 — £239,950 • 2 bed • 1 bath • 760 ft²
1 bedroom ground floor maisonette for sale in Wadham Gardens, Greenford, UB6 — £195,000 • 1 bed • 1 bath
2 bedroom maisonette for sale in Wolsey Close, Hounslow, TW3 — £350,000 • 2 bed • 1 bath • 701 ft²






























