Open-plan living, large garden and excellent schools for family life.
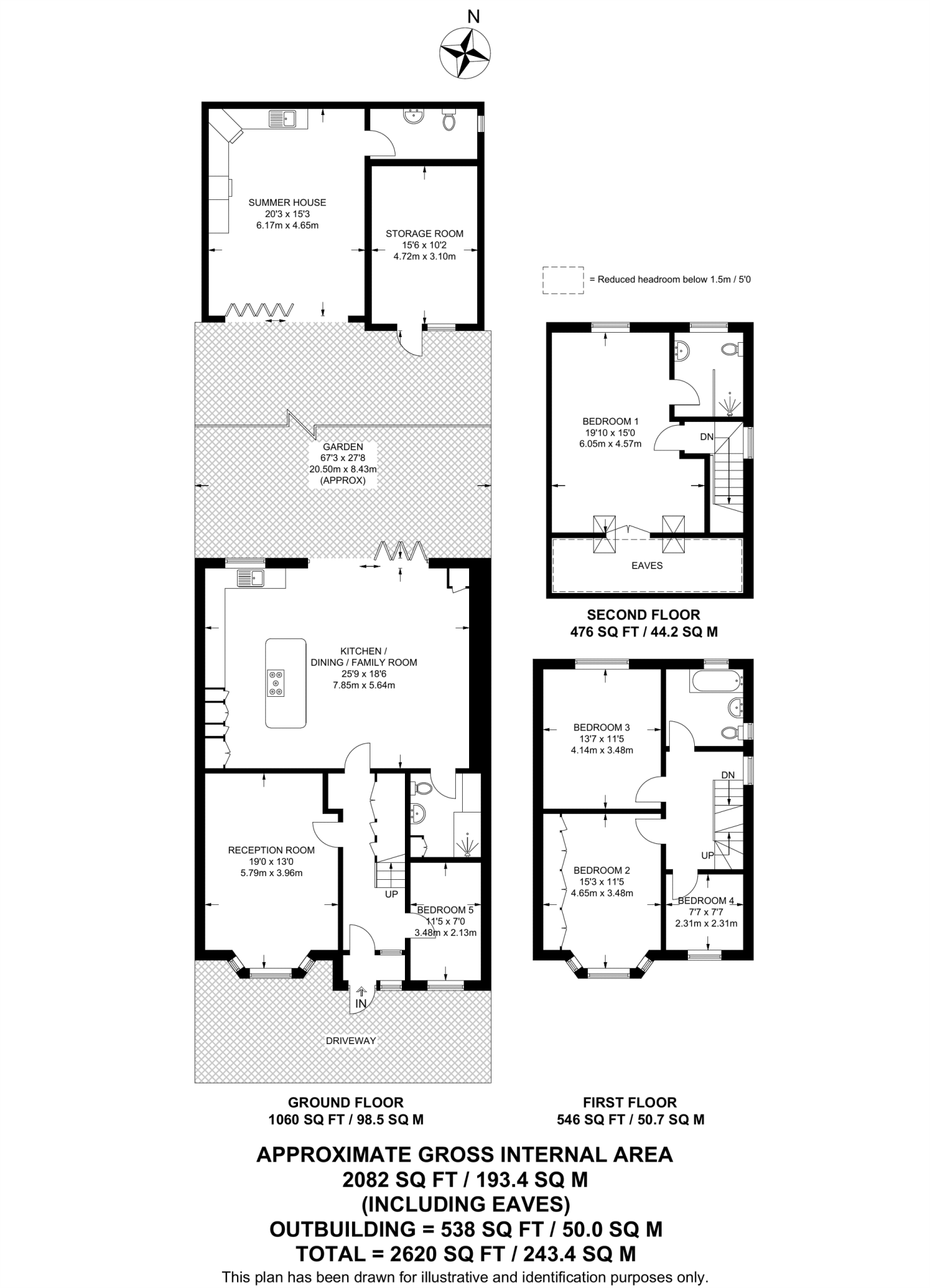
- Five bedrooms and three bathrooms across multi-story layout
- Large private garden with summer house and separate WC
- Impressive open-plan entertaining space and sleek fitted kitchen
- Private driveway providing convenient off-street parking
- Built 1930s solid brick; insulation of walls assumed absent
- Double glazing present but installation date unknown
- Mains gas boiler and radiators; good broadband and mobile signal
- Local crime levels above average; check neighbourhood safety measures
Set on a quiet residential street in Thornton Heath, this five-bedroom semi offers generous space for family living and entertaining. The ground floor presents an impressive open-plan entertaining area with a sleek fitted kitchen and a separate reception room — ideal for family meals, play space and hosting. A large private garden includes a summer house with WC, extending usable living space through warmer months.
Practical features include a private driveway for off-street parking, double glazing (install date unknown), mains gas boiler with radiators, and an attic/dormer conversion that adds bedroom space. The house sits in an area with a number of well-rated schools nearby, plus everyday amenities and fast broadband — useful for commuting and working from home.
Built in the 1930s of solid brick, the property offers period bones and character but may need energy improvements; wall insulation is assumed absent and double glazing age is unspecified. Crime levels in the immediate area are above average — buyers should factor local safety measures into their plans. Overall this freehold semi-detached house suits growing families seeking space, a large garden and good transport links, with scope to update energy performance and cosmetic finishes to personal taste.
 5 bedroom semi-detached house for sale in Warwick Road, Thornton Heath, CR7 — £725,000 • 5 bed • 2 bath • 1977 ft²
 5 bedroom semi-detached house for sale in Warwick Road, Thornton Heath, CR7 — £725,000 • 5 bed • 2 bath • 1977 ft² 3 bedroom end of terrace house for sale in Silverleigh Road, Thornton Heath, CR7 — £575,000 • 3 bed • 1 bath • 1324 ft²
 3 bedroom end of terrace house for sale in Silverleigh Road, Thornton Heath, CR7 — £575,000 • 3 bed • 1 bath • 1324 ft² 5 bedroom terraced house for sale in Kilmartin Avenue, Norbury, London, SW16 — £650,000 • 5 bed • 2 bath • 1720 ft²
 5 bedroom terraced house for sale in Kilmartin Avenue, Norbury, London, SW16 — £650,000 • 5 bed • 2 bath • 1720 ft² 5 bedroom end of terrace house for sale in Richmond Road, Croydon, CR7 — £675,000 • 5 bed • 2 bath • 1620 ft²
 5 bedroom end of terrace house for sale in Richmond Road, Croydon, CR7 — £675,000 • 5 bed • 2 bath • 1620 ft² 5 bedroom semi-detached house for sale in Bulganak Road, Thornton Heath, CR7 — £625,000 • 5 bed • 2 bath • 1787 ft²
 5 bedroom semi-detached house for sale in Bulganak Road, Thornton Heath, CR7 — £625,000 • 5 bed • 2 bath • 1787 ft² 3 bedroom semi-detached house for sale in Springfield Road, Thornton Heath, CR7 — £575,000 • 3 bed • 1 bath • 1550 ft²
 3 bedroom semi-detached house for sale in Springfield Road, Thornton Heath, CR7 — £575,000 • 3 bed • 1 bath • 1550 ft²










































































































































