Shovel-ready site with eco-designed homes near town amenities.
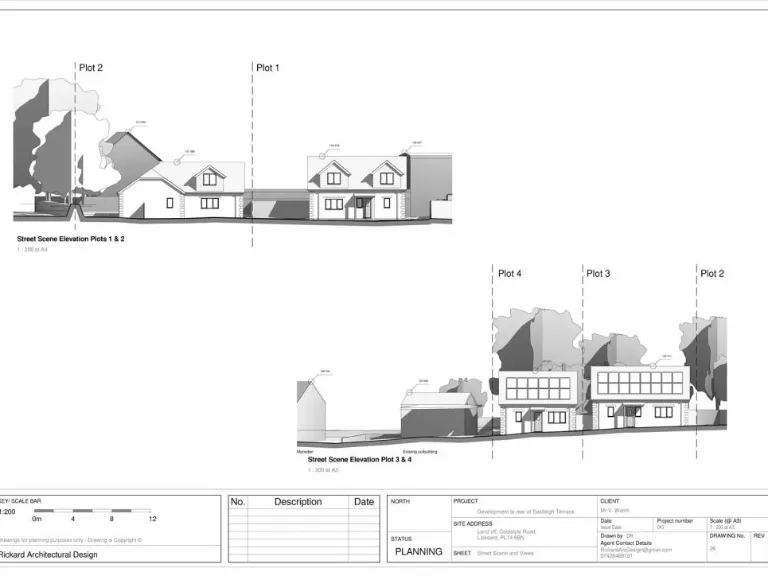
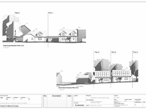
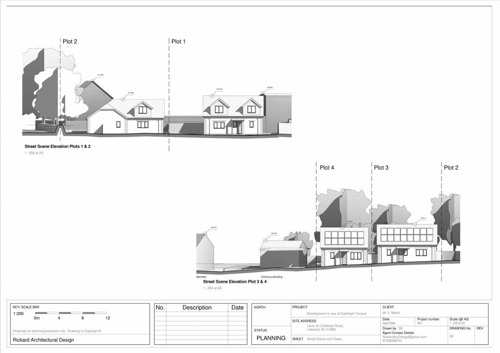
Full planning granted for four detached dwellings (PA24/02251)
A rare development plot on the edge of Liskeard with full planning (PA24/02251) for four detached homes: one 2-bed, two 3-bed and one 4-bed. The level, generous site of approximately 0.5 acres offers straightforward build plots with contemporary designs and strong eco credentials, each with a generous garden area. Good vehicular access and mains services lie close to the boundary, helping reduce initial connection complexity.
This opportunity suits small housebuilders or investor-developers seeking a compact scheme with immediate consent. There is scope to market the homes to local families and downsizers given nearby primary and secondary schools, local amenities within walking distance, and fast broadband and mobile signal.
Important practical points are clear: purchasers must verify availability and costs for mains service connections, and the sale is subject to existing easements, rights of way and unfixed boundaries. The site sits in an area described as very deprived, which may influence sales values and local demand. Plans are indicative; buyers should satisfy themselves of areas and boundary lines before purchase.
There is flexibility in the scheme: the site could be split so three of the four dwellings are offered as a lot, supporting phased sales or forward-sale strategies. Overall, this is a shovel-ready small development with eco-focused homes, sensible access and room for value-adding through marketing and finish specification.
Residential development for sale in Liskeard Enterprise Centre, Station Road, Liskeard, Cornwall, PL14 4BT, PL14 — £500,000 • 1 bed • 1 bath • 14547 ft²
Plot for sale in East Taphouse, Nr Liskeard, PL14 4NH Development Site For 5 Dwellings, PL14 — £550,000 • 1 bed • 1 bath
Plot for sale in Dean Street, Liskeard, Cornwall, PL14 — £200,000 • 1 bed • 1 bath • 2045 ft²
Plot for sale in Dean Street, Liskeard, Cornwall, PL14 — £200,000 • 1 bed • 1 bath • 2045 ft²
Land for sale in Twelvewoods Place, Dobwalls, Liskeard, Cornwall, PL14 — £450,000 • 1 bed • 1 bath
Plot for sale in Landrake, Nr Plymouth, PL12 5EG - Site For Upto 10 Dwellings, PL12 — £300,000 • 1 bed • 1 bath






































