Characterful period house with garden in highly connected South Birmingham.
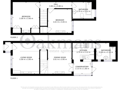
Two double bedrooms with original period fireplaces
Two reception rooms retaining Victorian features
Private, secluded rear garden — small plot
Freehold property sold with no upward chain
Total area approx. 766 sq ft across two storeys
Medium flood risk — consider insurance implications
Some rooms indicated as needing modernisation/updates
Excellent local transport links, schools and green spaces
A two-bedroom Victorian terraced house on Hay Green Lane that combines original character with practical living space. The property offers two reception rooms with period fireplaces, a private rear garden and convenient access to nearby parks, shops and transport links — attractive for families or professionals seeking a central South Birmingham base.
The house is sold freehold and with no upward chain, helping a straightforward purchase. At about 766 sq ft across two storeys, the layout includes two bedrooms, two bathrooms and scope to reconfigure upstairs (potential to reinstate a third bedroom). The location is a major selling point: Selly Oak and Bournville are nearby, with excellent commuter links to Birmingham city centre and local employment hubs.
Buyers should note a few material points: the plot is small, flood risk is assessed as medium, and some parts of the property are indicated as needing modernisation. These factors affect running and future renovation costs. Council tax is described as affordable and broadband/mobile connectivity are good, supporting home working.
Overall this is a character-rich property offered chain free in a well-connected, amenity-filled neighbourhood. It will suit buyers looking for a period home with potential for modest updating, or investors after a centrally located rental in a sought-after part of South Birmingham.
3 bedroom semi-detached house for sale in Hay Green Lane, Bournville, Birmingham, B30 — £250,000 • 3 bed • 1 bath • 846 ft²
2 bedroom terraced house for sale in Witherford Way, Bournville, Birmingham, B29 — £270,000 • 2 bed • 1 bath • 667 ft²
2 bedroom terraced house for sale in Pershore Avenue, Selly Park, Birmingham, West Midlands, B29 — £190,000 • 2 bed • 1 bath • 753 ft²
3 bedroom terraced house for sale in First Avenue, Selly Park, Birmingham, West Midlands, B29 — £385,000 • 3 bed • 2 bath • 993 ft²
2 bedroom terraced house for sale in Ashley Road, Birmingham, B23 7BX, B23 — £180,000 • 2 bed • 1 bath • 847 ft²
3 bedroom terraced house for sale in Warwards Lane, Birmingham, West Midlands, B29 — £275,000 • 3 bed • 2 bath • 848 ft²














































































































































































