Spacious family home with loft and easy-care garden, ready to view today.
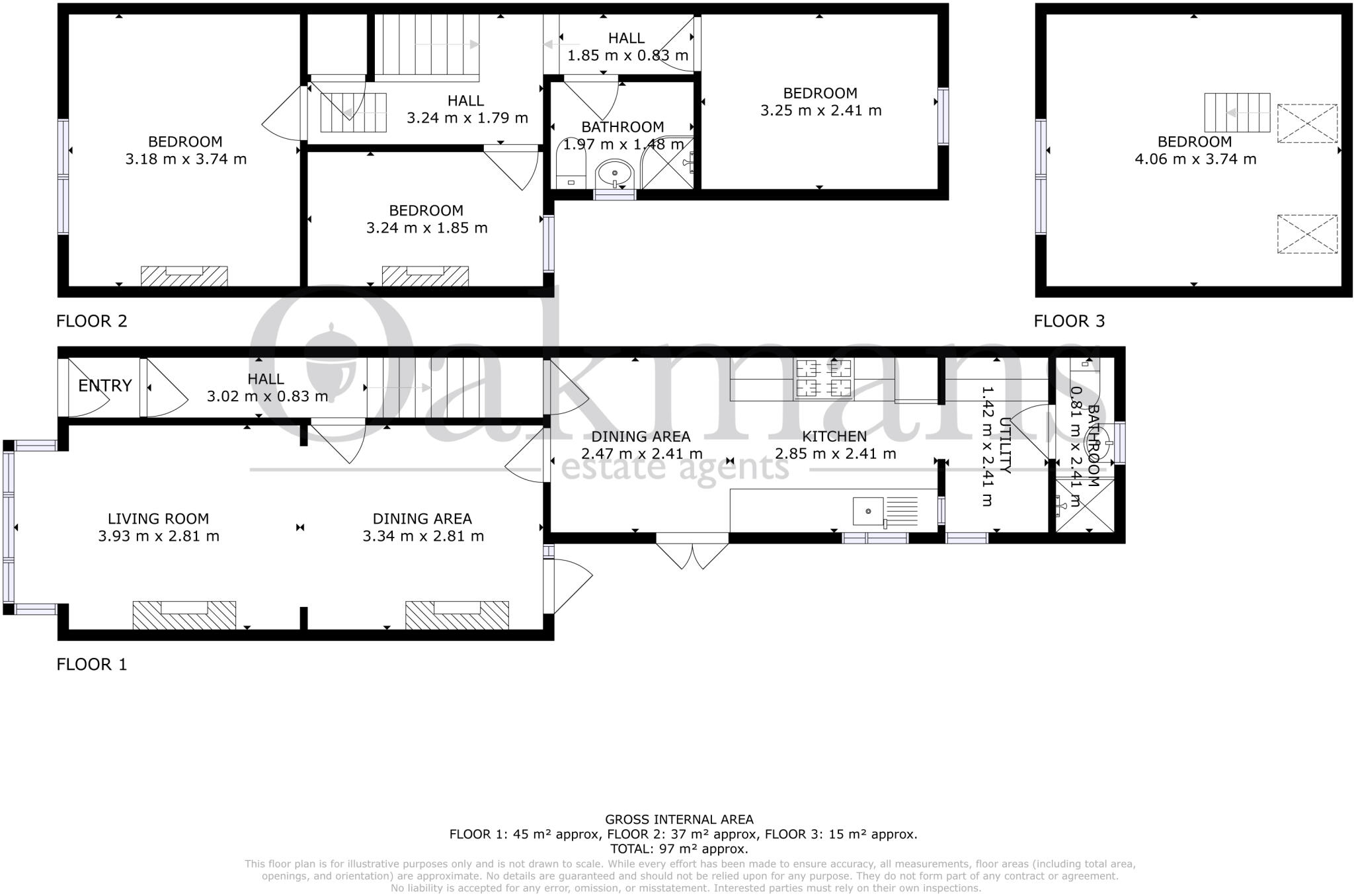
Three double bedrooms and family bathroom
Spacious through lounge with period bay window
Large kitchen with dining space and utility area
Boarded loft with Velux windows, limited head height
Low-maintenance rear garden, small plot
Freehold and offered chain-free for quicker completion
Solid brick Victorian build; likely requires insulation upgrades
Medium flood risk and above-average local crime rates
This characterful Victorian mid-terrace offers three double bedrooms, a spacious through lounge and a large kitchen-diner — ideal for a first home or small family. High ceilings, bay windows and stained-glass details retain period charm while modern essentials such as double glazing, gas central heating and fast broadband are in place.
Practical features include a utility area, downstairs WC and a boarded loft room with Velux windows that could serve as a hobby space or occasional guest room (limited head height). The rear garden is low-maintenance and the property is freehold and chain-free, allowing a quicker move for buyers.
Be aware of a few material considerations: the terrace was built c.1900–1929 with solid brick walls likely without cavity insulation, so further thermal upgrades could be needed. The area has above-average crime levels and a medium flood risk—both relevant for insurance and long-term running costs. Plot size is small and street parking may be limited.
Nearby schools include several well-rated state and independent options, and the wider area is popular with students and professionals, making the house suitable for owner-occupiers or as an investment. Viewing is recommended to judge layout, headroom in the loft and scope for energy improvements.
2 bedroom terraced house for sale in Wallace Road, Selly Park, Birmingham, West Midlands, B29 — £210,000 • 2 bed • 2 bath • 839 ft²
3 bedroom terraced house for sale in Second Avenue, Selly Park, B29 — £395,000 • 3 bed • 2 bath • 1018 ft²
3 bedroom terraced house for sale in Hobson Road, Selly Park, Birmingham, West Midlands, B29 — £250,000 • 3 bed • 1 bath
3 bedroom terraced house for sale in Milner Road, Birmingham, West Midlands, B29 — £220,000 • 3 bed • 1 bath • 756 ft²
3 bedroom terraced house for sale in Warwards Lane, Birmingham, West Midlands, B29 — £275,000 • 3 bed • 2 bath • 848 ft²
3 bedroom terraced house for sale in Milner Road, Birmingham, West Midlands, B29 — £235,000 • 3 bed • 1 bath • 712 ft²






































































































