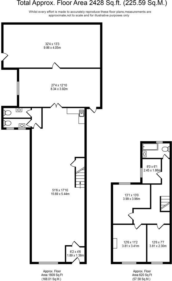
Substantial, adaptable premises ideal for investor refurbishment or new hospitality concept..
- Large 4,322 sq ft town-centre restaurant premises
- Open-plan dining area, large commercial kitchen and storage
- Good retail frontage with high pedestrian footfall
- No VAT on purchase price
- Requires full refurbishment and modernisation
- Area classed very deprived; local crime rates are high
- Tenure unspecified; buyer to verify legal status
- Suitable for alternative uses subject to necessary consents
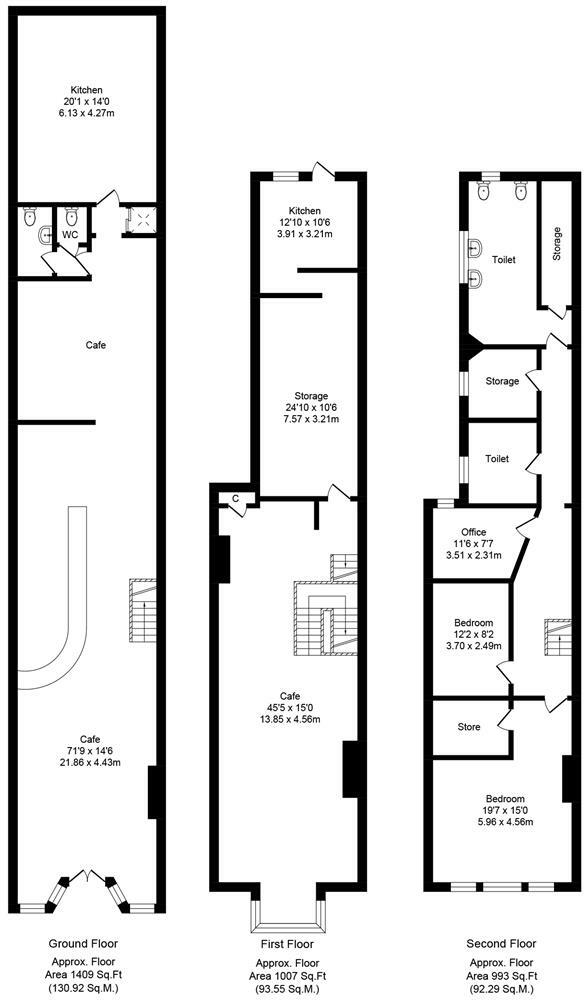
Substantial town-centre restaurant premises offering 4,322 sq ft across ground and first floors, positioned on Union Street in Southport. The ground floor provides open-plan dining, rear bar, WC facilities and a large commercial kitchen, with additional storage/ancillary accommodation above. The central frontage and heavy footfall make it suited to continued hospitality use or alternative commercial/residential conversion, subject to necessary consents.
The building is a Victorian mid-terrace with good retail visibility and technical strengths including excellent mobile signal and fast broadband — favourable for modern hospitality, click-and-collect or small-office uses. The sale price excludes VAT, which may streamline acquisition costs for a buyer planning refurbishment or an investor seeking rental income.
Important considerations: the property requires refurbishment and modernisation throughout and sits in an area classed as very deprived with high local crime rates; prospective purchasers should factor upgrade costs and security measures into budgets. Tenure details are unknown and alternative uses will need planning consent where applicable. This is a clear value opportunity for an investor or operator prepared to renovate and reposition the site.
Commercial property for sale in 199-201 Lord Street, Southport, Merseyside, PR8 — £325,000 • 1 bed • 1 bath • 2430 ft²
Restaurant for sale in 3–5 Stanley Street, Southport, PR9 — POA • 1 bed • 1 bath • 1831 ft²
High street retail property for sale in 5 Wesley Street, Southport, Merseyside, PR8 — £119,500 • 1 bed • 1 bath • 800 ft²
High street retail property for sale in 81 Eastbank Street, Southport, Southport, Merseyside, PR8 — £185,000 • 1 bed • 1 bath • 1500 ft²
High street retail property for sale in 6 Wesley Street, Southport, Merseyside, PR8 — £59,950 • 1 bed • 1 bath • 405 ft²
Leisure facility for sale in Stanley Street, Southport, Merseyside, PR9 0BY, PR9 — £95,000 • 1 bed • 1 bath






















































