Large plot, outbuildings and modernisation potential in a quiet village setting.
Approximately half an acre plot with level lawn and patio
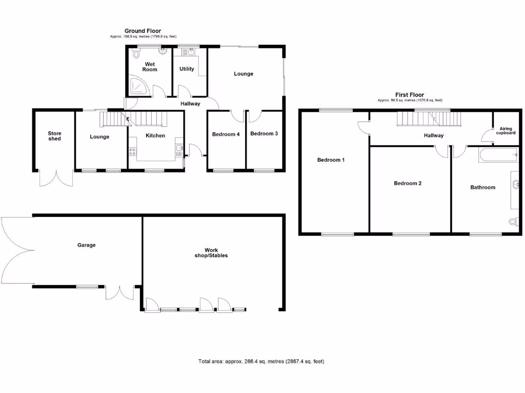
Set on about half an acre in a semi-rural village location, this four-bedroom detached house offers generous living space and substantial outbuildings. Two reception rooms and large glazed doors bring light to ground-floor living, while the first floor provides two further double bedrooms plus a family bathroom. The plot includes a detached garage, a long workshop/stables range and parking for several vehicles — strong for storage, hobbies or small-scale equine use.
The property benefits from air source heating and roof-mounted solar panels, and is offered freehold. The footprint and room sizes give clear potential for modernisation and value uplift for a buyer willing to invest. The level gardens, patio and mature planting create privacy and a pleasant outlook to neighbouring green areas.
Important practical points: the house was built early 20th century in stone with assumed uninsulated walls and double glazing installed before 2002. Main heating runs from an oil boiler alongside the air source system. Services include mains water/electricity and a septic tank. EPC D72 and council tax band E reflect existing energy and running costs. Broadband is slow locally and the wider area shows higher deprivation, which may affect resale timing.
In short, this is a substantial, versatile rural home for a family or buyer seeking renovation potential and outbuilding space. It will suit someone prioritising land, storage and scope to modernise over turn-key condition.
4 bedroom detached house for sale in Llanfynydd Road, Carmarthen, SA32 — £399,000 • 4 bed • 2 bath • 2064 ft²
4 bedroom smallholding for sale in Carmarthen Road, Pontarddulais, Swansea, SA4 — £595,000 • 4 bed • 2 bath • 2260 ft²
3 bedroom detached house for sale in Foelgastell CARMARTHENSHIRE, SA14 — £450,000 • 3 bed • 1 bath • 1240 ft²
5 bedroom detached house for sale in Llannon, Llanelli, SA14 — £575,000 • 5 bed • 4 bath • 2724 ft²
4 bedroom detached house for sale in Cwmamman Road, Glanamman, Ammanford, SA18 — £465,000 • 4 bed • 2 bath • 1863 ft²
5 bedroom detached house for sale in Rhosybonwen Road, Cefneithin, Llanelli, SA14 — £475,000 • 5 bed • 3 bath • 2434 ft²


































































































































