Spacious period house near stations with exceptional garden and secure garage.
Victorian end-terrace with period features and antique French oak flooring
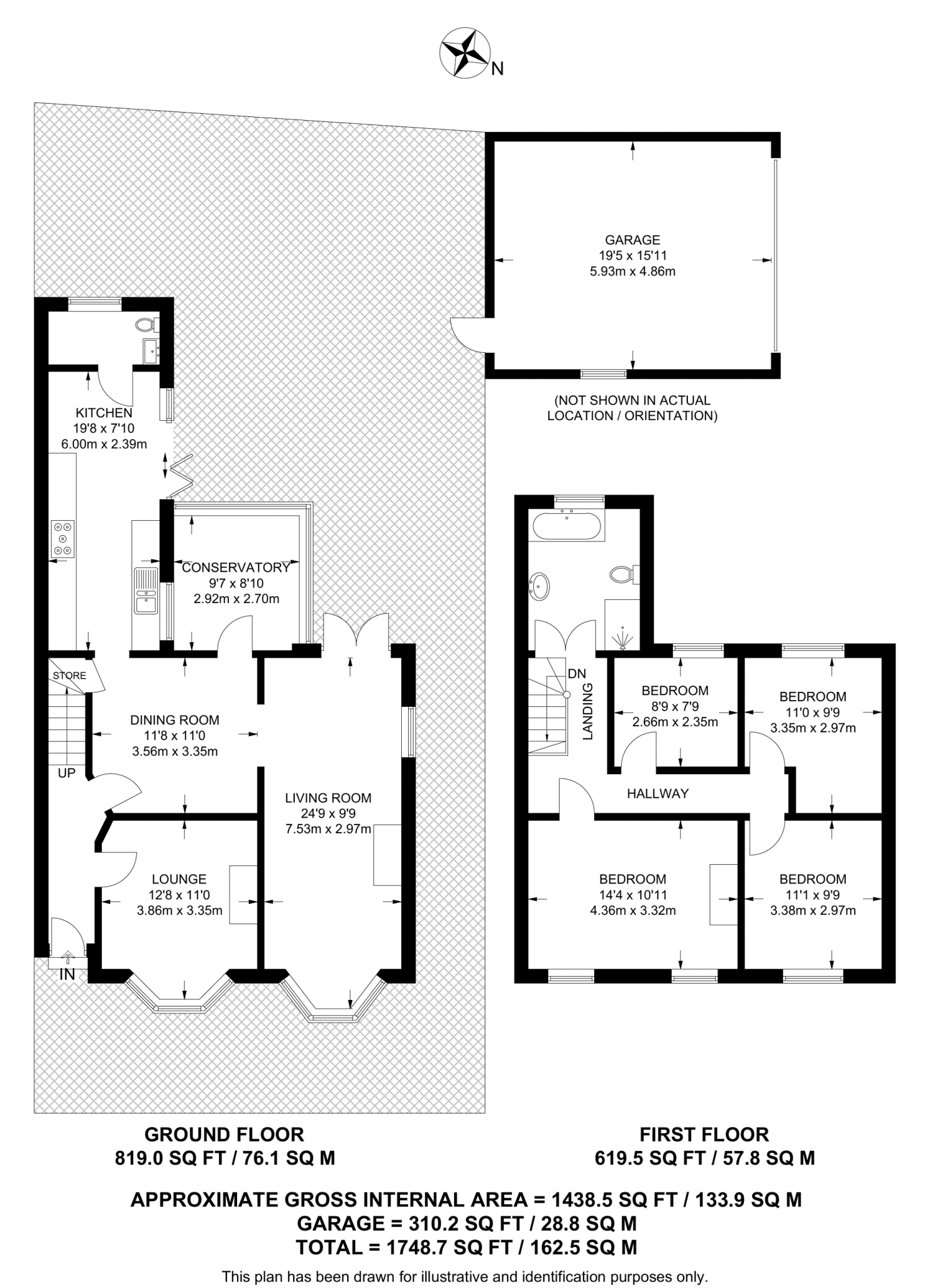
Spacious double reception and separate dining room; large conservatory
Outstanding rear garden with deck, slate flooring, astro turf and electric points
Secure electric double garage plus front garden and good storage
One main bathroom (underfloor heating) and separate additional WC only
Carpeted attic room—useful but not a full certified conversion
Solid brick walls (pre-1900) likely lack modern cavity insulation
Double glazing present; install date unknown, may need efficiency upgrades
This elegant Victorian end-terrace offers generous living space across two light-filled floors, plus a carpeted attic room. High-quality finishes include antique French oak flooring reclaimed from railway carriages, shutters throughout and a stylish fitted kitchen. The large conservatory opens to an outstanding rear garden with slate flooring, astro turf and a millboard decked dining area—ideal for family life and entertaining. A secure electric double garage and front garden add useful storage and parking in a sought-after Walthamstow location close to Wood Street and Walthamstow Central stations.
The house is well-specified for modern living with underfloor heating in the main bathroom, double glazing (install date unknown) and gas central heating via boiler and radiators. Local amenities, good and outstanding schools, Leyton Flats and strong commuter links make this an attractive home for families. The property is freehold and offers about 1,748 sq ft of accommodation in an affluent, low-crime area.
Buyers should note there is a single main bathroom plus an additional WC only, which may be limiting for a four-bedroom family household. The solid brick walls date from before 1900 and are likely to lack modern cavity insulation; some upgrading (insulation, potential redecoration or modernisation) may be needed to improve energy efficiency. The plot is modest in size despite the generous rear garden and attic space is carpeted rather than a fully converted room.
4 bedroom terraced house for sale in Wood Street, E17 — £700,000 • 4 bed • 2 bath • 1319 ft²
4 bedroom terraced house for sale in Turner Road, Walthamstow, London, E17 — £775,000 • 4 bed • 2 bath • 1203 ft²
4 bedroom terraced house for sale in Bemsted Road, Walthamstow, London, E17 — £925,000 • 4 bed • 2 bath • 1136 ft²
4 bedroom terraced house for sale in Herbert Road, Walthamstow, London, E17 — £585,000 • 4 bed • 2 bath • 1290 ft²
4 bedroom terraced house for sale in Kingsley Road, Walthamstow, London, E17 — £900,000 • 4 bed • 2 bath • 1412 ft²
5 bedroom house for sale in Pretoria Avenue, Walthamstow, London, E17 — £1,499,999 • 5 bed • 2 bath • 1642 ft²


































































































































































































































































































































































