Compact character cottage plus building plot ideal for family expansion or development.
South-facing cottage garden with countryside valley views
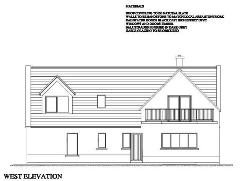
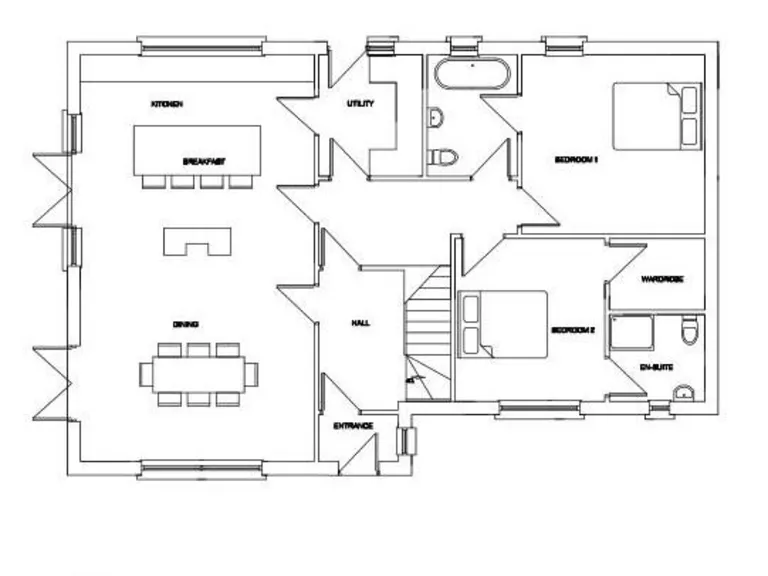
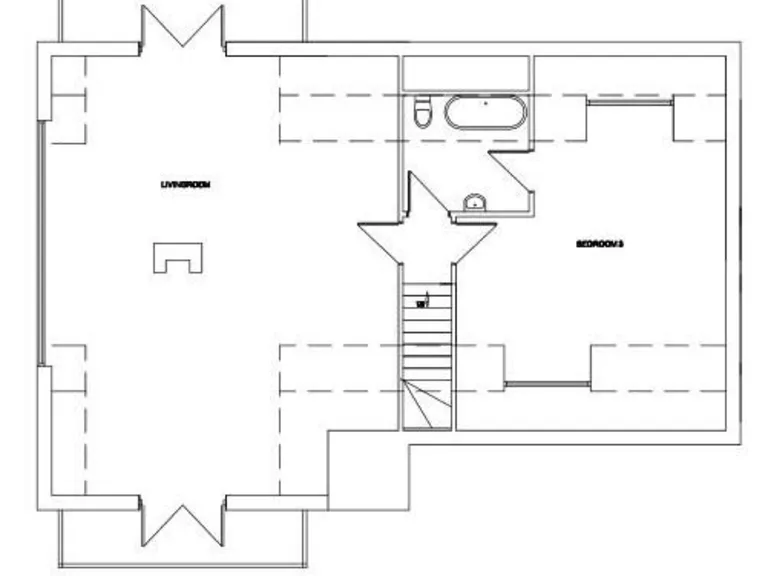
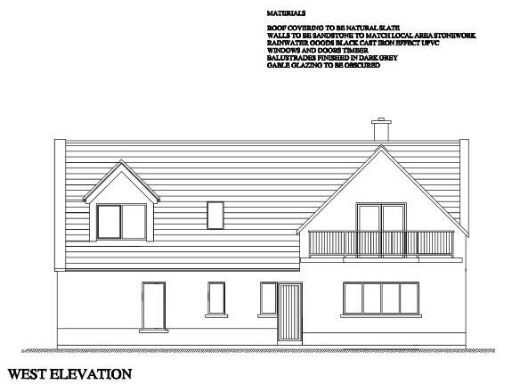
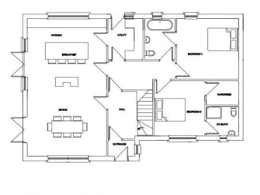
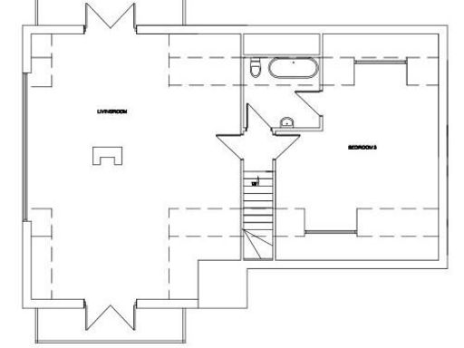
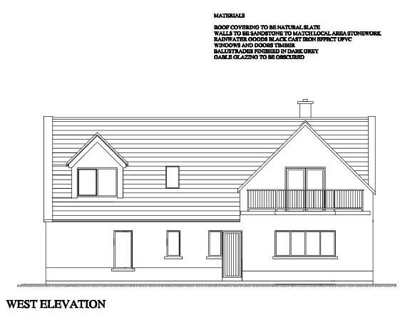
Implemented planning permission and part foundations for 3-bed house
Stone-built period cottage with character beams and wood burner
Compact internal area c. 409 sq ft — limited living space
Oil central heating; EPC rating F — higher running costs likely
Original stone walls presumed uninsulated — retrofit likely needed
Slow broadband despite fibre connection; mobile signal average
Local crime levels are above average — consider security measures
Set within the quiet Northumberland village of Glanton, this stone-built 2-bedroom detached bungalow blends period character with modern updates. The cottage has engineered oak floors, a wood burner in the lounge, uPVC double glazing, a modern kitchen and bathroom, and a secure south-facing garden with off-street parking. It is compact but well maintained and ready for immediate occupation.
A major value driver is the large rear garden with implemented planning permission and part foundations in place for a detached three-bedroom house. That plot creates a rare opportunity: build for extended family, develop for income, or create a larger home while living in the cottage. The layout and site make multi-generational living or staged development feasible.
Buyers should note material facts factually: the total internal size is small (c. 409 sq ft), the property uses oil-fired central heating, the EPC is F, and the original stone walls likely lack modern cavity insulation. Broadband speeds are reported slow and local crime levels are above average. These factors affect running costs, comfort, and resale considerations.
For families seeking village life with countryside views and a tangible development opportunity, this cottage plus building plot offers a flexible proposition. The location provides village amenities and good access to Alnwick while giving scope to expand or reconfigure with the existing planning permission.
3 bedroom terraced house for sale in Front Street, Glanton, NE66 — £295,000 • 3 bed • 1 bath • 1442 ft²
Plot for sale in Whittingham Road, Glanton, NE66 — £175,000 • 3 bed • 2 bath • 1650 ft²
2 bedroom cottage for sale in The Little House, Whittingham, Alnwick, Northumberland, NE66 — £295,000 • 2 bed • 1 bath • 990 ft²
2 bedroom terraced house for sale in Mount View, Glanton, Northumberland, NE66 4AZ, NE66 — £147,500 • 2 bed • 1 bath • 812 ft²
2 bedroom cottage for sale in Ilderton, Alnwick, NE66 — £225,000 • 2 bed • 1 bath • 839 ft²
2 bedroom end of terrace house for sale in Station Cottages, Whittingham, Alnwick, Northumberland, NE66 — £240,000 • 2 bed • 1 bath • 726 ft²


































































































































































































