Bright, modern lodge ideal for seaside retirement breaks with abundant natural light.
Panoramic Jurassic Coast sea views from floor-to-ceiling glazing
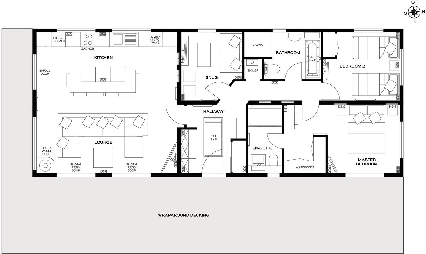
Set on a prime clifftop pitch at Eype Beach Holiday Park, this new 2025 lodge delivers uninterrupted Jurassic Coast views and a bright, open-plan living space. Floor-to-ceiling windows and wraparound decking make the sea view the focal point, while a high-spec kitchen with marble worktops and integrated appliances supports comfortable, low-maintenance holiday living.
The lodge is designed for relaxed coastal breaks with a king-size master, en‑suite and walk-in dressing area, plus a flexible second bedroom with zip-link beds. A snug offers scope as a small third bedroom or home office. The family bathroom includes a jet bathtub and two-person infra-red sauna — genuine luxury finishes for a lodge of this size.
Important tenure and use limits are material: this is a 35-year leasehold holiday home (leasehold) for recreational use only. You may not occupy it as your sole or main residence, hiring out is prohibited and the season is limited to 10.5 months a year. Mortgage lenders will likely refuse to lend given the short lease remaining. Annual pitch/service fee is £7,999, reviewed each year.
This property suits buyers seeking a low-upkeep coastal retreat rather than a permanent family home. Its setting directly off the South West Coast Path, dog-friendly beach access and nearby park facilities create a compelling lifestyle package. Note also slow broadband speeds and that EPC is exempt for this type of lodge.
2 bedroom detached house for sale in Old Coastguard Holiday Park, Burton Bradstock, Dorset, DT6 — £180,000 • 2 bed • 2 bath • 800 ft²
2 bedroom park home for sale in Old Lyme Road, Charmouth, Bridport, DT6 — £175,000 • 2 bed • 1 bath • 497 ft²
2 bedroom park home for sale in Bowleaze Coveway, Weymouth, DT3 — £250,000 • 2 bed • 2 bath • 712 ft²
2 bedroom lodge for sale in Swyre, Dorset, DT2 — £195,000 • 2 bed • 2 bath • 880 ft²
2 bedroom bungalow for sale in Sidmouth Road, Rousdon, Lyme Regis, DT7 — £47,500 • 2 bed • 2 bath • 407 ft²
3 bedroom park home for sale in Bowleaze Coveway, Weymouth, DT3 — £38,000 • 3 bed • 1 bath • 365 ft²














































































