**Standout Features:**
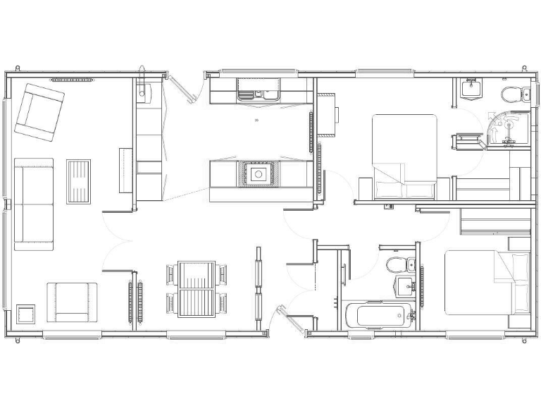
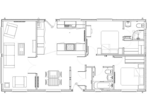
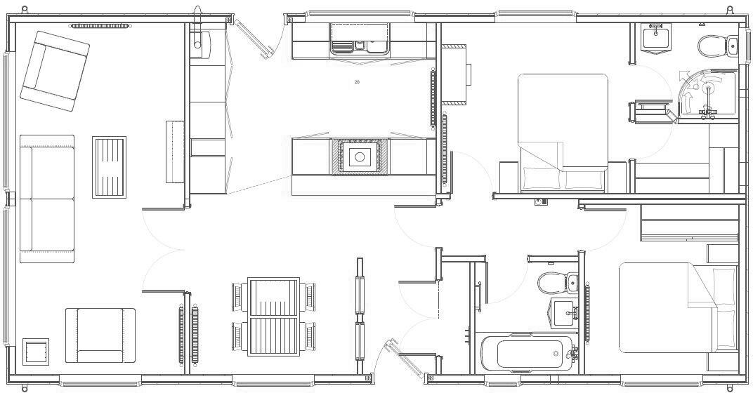
- Brand new, sleek modern lodge (44'x20')
- Fully furnished with high specifications
- Two double bedrooms and two bathrooms
- Open-plan living area with vaulted ceilings and French doors
- Pet-friendly and no age restrictions
- Located in picturesque coastal Dorset
- On-site pub/restaurant for convenience and leisure
- 12-month leisure license, ideal for year-round enjoyment
**Potential Concerns:**
- Leasehold with 35 years remaining; may complicate mortgage options
- Ground rent set at £3,000 per year, which is relatively high
Discover your sanctuary in this stunning Prestige Sofia lodge, a contemporary haven nestled in the heart of Dorset's natural beauty. Boasting a spacious open-plan layout, high ceilings, and a fully equipped kitchen with modern finishes, this home is designed for comfort and style. With two double bedrooms, including an en suite, it's perfect for families or couples looking to downsize while maintaining an elegant living space.
Enjoy the freedom of a pet-friendly environment with no age restrictions, and take advantage of the 12-month leisure license that grants you access throughout the year. The vibrant community includes an on-site pub for leisure or dining, while the picturesque West Bexington beach is just a short walk away, along with essential amenities just minutes away in Burton Bradstock and Bridport.
This unique lodge offers exceptional rental potential for investors or a peaceful retreat for those wanting to embrace the coastal lifestyle. However, be aware that the current lease terms may pose challenges for mortgage seekers and recurring ground rent could impact annual budgeting. Don’t miss your chance to own this exclusive property in an idyllic setting—opportunities like this are rare and may not last long!
2 bedroom detached house for sale in Larkfield Holiday Park, Bredy Lane, Burton Bradstock, Bridport, DT6 — £90,000 • 2 bed • 1 bath • 720 ft²
2 bedroom lodge for sale in Swyre Retreat, The Coast Road, Swyre, Dorchester, Dorset, DT2 — £195,000 • 2 bed • 2 bath
2 bedroom detached house for sale in Old Coastguard Holiday Park, Burton Bradstock, Dorset, DT6 — £180,000 • 2 bed • 2 bath • 800 ft²
2 bedroom park home for sale in Swyer Retreat, The Coast Road, Swyer, Dorchester, Dorset, DT2 — £224,000 • 2 bed • 2 bath
2 bedroom detached house for sale in Bredy Lane, Burton Bradstock, Bridport, DT6 — £189,995 • 2 bed • 2 bath • 800 ft²
2 bedroom park home for sale in Hardy Country Park, Bridport Road, Dorchester, DT2 — £275,000 • 2 bed • 2 bath • 1144 ft²


































