B24 9AY - 1 bedroom apartment for sale in Flat 4 Salisbury House, 11…

View on Property Piper

1 bedroom apartment for sale in Flat 4 Salisbury House, 11 Church Road, Erdington, Birmingham, B24 9AY, B24

Summary - FLAT 4, SALISBURY HOUSE, 11, CHURCH ROAD, BIRMINGHAM, ERDINGTON B24 9AY

1 bed 1 bath Apartment

Vacant one-bedroom first-floor flat with separate garage
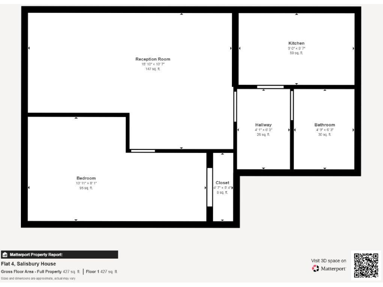
427 sq ft — compact accommodation, needs full refurbishment
Lease approx. 47 years remaining — likely prevents standard mortgage lending
For sale by public auction — cash or specialist buyers likely required
Very high local crime rate — impacts rental/resale prospects
Very slow broadband in area; mobile signal is excellent
Ground rent £20 pa; check legal pack for full lease details
Auction buyer administration fee and unconditional exchange on gavel fall
A one-bedroom first-floor flat offered vacant at public auction, suited to a cash buyer or experienced investor prepared to refurbish. The property includes a separate garage and communal grounds, and its compact 427 sq ft layout comprises reception room, kitchen, bedroom and bathroom. The building is mid-20th-century brick with a communal entrance and external stairway.

This lot carries clear constraints: the lease has about 47 years remaining, which will likely prevent mortgage lending and restrict its market to cash or specialist investors. The flat requires full refurbishment, and local factors — including very high crime rates and very slow broadband — should be factored into any refurbishment and rental or resale strategy.

Priced to reflect condition and tenure, the property may suit a hands-on buyer able to invest in upgrades and manage short-lease issues (extension or enfranchisement costs will apply). Note the sale is at auction with an administration fee and unconditional exchange on the fall of the hammer; check the legal pack for full costs and any additional conditions.

Property Details

Image Descriptions

Floorplan Description

Rooms

Textual Property Features

Detected Visual Features

Nearby Schools

Nearest Bars And Restaurants

,,,,}

Nearest General Shops

,,}

Nearest Grocery shops

,,}

Nearest Supermarkets

,,}

Nearest Religious buildings

,,}

Nearest Medical buildings

,,,}

Nearest Airports

}

Nearest Leisure Facilities

,,,,}

Nearest Tourist attractions

,,}

Nearest Train stations

,,,,}

Nearest Bus stations and stops

,,,,}

Nearest Hotels

,,}

Tags

Local Market Stats

AirBnB Data

Similar Properties

Meta

High Res Images

Compatible Images

Low res Images

Thumbnails

Raw Images

High Res Floorplan Images

Compatible Floorplan Images

Low res Floorplan Images

FloorplanImages Thumbnail

Raw Floorplan Images