Spacious flexible home with large garage and superb countryside views.
No onward chain — immediate completion possible
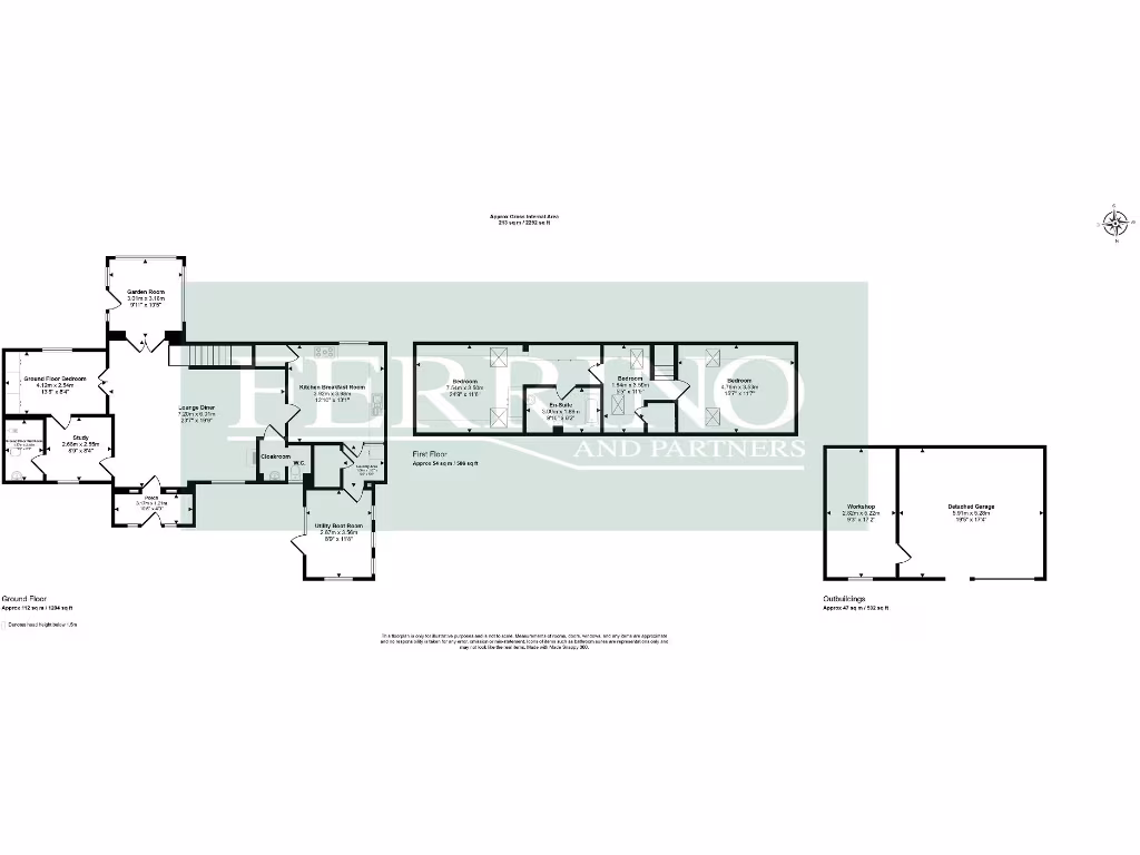
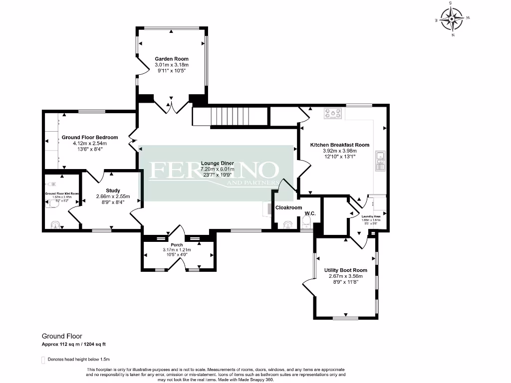
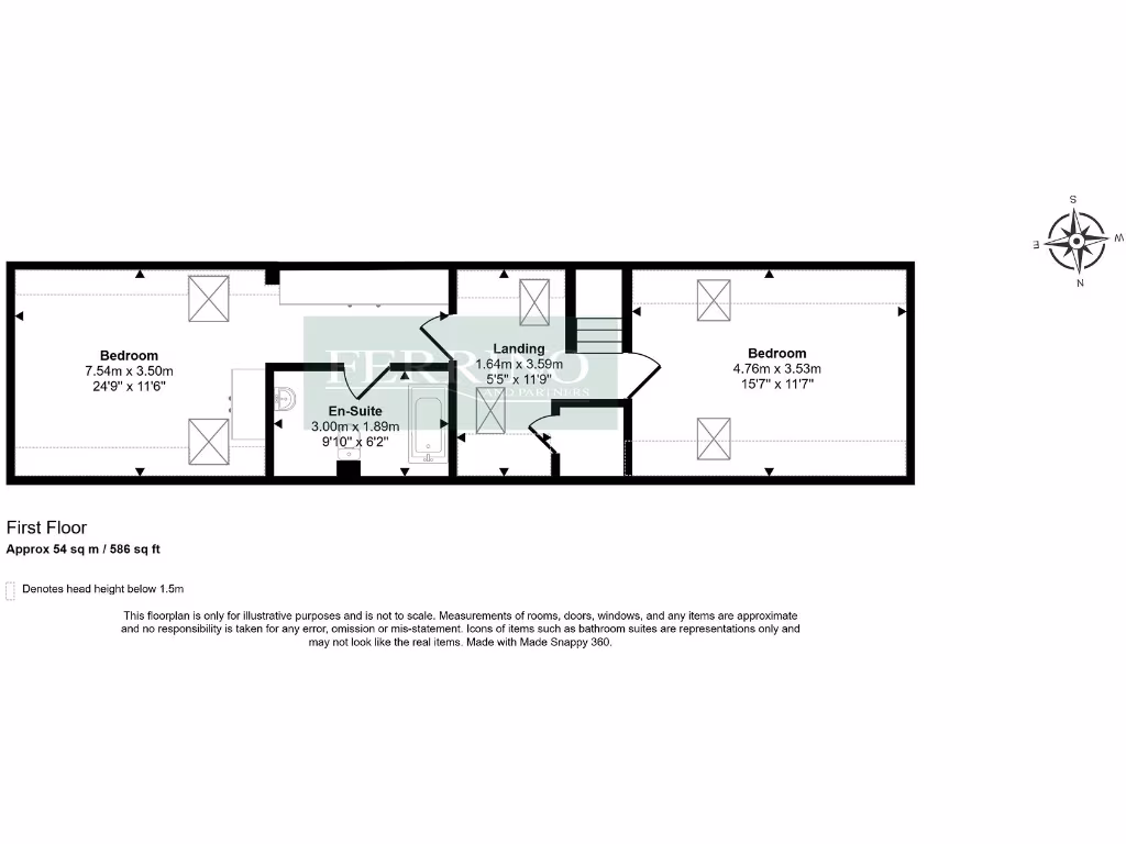
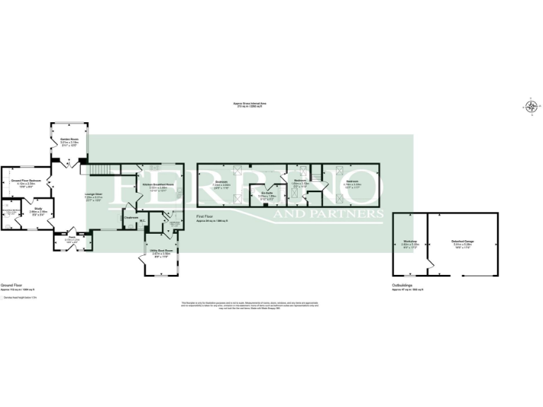
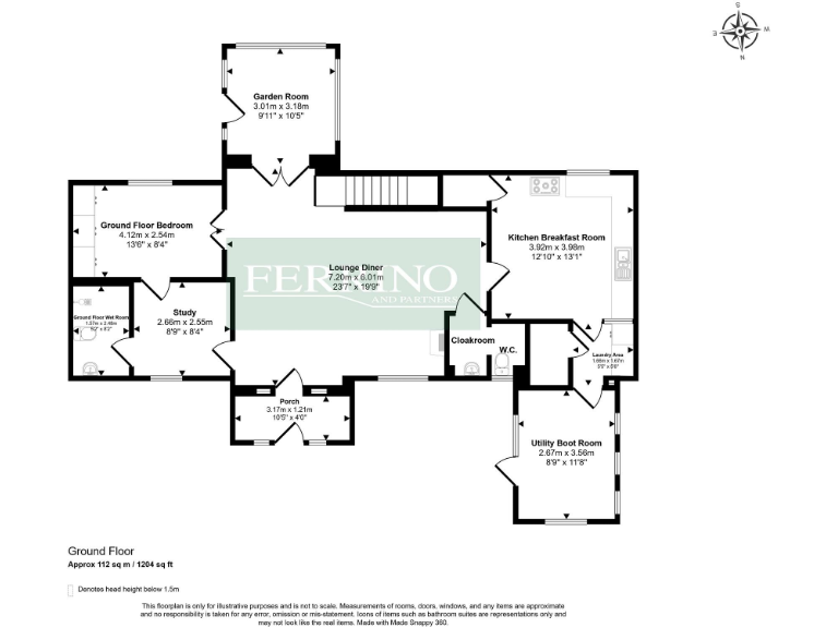
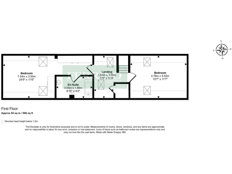
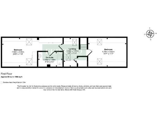
Set in peaceful countryside between the Forest of Dean and the Wye Valley, this converted stone barn offers generous, flexible family accommodation with outstanding rural views. The ground-floor bedroom with wet room could function as an independent annex for guests or multi-generational living while two double bedrooms and an en-suite sit on the upper floor.
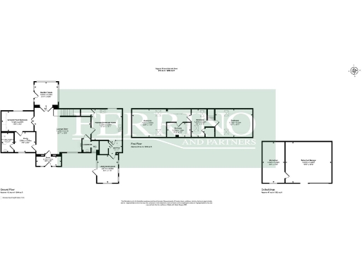
Entertain in the open-plan sitting/dining space with exposed beams and a wood burner, or relax in the bright garden room that overlooks the low-maintenance plot. A large serviced garage/workshop and wide driveway provide significant storage and parking for several vehicles.
Practical considerations include oil-fired central heating and traditional stone walls which are assumed to lack cavity insulation; potential buyers should factor energy upgrade costs into plans. Council tax is above average. The property is offered freehold and chain free, ready for immediate purchase, and sits within easy driving distance of Coleford and Ross-on-Wye with good local schools and fast broadband.
3 bedroom barn conversion for sale in Newchurch, Chepstow, Monmouthshire, NP16 — £875,000 • 3 bed • 3 bath • 2023 ft²
4 bedroom barn conversion for sale in Windsong Barn, Leys Hill, Ross-on-Wye, HR9 — £615,000 • 4 bed • 2 bath • 1754 ft²
4 bedroom semi-detached house for sale in Eccleswall Barns, Bromsash, Ross-On-Wye, Herefordshire, HR9 — £525,000 • 4 bed • 3 bath • 2174 ft²
3 bedroom barn conversion for sale in Upton Bishop, Ross-on-Wye, HR9 — £650,000 • 3 bed • 3 bath • 1447 ft²
3 bedroom barn conversion for sale in Vineyard Barn, Ross-on-Wye, HR9 — £425,000 • 3 bed • 3 bath • 1371 ft²
2 bedroom barn conversion for sale in Much Marcle, Ledbury, Herefordshire, HR8 — £315,000 • 2 bed • 3 bath • 1286 ft²






























































































































































































































