South-West garden, garage and driveway for four; excellent renovation potential.
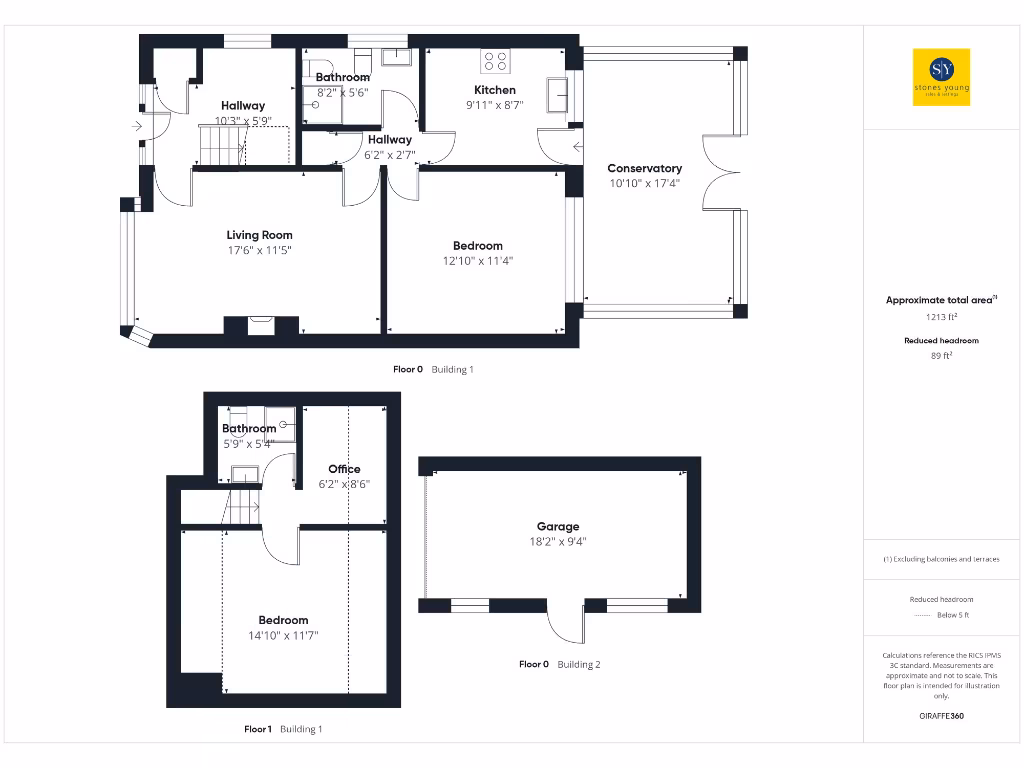
Large 1,213 sq ft footprint with versatile multi-level layout
This spacious two-bedroom semi-detached bungalow occupies a desirable position in Langho and offers a large footprint with real scope to add value. The ground floor has a lounge, kitchen, downstairs shower room and conservatory, while the first floor contains a second bedroom, shower room and an office/dressing room — a layout that could be reconfigured into a generous master suite.
A South-West facing rear garden and driveway parking for four vehicles are standout practical features, along with a single detached garage fitted with power and lighting. The property is offered with no chain, close to local bus stops and the train station, and within walking distance of several well-regarded primary and secondary schools.
The bungalow requires renovation throughout, so buyers should budget for updating and cosmetic works; this is reflected in the strong potential to customise interiors and substantially increase value. It is leasehold with around 937 years remaining and a nominal ground rent of £8, and there is no flooding risk.
Suitable for downsizers or buyers seeking a renovation project in an affluent, low-crime area, this property combines convenient transport links and outdoor space with a flexible internal layout ready for modernisation.
2 bedroom semi-detached bungalow for sale in Whalley Road, Langho, BB6 — £250,000 • 2 bed • 1 bath • 808 ft²
2 bedroom semi-detached bungalow for sale in Whalley Road, Langho, Ribble Valley, BB6 — £315,000 • 2 bed • 2 bath • 1080 ft²
2 bedroom semi-detached bungalow for sale in Grove Street, Oswaldtwistle, BB5 — £150,000 • 2 bed • 1 bath • 642 ft²
4 bedroom semi-detached house for sale in Whalley Road, Langho, Ribble Valley, BB6 — £415,000 • 4 bed • 2 bath • 1796 ft²
4 bedroom semi-detached bungalow for sale in Whalley Road, Langho, Ribble Valley, BB6 — £425,000 • 4 bed • 2 bath • 1914 ft²
2 bedroom bungalow for sale in Moseley Road, Burnley, Lancashire, BB11 — £189,950 • 2 bed • 1 bath • 969 ft²














































































