Chain-free three-bedroom with garage, garden and excellent transport connections.
Chain-free freehold three-bedroom semi-detached property
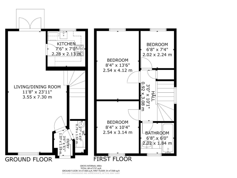
Private fenced rear garden with driveway and large garage
Walking distance to Royals DLR and Elizabeth Line stations
Potential side extension (STPP) to increase living space
Single family bathroom; may need modernisation internally
Double glazing installed before 2002; typical maintenance likely
Small-to-average plot and modest room sizes for inner London
Set on a quiet close in Custom House, this three-bedroom semi offers practical family living with immediate availability. The house is freehold and chain-free, so buyers can move quickly. Its garage, private driveway and fenced rear garden add rare outdoor and parking convenience for E16.
The ground floor delivers comfortable living space with a porch and guest WC, while the first floor provides two double bedrooms and a single bedroom alongside one family bathroom. The property is in generally good condition but presents typical opportunity for modernisation to personalise fixtures and finishes.
Transport links are a major asset: Royals DLR and Custom House (Elizabeth Line) stations are within walking distance, with fast road access to the A13, A12, A406 and M25. Local schools — including Brampton Manor Academy and several outstanding primaries — plus nearby Beckton and King George V parks make this a sensible choice for families.
There is potential to extend to the side (subject to planning permission), which could add living space or a larger kitchen/diner for a growing household. Flood risk is low and utilities include mains gas central heating and double glazing (installed before 2002).
3 bedroom terraced house for sale in Custom House, London E16 — £465,000 • 3 bed • 1 bath • 867 ft²
4 bedroom end of terrace house for sale in Long Mark Road, London, E16 — £500,000 • 4 bed • 2 bath • 863 ft²
3 bedroom end of terrace house for sale in Atkinson Road Royal Docks, London, E16 — £475,000 • 3 bed • 1 bath • 1077 ft²
3 bedroom terraced house for sale in Varley Road, Canning Town, E16 3NR, E16 — £430,000 • 3 bed • 1 bath • 735 ft²
4 bedroom semi-detached house for sale in Slewins Lane, Hornchurch, RM11 — £625,000 • 4 bed • 2 bath • 1428 ft²
3 bedroom terraced house for sale in Varley Road, London, E16 — £465,000 • 3 bed • 1 bath • 905 ft²






































































