High-visibility land with multi-use potential for consented projects.
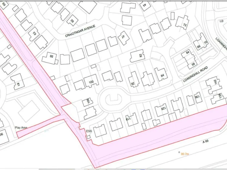
Approx. 4,768 sqm (0.4768 ha / 1.178 acres) of roadside amenity land
This substantial roadside parcel extends to approximately 4,768 sqm (0.4768 ha / 1.178 acres) and sits directly adjacent to the busy A89 commuter route into Edinburgh. Its roadside position gives exceptional daily exposure, making the site potentially attractive for an advertising board, amenity uses or community projects — all subject to obtaining the necessary planning consents and approvals.
The site is offered for sale by timed online auction on 27 November 2025 with enhanced terms (reduced buyer fee). Important practical points: tenure is unknown on the information provided and any proposed use will require investigation and statutory consents. The land is described as amenity land and has been suggested for uses such as portable homes, carbon capture/biodiversity net gain, allotments, forest school or temporary/traveller occupation — each of these uses would need to be checked with the local planning authority.
For investors or developers with appetite for a site requiring technical and planning work, the location benefits from strong commuter traffic, proximity to Uphall station and local schools, and easy road access to Edinburgh and Livingston. There are recent local residential sales for comparative context, but this is undeveloped land and those comparables should not be taken as guarantees of planning outcome or value for development.
This lot suits a buyer prepared to carry out due diligence, commission surveys and engage with planning officers. The advantages are clear exposure and scale; the drawbacks are equally material — unknown tenure, planning uncertainty, likely costs for remediation or servicing, and an urban fringe location within a locally deprived area. Confirm all legal and planning matters before bidding at auction.
Land for sale in Plot 1, at Station Road, Broxburn, West Lothian, EH525QR, EH52 — £97,000 • 1 bed • 1 bath
Land for sale in , Station Road, Plot 4, Broxburn, EH525QR, EH52 — £68,000 • 1 bed • 1 bath
Land for sale in Investment Site, at Ashburnham Gardens, South Queensferry, Edinburgh, EH309LE, EH30 — £1,000 • 1 bed • 1 bath
Land for sale in Plot 4, Adjacent to 27 Ashburnham Gardens, South Queensferry, Edinburgh, EH309LB, EH30 — £1,000 • 1 bed • 1 bath
Land for sale in Plot 2, Adjacent to 23 Ashburnham Gardens, South Queensferry, Edinburgh, EH309LB, EH30 — £1,000 • 1 bed • 1 bath
Land for sale in Sites at, Ashburnham Loan, South Queensferry, Edinburgh, EH309LE, EH30 — £2,000 • 1 bed • 1 bath • 431 ft²














