Contemporary four-bedroom freehold in a quiet suburb close to top schools.
Four bedrooms including principal with en suite
Open-plan galley kitchen, dining and snug with integrated appliances
Separate living room for quieter family time
Landscaped garden plus outbuilding used as studio/office
Integral garage and multiple driveway parking spaces
Listed overall size: small (c.919 sq ft) — verify usable area
Freehold tenure; council tax rated expensive
Quiet, family-friendly location near good schools and open spaces
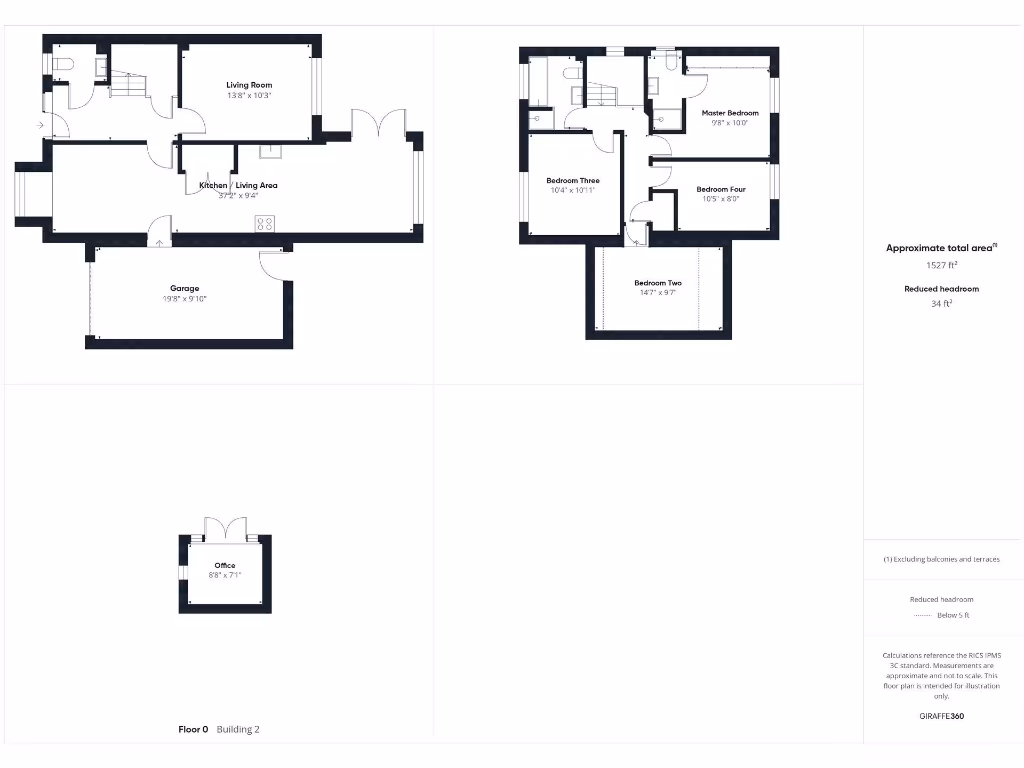
Tucked away on a modern 2017 development in Yateley, this four-bedroom detached house offers contemporary family living with low-maintenance finishes. The open-plan galley kitchen, dining and snug area with integrated appliances creates a sociable ground floor, while a separate living room provides a quieter retreat. The principal bedroom includes an en suite and three further bedrooms serve family or flexible needs.
Outside, the landscaped rear garden and separate outbuilding provide a private studio or home-office away from the main house. Practical features include an integral garage and driveway parking for multiple cars. The property sits in a quiet, family-friendly street close to well-regarded local schools, shops and open green spaces, with fast broadband and good links to nearby towns.
Notable practical points: the listing notes the property’s overall size as small (c.919 sq ft) and council tax is described as expensive, so buyers should check usable internal area and running costs. The house is freehold and presented in good order, ideal for buyers seeking a recently built, low-maintenance home in a very affluent suburb.
4 bedroom detached house for sale in Stockbridge Way, Yateley, Hampshire, GU46 — £615,000 • 4 bed • 1 bath • 1362 ft²
4 bedroom semi-detached house for sale in Michaelmas Close, Yateley, Hampshire, GU46 — £485,000 • 4 bed • 1 bath • 1173 ft²
4 bedroom detached house for sale in Frogmore Road, Blackwater, GU17 — £675,000 • 4 bed • 3 bath • 1547 ft²
4 bedroom detached house for sale in Kevins Drive, Yateley, Hampshire, GU46 — £550,000 • 4 bed • 1 bath • 1037 ft²
3 bedroom detached house for sale in Lower Moor, Yateley, GU46 — £530,000 • 3 bed • 2 bath • 929 ft²
3 bedroom semi-detached house for sale in Greenleas Close, Yateley, Hampshire, GU46 — £440,000 • 3 bed • 1 bath • 912 ft²






























































