Spacious, private garden and versatile living near local schools and village amenities.
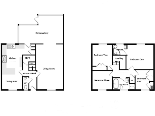
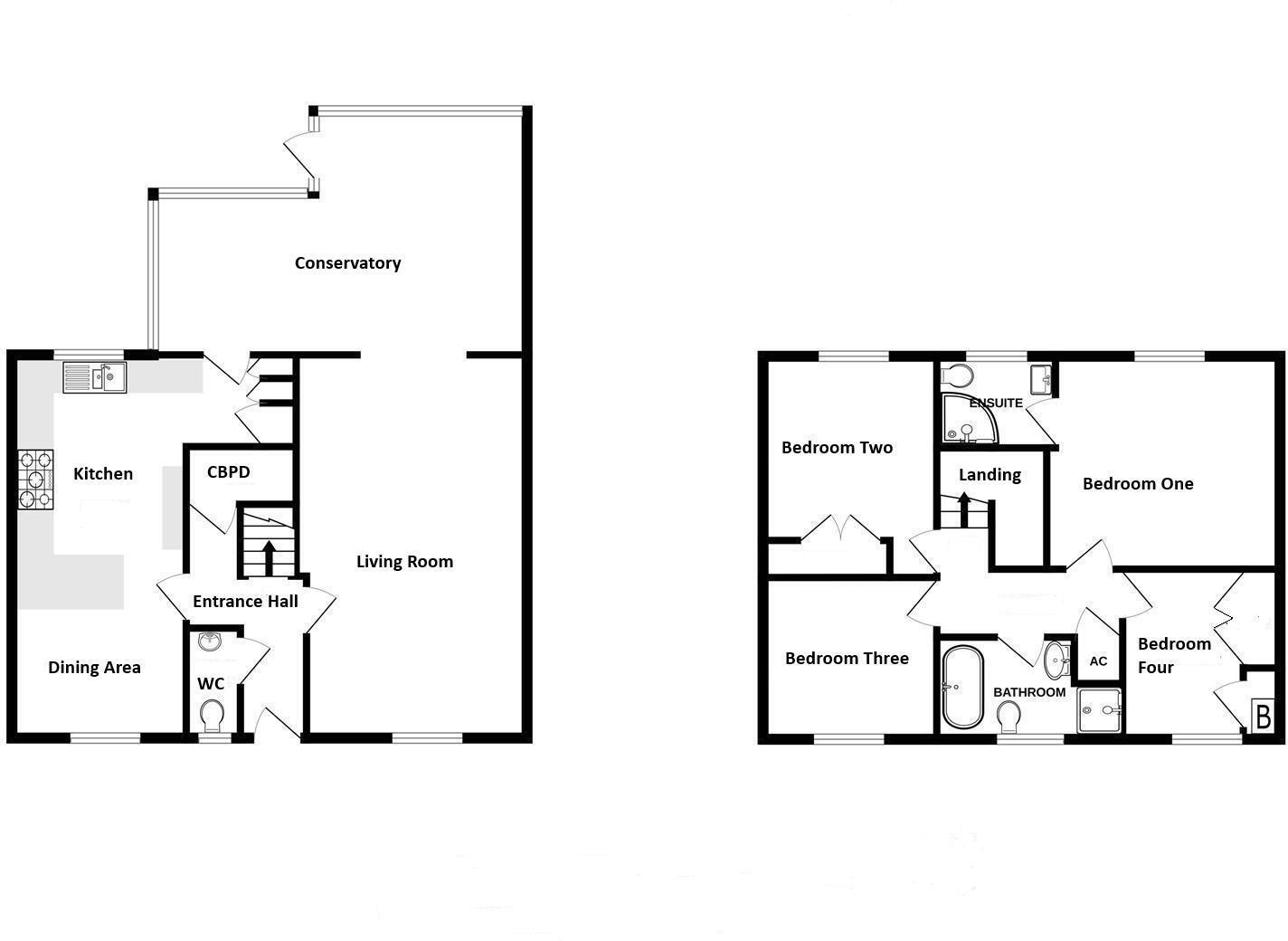
- Four-bedroom detached house with en-suite to principal bedroom
- Large, private landscaped rear garden with paved patio seating
- Conservatory and spacious living room with woodburner
- Driveway parking for several cars plus attached garage and office
- EPC rating D; potential to improve energy efficiency
- Double glazing fitted before 2002 may be due for upgrade
- Council Tax Band E (above average) and local crime above average
- Freehold, built early 1990s; scope for cosmetic modernisation
Set on the edge of Upton-Upon-Severn, this well-maintained four-bedroom detached house offers comfortable family living with a large private garden and versatile accommodation. The ground floor combines a spacious living room with a woodburner, a generous conservatory and a fitted kitchen-dining area, creating bright, flexible space for everyday life and entertaining. Upstairs are four bedrooms, including an en-suite to the principal room, and a family bathroom — practical for growing families.
Outside, the high-degree-of-privacy rear garden is a standout feature, landscaped with lawns, paved seating areas and mature planting. Driveway parking for several cars and an attached garage (with an internal office) add useful storage and a home-working option. The property is Freehold and set within a quiet village edge location with good mobile and broadband connectivity and nearby schools rated Good.
Practical points to note: the EPC is rated D, and double glazing was installed before 2002, so some energy improvements may be desirable. Council tax is band E (above average) and local crime statistics are above average for the area; purchasers should make their own enquiries. Built in the early 1990s, the house is presented in tidy condition but offers potential for cosmetic updating to personalise finishes and improve energy performance.
4 bedroom detached house for sale in Shire Gardens, Upton-Upon-Severn, Worcester, WR8 — £780,000 • 4 bed • 3 bath • 2453 ft²
4 bedroom detached house for sale in Furrow Close, Holly Green, Upton Upon Severn, Worcestershire, WR8 0RT, WR8 — £470,000 • 4 bed • 2 bath • 1314 ft²
4 bedroom detached house for sale in 80 Furrow Close, Holly Green, Upton Upon Severn, Worcestershire, WR8 — £490,000 • 4 bed • 2 bath • 1508 ft²
4 bedroom detached bungalow for sale in Minge Lane, Upton Upon Severn, WR8 — £470,000 • 4 bed • 2 bath • 1546 ft²
5 bedroom detached house for sale in Hill View Road, Strensham, WR8 — £585,000 • 5 bed • 2 bath • 1601 ft²
3 bedroom detached house for sale in 3 Grove Cottage, Grove Crescent, Ryall, Upton Upon Severn, Worcestershire, WR8 — £525,000 • 3 bed • 2 bath • 1633 ft²






























































































