Move-in ready two-bed marina lodge with strong leisure and rental potential..
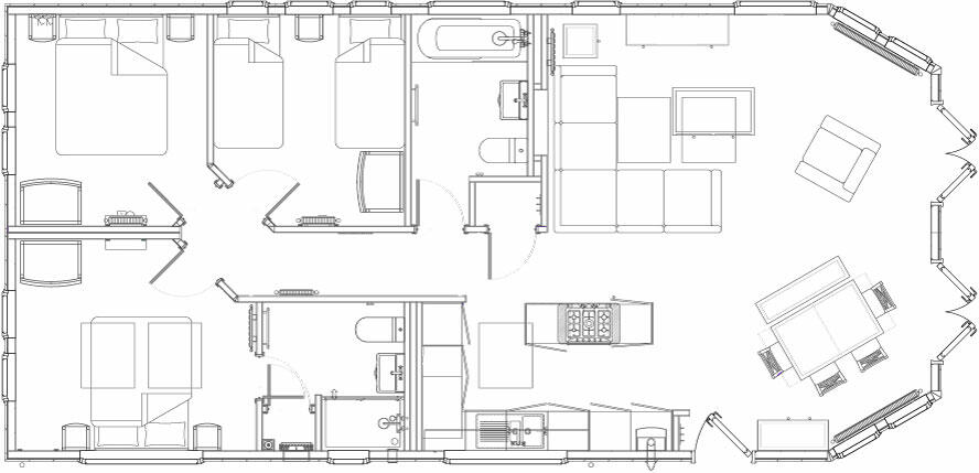
- Spacious open-plan living with large glazing and skylights
- Two bedrooms, two bathrooms; sold fully furnished
- Private terrace with direct marina and racecourse views
- Moorings available; onsite restaurant, facilities and parking
- Long lease (approx. 125 years) and new-build specification
- Ground rent very high (£4,530.56 p.a.), council tax above average
- Service charge £994.82 p.a. (below average); broadband speeds slow
- Pet friendly; safe, secure community with excellent mobile signal
A contemporary two-bedroom lodge set on Racecourse Marina, offering immediate occupation and waterside living close to Windsor town and racecourse. The open-plan living space is bright with large glazing and skylights, a fitted kitchen with appliances, private terrace overlooking the marina and off-street parking. The lodge is sold fully furnished and is pet friendly, with onsite facilities including a restaurant, moorings and a secure community feel.
This is a leasehold holiday-style home with a long lease (around 125 years remaining) and new-build specification, suited to buyers seeking a low-maintenance second home or lettings/investment opportunity. Broadband speeds are reported slow — important if you need reliable high-speed working-from-home connectivity — but mobile signal is excellent and transport links to London and Heathrow are strong.
Costs and tenure require careful consideration: ground rent is high (listed at £4,530.56 per year) and council tax is above average (typically Band E). The service charge is below average for similar developments, but the combination of ground rent and ongoing charges will materially affect running costs and investment returns. Flood risk is low and the area is very affluent, with nearby schools and local amenities.
Overall this lodge offers a ready-to-use, waterside lifestyle with attractive leisure and rental potential, but is best suited to buyers who accept leasehold ownership and the significant ground-rent commitment. Investors and leisure buyers should model ongoing costs alongside likely income before committing.
2 bedroom lodge for sale in Racecourse Marina,
Maidenhead Road,
Windsor,
SL4 5HT, SL4 — £449,000 • 2 bed • 2 bath • 990 ft²
2 bedroom caravan for sale in Maidenhead Road, Windsor, SL4 5HT, SL4 — £395,000 • 2 bed • 1 bath
2 bedroom lodge for sale in Maidenhead Road, Windsor, SL4 5HT, SL4 — £449,000 • 2 bed • 1 bath
2 bedroom detached bungalow for sale in Harleyford Estate, Marlow, SL7 — £500,000 • 2 bed • 2 bath • 942 ft²
2 bedroom lodge for sale in Chargers Paddock, Marlow, Buckinghamshire, SL7 — £425,000 • 2 bed • 2 bath • 830 ft²
2 bedroom lodge for sale in Chargers Paddock, Harleyford Manor Estate, Marlow, Buckinghamshire, SL7 — £280,000 • 2 bed • 2 bath • 558 ft²






















































