Large campsite licence, barns and paddocks ideal for tourism or smallholding enterprise.
Five-bedroom main house plus self-contained one-bedroom annex included
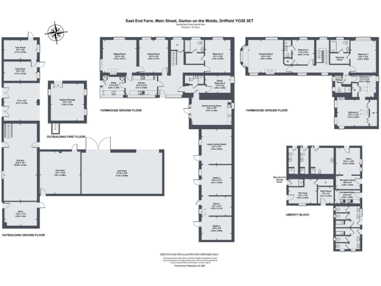
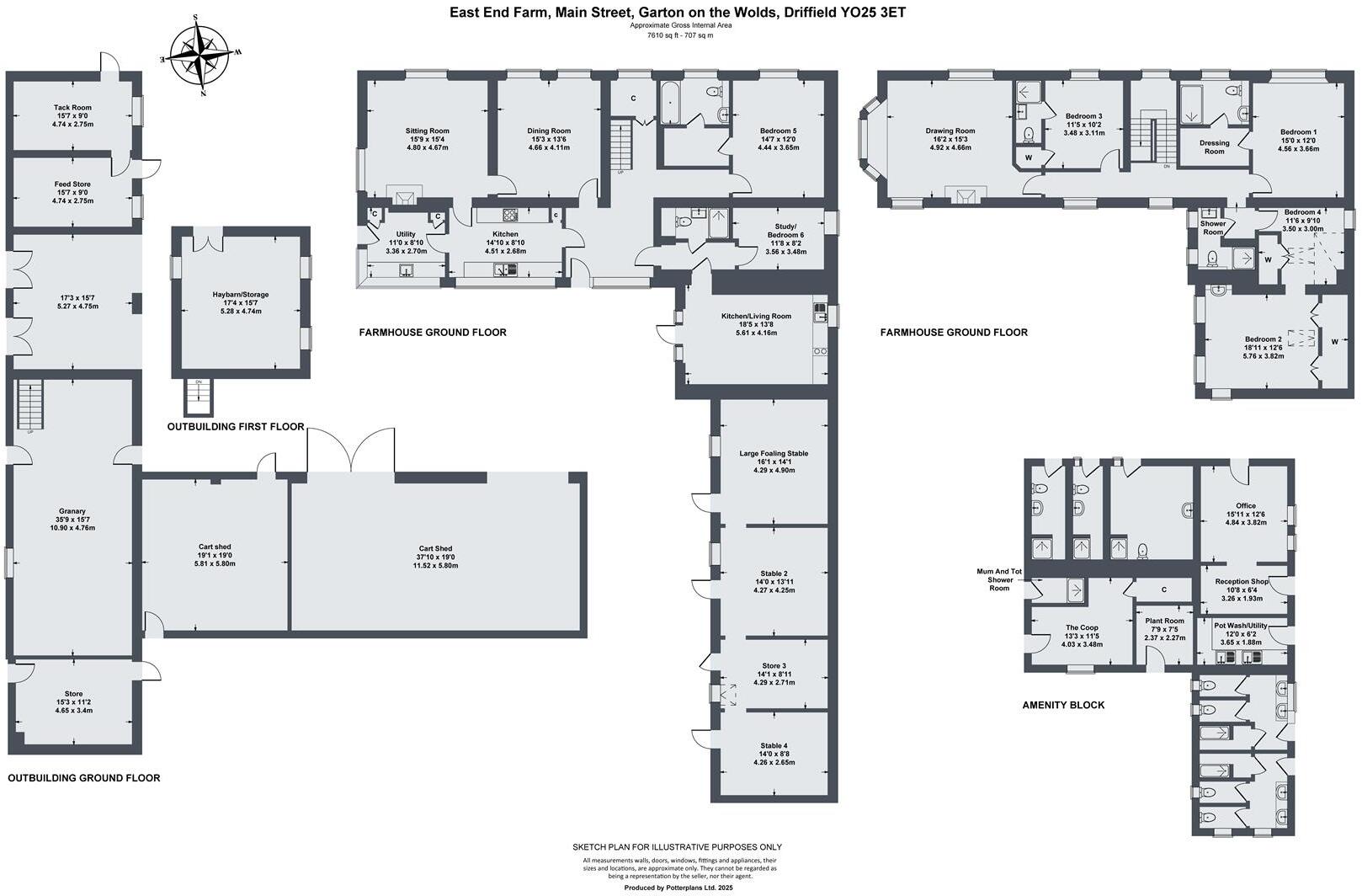
East End Farm is a substantial 19th-century rural estate set across about 8.85 acres (3.58 ha) in the Yorkshire Wolds. The holding comprises a large period farmhouse, a self-contained one-bedroom annex, substantial outbuildings and stables, and a modern amenity block. A site licence for up to 49 touring caravan pitches is in place, and planning permission exists for a touring caravan/campsite and conversion of a barn into holiday accommodation, so the property can generate immediate and longer-term tourism income.
The existing campsite and bespoke amenity block provide turn-key visitor facilities and a 12-month operating season offering year-round trading potential. The courtyard, paddocks and fenced grazing are well suited to equestrian or smallholding uses, while the barns and outbuildings present conversion potential for additional lettings or residential use (subject to necessary consents).
Buyers should note the building fabric and services: the farmhouse is solid brick (as built) with no assumed wall insulation, double glazing of unknown age, and oil-fired heating via boiler and radiators. These features mean running costs and an energy-performance upgrade programme should be factored into budgets. Some outbuildings may require significant refurbishment before conversion, and any change of use depends on obtaining the required planning approvals.
This offering will suit buyers seeking a mixed rural business, an investor wanting established holiday/touring income with growth potential, or a family looking for extensive outdoor space and ancillary enterprise opportunities. The property’s remoter village location provides privacy and countryside views, balanced by average local services, fast broadband and low crime levels.
4 bedroom detached house for sale in Everingham, York, YO42 — £1,650,000 • 4 bed • 2 bath • 2500 ft²
Farm land for sale in Gransmoor, Driffield, YO25 8HZ, YO25 — £749,000 • 4 bed • 1 bath • 7184 ft²
4 bedroom detached house for sale in West Knapton, Malton, YO17 — £530,000 • 4 bed • 1 bath • 6007 ft²
7 bedroom detached house for sale in Gransmoor Road, Gransmoor, YO25 8HX, YO25 — £635,000 • 7 bed • 3 bath • 3509 ft²
Leisure facility for sale in Holiday letting business for sale, Bartindale Road, Hunmanby, Filey, YO14 — £1,250,000 • 6 bed • 1 bath • 5057 ft²
5 bedroom detached house for sale in Hunmanby NORTH YORKSHIRE, YO14 — £1,250,000 • 5 bed • 2 bath • 1631 ft²










































































