Two-bedroom renovated home minutes from the station, ideal for first-time buyers.
Recently renovated throughout, ready to occupy
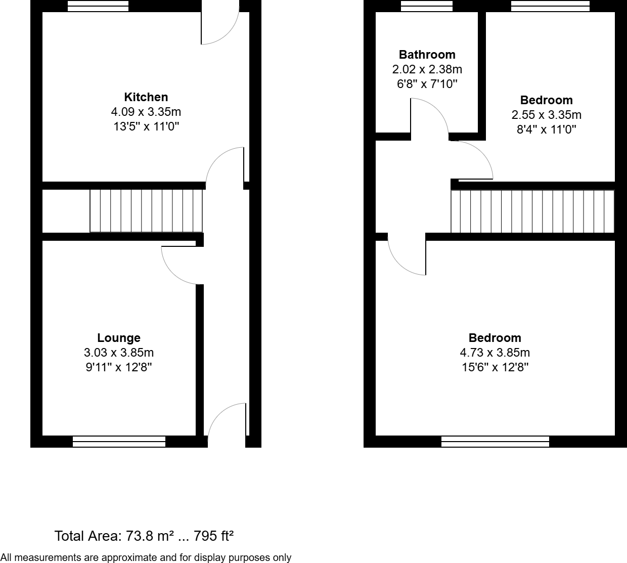
This recently renovated two-bedroom terraced home blends period character with contemporary finishes, ideal for first-time buyers or investors. The front principal room retains original floorboards and a feature fireplace, while the kitchen offers shaker-style cabinetry, integrated appliances and bold tiled flooring. The enclosed rear courtyard provides private outdoor space in a compact, low-maintenance plot.
At roughly 795 sq ft, the layout is traditional and practical: bright hallway, cosy lounge, modern kitchen, two double bedrooms and a stylish shower room. The property is freehold with a low council tax band, and its location a short walk from Ormskirk train station supports easy commuting to Liverpool and Preston.
Buyers should note the very small plot and constrained outdoor space; the townhouse scale suits those seeking low garden maintenance rather than extensive grounds. The immediate area is classified as deprived with above-average crime levels and a local profile that includes students and renters, which may affect long-term resale or letting yields. Overall, the home offers ready-to-move-in presentation and commuter convenience, balanced against local area considerations.
2 bedroom terraced house for sale in Burscough Street, Ormskirk, Lancashire, L39 — £235,000 • 2 bed • 1 bath • 963 ft²
2 bedroom terraced house for sale in Stanley Street, Ormskirk, L39 — £185,000 • 2 bed • 1 bath • 945 ft²
2 bedroom end of terrace house for sale in Southport Road, Ormskirk, Lancashire, L39 — £170,000 • 2 bed • 1 bath • 786 ft²
3 bedroom terraced house for sale in Aughton Street, Ormskirk, Lancashire, L39 — £180,000 • 3 bed • 1 bath • 873 ft²
2 bedroom end of terrace house for sale in Railway Approach, Ormskirk, L39 — £162,500 • 2 bed • 1 bath • 754 ft²
2 bedroom terraced house for sale in Southport Road, Ormskirk, L39 — £215,000 • 2 bed • 1 bath • 887 ft²










































