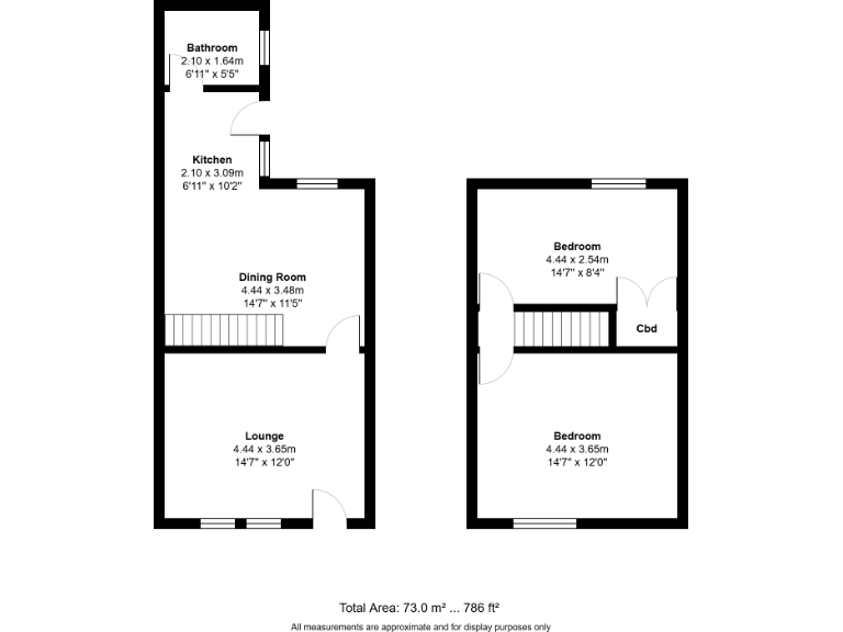
Spacious Victorian two-bed end terrace in central Ormskirk — ideal for first-time buyers or investors.
Two generous double bedrooms
This Victorian end-terrace offers a practical, well-proportioned home in the heart of Ormskirk. Two generously sized double bedrooms sit above a bright living room with high ceiling and fireplace, plus a separate dining room and fitted kitchen — a layout that suits first-time buyers, young families, or investors seeking straightforward rental accommodation.
The property benefits from additional natural light as an end house, a small walled rear courtyard and a modest front garden for kerb appeal. At 786 sq ft the size is average but rooms feel spacious; on-street parking is available directly outside and the home is close to shops, bars, schools and Ormskirk railway links.
Buyers should note the surrounding area is classed as deprived with above-average local crime rates. The plot is small and outside space is limited; while the home is well-presented in parts it would reward some modernisation to maximise value. There are no flooding risks, the tenure is freehold and council tax is modest (Band B).
Overall this is a centrally located, practical property with good rental or starter-home potential, best suited to buyers who prioritise location and room proportions over a large garden or a fully modernised finish.
2 bedroom terraced house for sale in Railway Approach, Ormskirk, Lancashire, L39 — £200,000 • 2 bed • 1 bath • 795 ft²
2 bedroom terraced house for sale in Stanley Street, Ormskirk, L39 — £185,000 • 2 bed • 1 bath • 945 ft²
3 bedroom terraced house for sale in Aughton Street, Ormskirk, Lancashire, L39 — £180,000 • 3 bed • 1 bath • 873 ft²
4 bedroom terraced house for sale in Prescot Road, Ormskirk, Lancashire, L39 — £290,000 • 4 bed • 2 bath • 1066 ft²
3 bedroom terraced house for sale in Wigan Road, Ormskirk, Lancashire, L39 — £175,000 • 3 bed • 1 bath • 1056 ft²
2 bedroom end of terrace house for sale in Fairfield Drive, Ormskirk, Lancashire, L39 — £200,000 • 2 bed • 1 bath • 715 ft²


























































