**Standout Features:**
- Full planning permission granted for development by May 2025
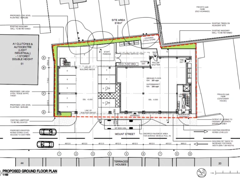
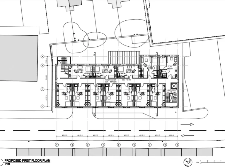
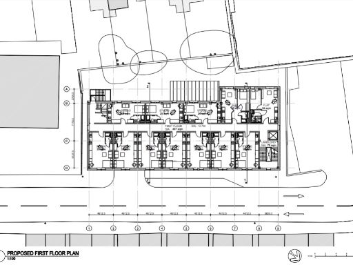
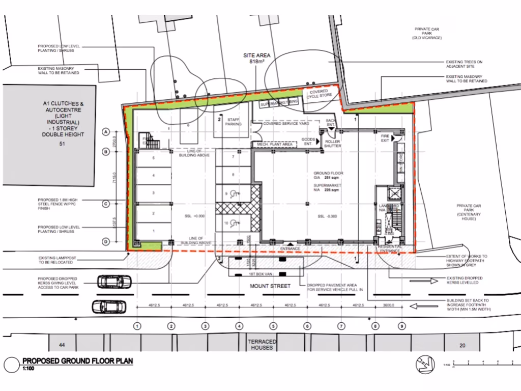
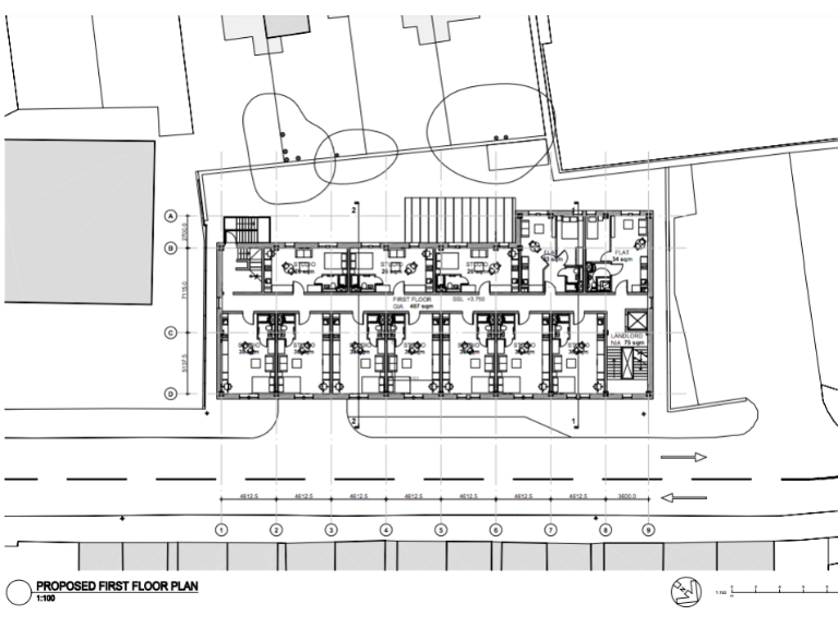
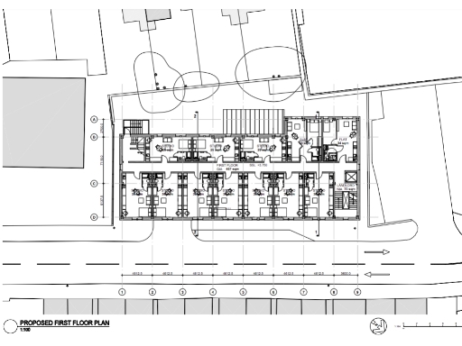
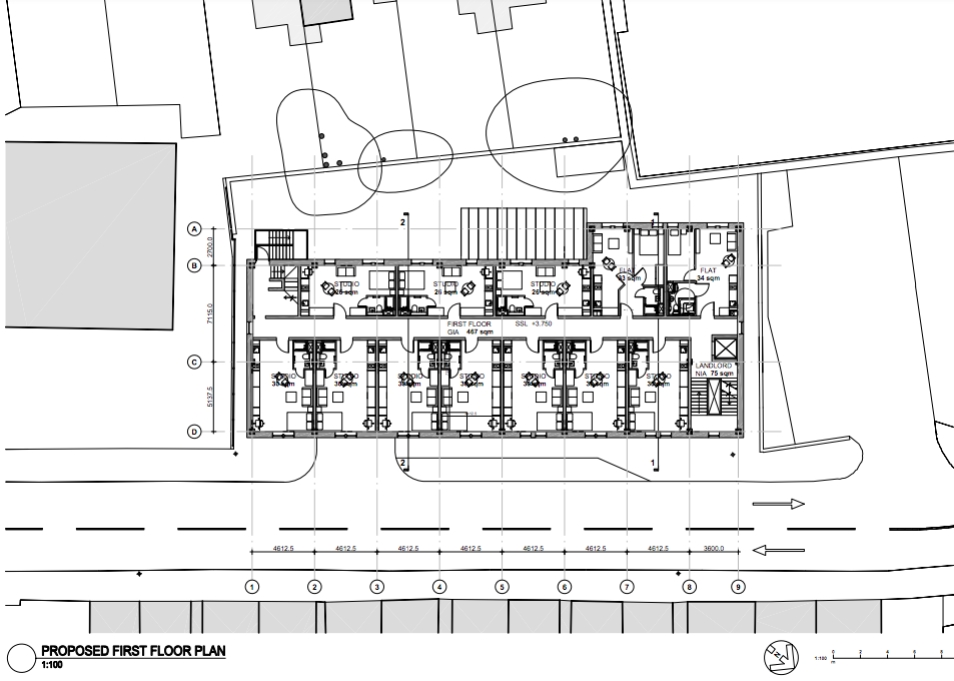
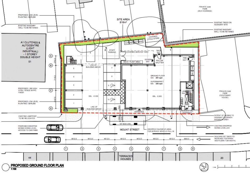
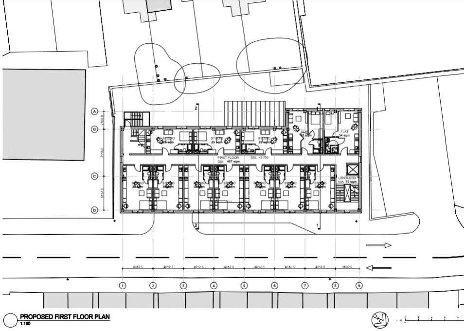
- 18 studio apartments and 2 one-bedroom flats
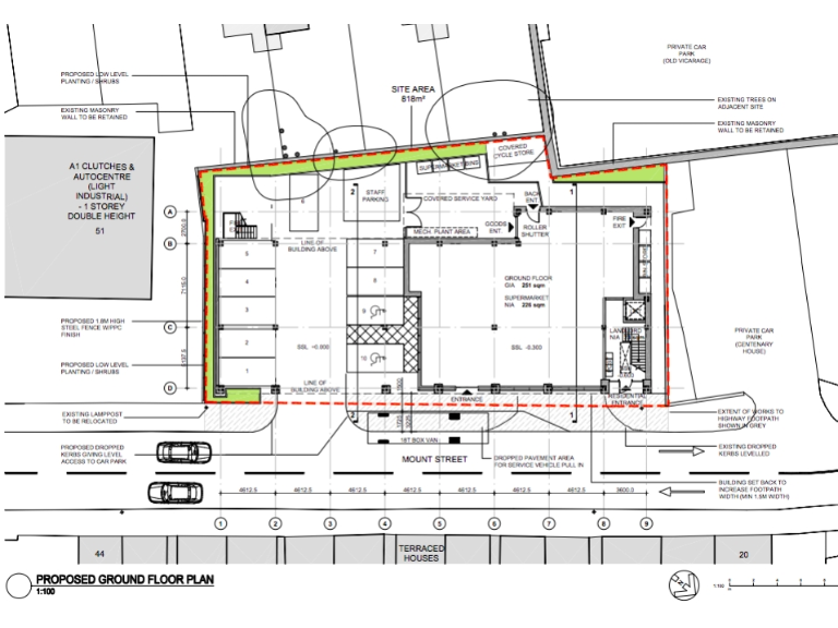
- Large commercial/retail unit with designated parking for 10 cars
- Prime city center location close to amenities and transport links
- Expected Gross Development Value of £2.4-2.5 million
**Potential Downsides:**
- Property requires development; current state is a cleared site
- Very high local crime rate and area deprivation concerns
Unlock the potential of this prime investment opportunity in Derby's bustling city center! Spanning approximately 0.2 acres, this mixed-use development site has full planning consent for a modern 3-storey building comprising 18 studio apartments and 2 one-bedroom flats, along with a sizable commercial retail space. With the total expected rental income of around £175,000 annually, this site presents significant profit potential *— don't miss the chance to generate substantial returns!*
Situated ideally within walking distance to local amenities and transport links, this easy-to-manage development offers not just residential flexibility but also the demand for commercial spaces in a dynamic urban setting. While the area faces challenges like high crime rates, the upside of high rental demand and the prospect of contributing positively to the revitalization of the neighborhood makes this an extraordinary opportunity for savvy investors and developers alike.
Act fast—opportunities of this caliber don’t last long!
2 bedroom block of apartments for sale in 40 Leopold Street and 1 The Avenue, Derby DE1 2HF, DE1 — £275,000 • 2 bed • 1 bath • 659 ft²
Residential development for sale in 603 London Road, Alvaston, Derby DE24 8UQ, DE24 — £400,000 • 1 bed • 1 bath • 6479 ft²
Land for sale in Potential Redevelopment Opportunity , Uttoxeter Old Road, Derby, Derbyshire, DE1 — POA • 1 bed • 1 bath • 21207 ft²
Residential development for sale in The Landmark, Phoenix Street, Derby, Derbyshire, DE1 — POA • 1 bed • 1 bath
High street retail property for sale in 24-25 Cornmarket, Derby, Derbyshire, DE1 2DP, DE1 — £550,000 • 1 bed • 1 bath • 10000 ft²
9 bedroom town house for sale in Friar Gate, Derby, DE1 — £360,000 • 9 bed • 9 bath • 477 ft²






























