Turnkey conversion with planning consent and strong rental projections.
Grade II listed Georgian mid-terrace, high ceilings and period features
Prime city-centre location next to University of Derby Law School
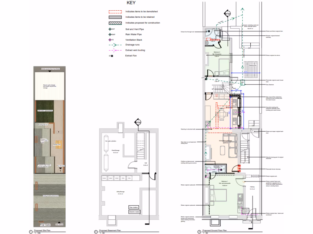
Planning and listed building consent already granted for nine studios
Projected gross income £84,000 pa; build cost estimate £285,000
Comprehensive technical reports and 3D walkthrough included
Medium flood risk; historic fabric requires specialist works
Very slow broadband and assumed uninsulated solid brick walls
High local crime and deprived area — manage lettings and security
A rare Grade II listed mid-terrace in Derby city centre, offered with full planning and listed building consent for conversion into nine studios. Its prime location next to the University of Derby Law School and 0.1 miles from the Business School supports strong student and professional demand, with a projected gross rental income of £84,000 per year. Included are comprehensive reports, a 3D walkthrough, build costs and a works schedule to support a turnkey delivery.
The building is period in character with high ceilings, sash windows and a Georgian façade, which will attract tenants and preserve heritage value. The approved scheme mixes single and double-occupancy studios with kitchenettes or tea stations and communal ground-floor space — a layout optimised for maximising yield in this market.
Buyers should note material considerations: the property is Grade II listed which will constrain some works and may increase costs; party walls and historic fabric require sensitive, specialist treatment. There is a medium flood risk, very slow broadband on site, and the original solid brick walls are assumed uninsulated. The projected build cost is estimated at £285,000 and the sales information includes asbestos and contamination reports.
This opportunity suits an investor seeking an income-focused city-centre HMO or student-communal asset. With planning consent in place and documentation supplied, the purchase reduces planning risk, but expects an owner prepared to manage heritage constraints, medium flood exposure and retrofit/modernisation costs to deliver the forecast returns.
Guest house for sale in North Parade, Derby, DE1 — £575,000 • 1 bed • 1 bath • 2443 ft²
3 bedroom town house for sale in St. Marys Gate, Derby, DE1 — £200,000 • 3 bed • 1 bath • 1806 ft²
9 bedroom town house for sale in Charnwood Street, Derby, Derbyshire, DE1 2GU, DE1 — £360,000 • 9 bed • 4 bath • 2315 ft²
11 bedroom town house for sale in Friar Gate, Derby, DE1 — £1,250,000 • 11 bed • 4 bath • 9882 ft²
3 bedroom town house for sale in Friar Gate, Conservation Area of Derby, DE1 — £399,950 • 3 bed • 2 bath • 1308 ft²
19 bedroom house of multiple occupation for sale in King Alfred Street, Derby, Derbyshire, DE22 3QJ, DE22 — £1,650,000 • 19 bed • 19 bath






















































































