Central location with garden and garage, ideal for small families or first-time buyers.
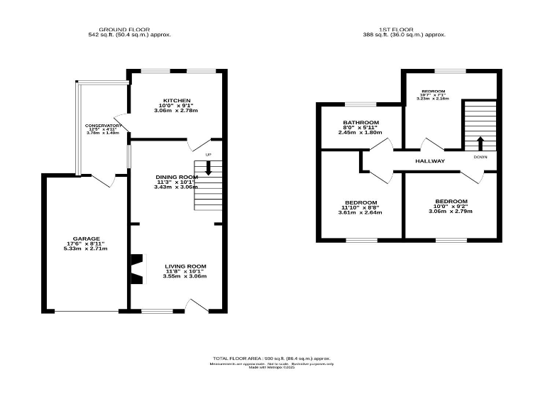
- Three bedrooms in a mid-terrace; compact, practical layout
- Good-size private rear lawned garden, gate to ginnel access
- Integral single garage with boiler; potential to convert (subject to consent)
- Short walk to Macclesfield town centre, shops and transport
- Modern kitchen, conservatory and double glazing (post-2002)
- Solid brick walls (1900–1929) — likely need wall insulation upgrades
- Single bathroom only; room sizes are small
- Offered freehold with no onward chain; council tax very cheap
A well-located three-bedroom mid-terrace in central Macclesfield, offered with no onward chain and ready to move into. The house sits on a residential street a short walk from the town centre and local amenities, with fast broadband, excellent mobile signal and low local crime.
Accommodation is compact but practical across two storeys: a through lounge/diner, modern compact kitchen, conservatory, three first-floor bedrooms and a single bathroom. The property benefits from double glazing installed after 2002, mains gas central heating with a boiler housed in the integral garage, and a decent private lawned rear garden perfect for children or outdoor entertaining.
The single garage provides parking and storage and could be converted (subject to consents) to create additional living space or a home office; it also contains plumbing for a washing machine. The house is of traditional solid-brick construction (c.1900–1929) so buyers should consider potential solid-wall insulation improvement costs if increased thermal performance is required.
This home will suit a small family, first-time buyers looking for central convenience, or an investor seeking a town-centre rental. The property is presented in good order but has small room sizes and a single bathroom, which are practical limits to consider when evaluating household needs or rental layouts.
3 bedroom terraced house for sale in Abbey Road, Macclesfield, SK10 — £249,950 • 3 bed • 1 bath • 659 ft²
3 bedroom terraced house for sale in London Road, Lyme Green, SK11 — £269,500 • 3 bed • 1 bath • 1055 ft²
2 bedroom terraced house for sale in Newton Street, Macclesfield, Cheshire, SK11 — £200,000 • 2 bed • 1 bath • 637 ft²
3 bedroom terraced house for sale in Renfrew Close, Macclesfield, SK10 — £175,000 • 3 bed • 1 bath • 629 ft²
3 bedroom mews property for sale in Ullswater, Macclesfield, SK11 — £335,000 • 3 bed • 1 bath • 1071 ft²






















































