SK11 0JX - 3 bedroom terraced house for sale in London Road, Lyme Gree…

View on Property Piper

3 bedroom terraced house for sale in London Road, Lyme Green, SK11

Summary - 37, London Road, Lyme Green SK11 0JX

3 bed 1 bath Terraced

**Standout Features:**
- Newly renovated three-bedroom mid-terrace home
- Spacious 70ft private rear garden, ideal for families
- Bright, open-plan dining kitchen with modern fixtures
- Centrally heated conservatory that provides outdoor views
- Off-road parking for two to three vehicles
- Good condition with stylish finishes throughout
- Desirable residential area close to schools
- Potential for family enjoyment and entertaining

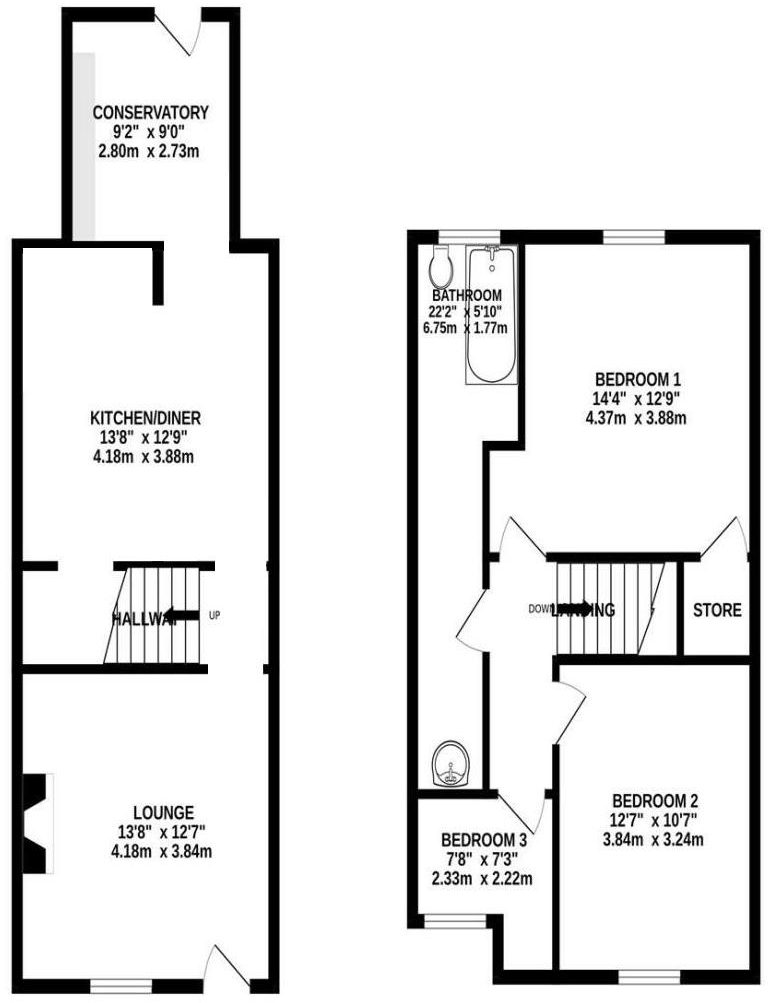
This beautifully presented three-bedroom mid-terrace home in Macclesfield is a perfect blend of modern style and welcoming comfort, making it an excellent choice for families or first-time buyers. Enter through a bright lounge that flows seamlessly into a spacious open-plan dining kitchen, enhanced by a centrally heated conservatory that offers year-round views of the impressively sized 70ft rear garden. Ideal for children, pets, or summer gatherings, this private outdoor space is a standout feature, alongside off-road parking for multiple vehicles.

Upstairs, enjoy three well-proportioned bedrooms and a contemporary family bathroom that exudes modern elegance. The smart tarmac driveway and well-maintained aesthetic ensure that this home leaves a lasting impression. While the surrounding area is primarily residential and offers average broadband speeds, it features multiple nearby schools and essential amenities. This highly desirable property is ready for you to move into and enjoy—early viewing is essential in this competitive market. Don’t miss the opportunity to create lasting memories in this charming home!

Property Details

Brochure Descriptions

Image Descriptions

Rooms

Textual Property Features

Detected Visual Features

EPC Details

Nearby Schools

Nearest Bars And Restaurants

,,,,}

Nearest General Shops

,,}

Nearest Grocery shops

,,}

Nearest Supermarkets

,,}

Nearest Religious buildings

,,}

Nearest Medical buildings

,,,}

Nearest Airports

}

Nearest Leisure Facilities

,,,,}

Nearest Tourist attractions

,,}

Nearest Train stations

,,,,}

Nearest Bus stations and stops

,,,,}

Nearest Hotels

,,}

Tags

Local Market Stats

Similar Properties

Meta

High Res Images

Compatible Images

Low res Images

Thumbnails

Raw Images

High Res Floorplan Images

Compatible Floorplan Images

Low res Floorplan Images

FloorplanImages Thumbnail

Raw Floorplan Images