**Standout Features:**
- **Recently renovated** Victorian red sandstone tenement
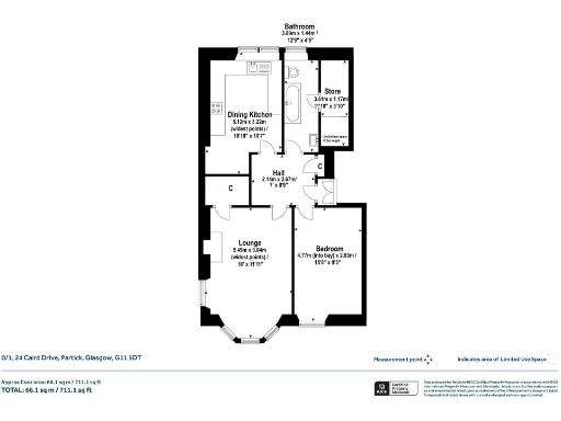
- **Spacious 1-bedroom apartment** on elevated ground floor
- **High ceilings, bay windows, and original wood paneling**
- **Generous living space** with dining kitchen and large bathroom
- **Newly rewired** (2022) and **new gas boiler** (2022)
- **Excellent mobile signal** and **fast broadband speeds**
- **On-street parking** available via council permit
- **Chain-free** for a quick move-in
**Potential Concerns:**
- Located in an area that is classified as **very deprived**
Discover urban living at its finest in this beautifully refurbished 1-bedroom apartment, perfectly situated in a charming Victorian building in the sought-after West End. The newly renovated space boasts high ceilings and rich original details, creating a cozy and inviting atmosphere. Enjoy the bright bay window lounge, ideal for relaxation, or transform the large walk-in cupboard into your dream home office.
With a king-sized bedroom, spacious dining kitchen, and a traditional bathroom featuring ample storage, this property combines character and convenience. Enjoy easy access to local amenities in Partick and Hyndland, along with excellent public transport options to Glasgow University and Byres Road.
This property is ideal for first-time buyers, professionals, or investors with its renovation potential and desirable location. Don't miss out on this unique opportunity—properties like this are rare in such a vibrant area. Embrace your new home today!
1 bedroom apartment for sale in 1/1, 111 Dumbarton Road, Partick, G11 6PW, G11 — £139,000 • 1 bed • 1 bath • 493 ft²
1 bedroom flat for sale in Airlie Street, Flat 1/1, Hyndland, Glasgow, G12 9TP, G12 — £199,000 • 1 bed • 1 bath • 764 ft²
1 bedroom flat for sale in Hyndland Road, Hyndland, G12 — £245,000 • 1 bed • 1 bath • 766 ft²
1 bedroom flat for sale in Lasswade Street, Yoker, Glasgow City, G14 — £85,000 • 1 bed • 1 bath • 378 ft²
1 bedroom flat for sale in Huntly Gardens, Hillhead, Glasgow, G12 — £140,000 • 1 bed • 1 bath
1 bedroom apartment for sale in Kennoway Drive , Glasgow , G11 7UB , G11 — £145,000 • 1 bed • 1 bath • 506 ft²






















































































