**Standout Features:**
- Spacious 1-bedroom flat in a historic Victorian tenement.
- High ceilings with decorative details and large bay windows.
- Modern, dining-sized kitchen and utility room.
- Conveniently located near Glasgow University and local amenities.
- Excellent mobile signal and fast broadband availability.
**Potential Concerns:**
- Property is in a deprived area, which may impact investment value.
- Potential for modernization to suit personal taste.
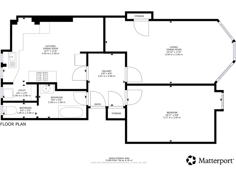
This charming one-bedroom flat, situated on the preferred first floor of a well-maintained Victorian tenement on Airlie Street, offers a unique blend of historic allure and modern convenience. With generous living spaces bathed in natural light, the living room features stunning high ceilings, a decorative ceiling rose, and the added bonus of a traditional bay window. The dining-sized kitchen and separate utility room present an opportunity for entertaining, while a large double bedroom ensures comfort.
Nestled in a cosmopolitan student neighborhood, this flat is perfect for both investors and first-time buyers—especially those connected to Glasgow University, just a short walk away. The vibrant local scene boasts a variety of cafés, boutiques, and eateries, providing everything you need just around the corner. Don’t miss this opportunity to claim your spot in one of the West End’s most picturesque streets; modernization potential allows you to customize your living space to suit your style. Enjoy secure entry and the charm of communal living in a culturally rich area. Schedule your viewing today to see the potential of this inviting home!











































































