Turnkey first-floor home with gated parking and fast central London links.
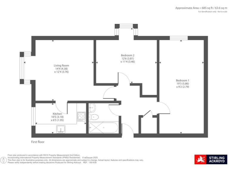
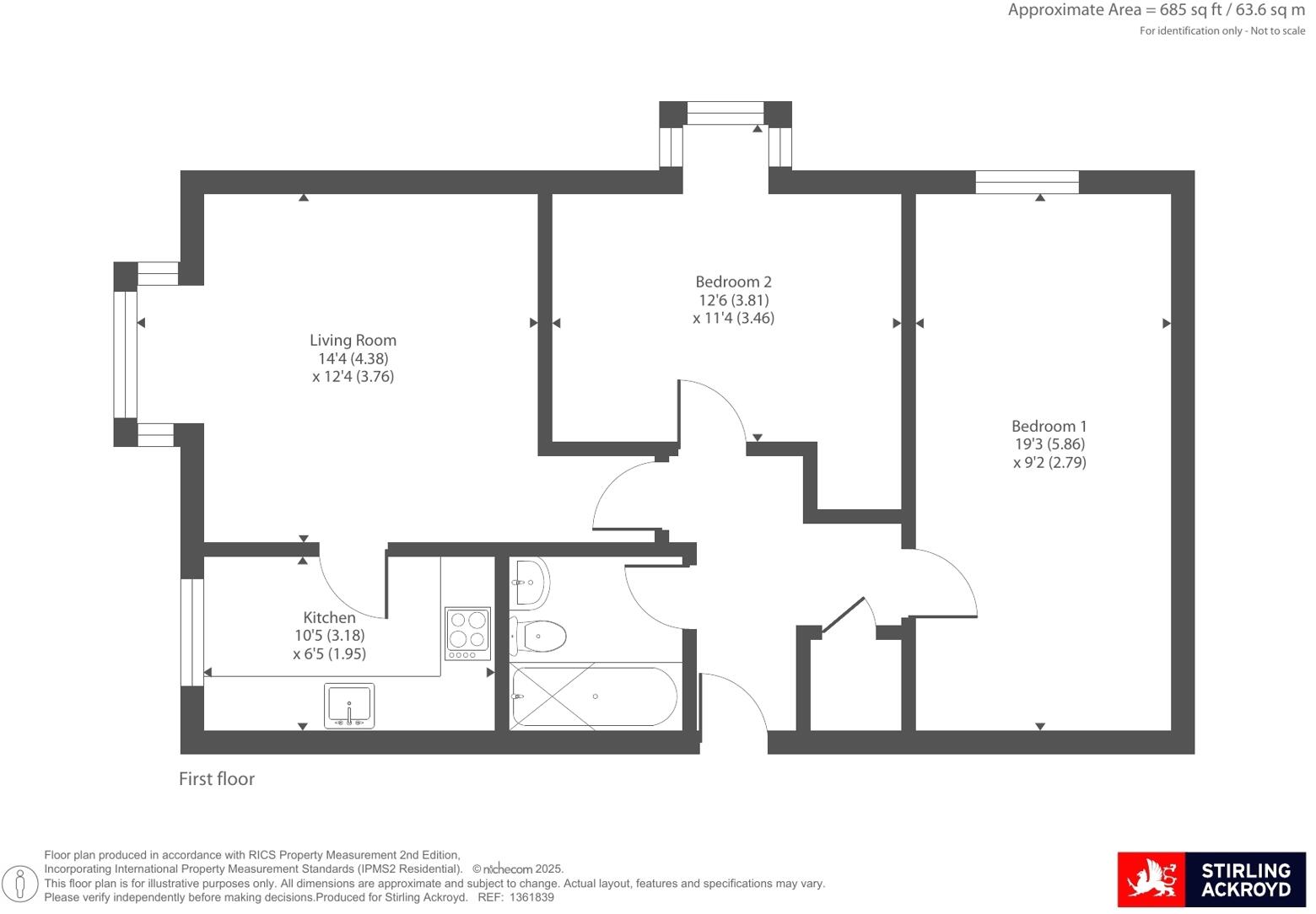
685 sq ft first-floor flat, newly refurbished throughout
This freshly refurbished first-floor flat offers 685 sq ft of ready-to-move-in living space, with two generous double bedrooms and a bright reception. The modern fitted kitchen has integrated appliances and the contemporary bathroom is finished to a neutral, practical specification — ideal for buyers who want a turnkey home.
Practical benefits include allocated gated parking, double glazing, and convenient access to Anerley and Penge West stations for fast links into central London. Crystal Palace Park and Penge High Street are within easy walking distance, giving a good mix of green space and local amenities.
Buyers should note this is a leasehold property with 91 years remaining. Annual service charge averages £2,260 and ground rent is £150 per year. Council tax is described as affordable. The area has high crime statistics and ranks as very deprived, which may affect long-term resale or rental appeal.
Overall the flat suits first-time buyers seeking a move-in ready London base or investors looking for a straightforward rental proposition close to transport and green space. There is no onward chain, so completion can be straightforward for an able buyer aware of the leasehold costs and local area challenges.
2 bedroom apartment for sale in Derwent Road, London, SE20 — £310,000 • 2 bed • 1 bath • 587 ft²
2 bedroom flat for sale in Orchard Grove, Anerley, London, SE20 — £375,000 • 2 bed • 1 bath • 727 ft²
2 bedroom apartment for sale in Weighton Road, London, SE20 — £300,000 • 2 bed • 1 bath • 459 ft²
1 bedroom flat for sale in Croydon Road, London, SE20 — £275,000 • 1 bed • 1 bath • 465 ft²
2 bedroom flat for sale in Thicket Road, London, SE20 — £325,000 • 2 bed • 1 bath • 474 ft²
2 bedroom apartment for sale in Apple Yard, London, SE20 — £435,000 • 2 bed • 1 bath • 764 ft²






























































