Ready-to-move-in flat near station and town centre, ideal for first-time buyers.
Chain-free two-bedroom apartment with open-plan living area
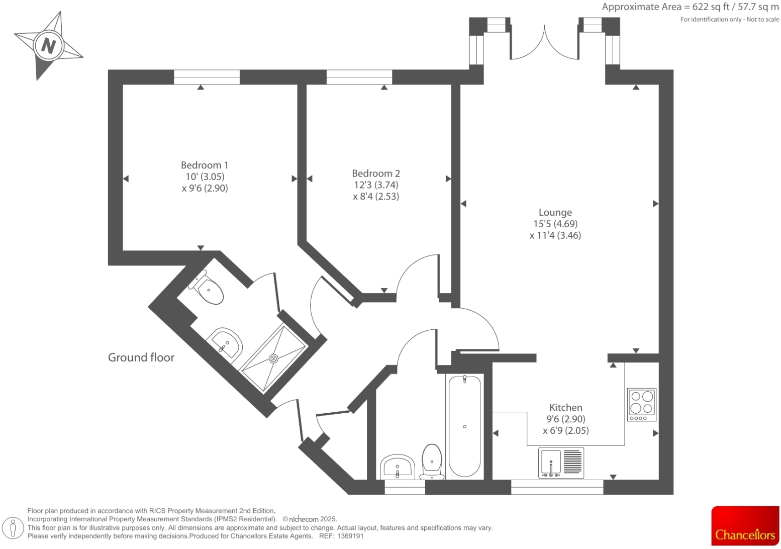
This chain-free, two-bedroom apartment offers a practical first home or rental purchase close to Banbury town centre. Set within a contemporary three-storey red-brick development, the flat has an open-plan living, dining and kitchen area, two double bedrooms and a bathroom. Allocated off-street parking and a low-maintenance communal garden add convenience.
Position is a key strength: the property sits about 0.4 miles from Banbury train station and 1.1 miles from the town centre, with the M40 around 1.2 miles away for easy commuting. At approximately 622 sq ft and with 135–151 years remaining on the lease, the apartment is a manageable size with a long lease for a leasehold purchase.
Practical considerations are clear and important. The local area records higher-than-average crime and is classed as deprived; buyers should review local safety and amenity needs. The flat is leasehold, so service charges and ground rent will apply—confirm current figures before committing. Council tax is described as cheap and mobile and broadband connectivity are strong.
Overall, this property suits first-time buyers wanting sensible transport links, or investors seeking a rental near the station. It provides ready-move-in accommodation with modest outside space, but buyers should factor in local area challenges and standard leasehold costs.
2 bedroom flat for sale in Banbury, Oxfordshire, OX16 — £170,000 • 2 bed • 1 bath • 590 ft²
2 bedroom flat for sale in Banbury, Oxfordshire, OX16 — £170,000 • 2 bed • 2 bath • 785 ft²
2 bedroom apartment for sale in Crouch Street, Banbury, OX16 — £210,000 • 2 bed • 1 bath • 646 ft²
2 bedroom flat for sale in Alma Road, Banbury, Oxfordshire, OX16 — £175,000 • 2 bed • 2 bath • 603 ft²
2 bedroom ground floor flat for sale in Peoples Place, OX16 — £180,000 • 2 bed • 1 bath • 711 ft²
2 bedroom flat for sale in Banbury, Oxfordshire, OX16 — £150,000 • 2 bed • 2 bath • 625 ft²


























































































