Chain-free three-bed with large garden, driveway parking and field views.
Chain free three-bedroom semi-detached house
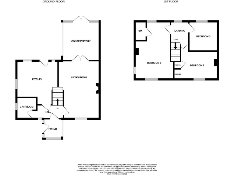
A bright, chain-free three-bedroom semi in the small hamlet of Elmstone Hardwicke, set between Cheltenham and Tewkesbury. The house benefits from open views to front and rear, a conservatory that floods the living space with daylight, and a large, level rear garden backing onto fields — ideal for outdoor living or extending (subject to consents).
Inside, the layout is practical: lounge/dining room with an attractive fireplace, a modern kitchen/breakfast room with garden access, newly fitted bathroom, and a main bedroom with ensuite WC. The property has new gas central heating, mains drainage and uPVC double glazing, allowing for immediate occupation with minimal work.
Practical positives include off-street driveway parking for several vehicles and a generous plot. The house is modest in overall size (approximately 797 sq ft) and has a single family bathroom, which should be considered by buyers who need more internal space or an additional bathroom. The construction era (1950s–1960s) and filled cavity walls are typical of the period and present no known flood risk.
This home will suit buyers seeking a well-presented, low-hassle village property with strong outdoor amenity — families wanting good local and commuter access, or downsizers who value a large garden and parking. Those looking for a larger internal footprint or multiple bathrooms may prefer to view with refurbishment or extension potential in mind.
3 bedroom semi-detached house for sale in Moonstone Grove, Bishops Cleeve, Cheltenham, GL52 — £339,950 • 3 bed • 3 bath • 955 ft²
3 bedroom semi-detached house for sale in Pheasant Lane, Cheltenham, Gloucestershire, GL51 — £390,000 • 3 bed • 1 bath • 1240 ft²
3 bedroom semi-detached house for sale in Arle Road, Cheltenham, Gloucestershire, GL51 — £375,000 • 3 bed • 2 bath • 1042 ft²
3 bedroom semi-detached house for sale in Ladysmith Road, Cheltenham, Gloucestershire, GL52 — £300,000 • 3 bed • 1 bath • 946 ft²
3 bedroom semi-detached house for sale in Farmfield Road, Cheltenham, Gloucestershire, GL51 — £385,000 • 3 bed • 1 bath • 1494 ft²
3 bedroom semi-detached house for sale in Southgate Drive, Cheltenham, Gloucestershire, GL53 — £450,000 • 3 bed • 1 bath • 1015 ft²










































