Peaceful family home with large plot and country views close to top schools.
Victorian semi-detached with strong period character
Large private garden and generous plot with countryside views
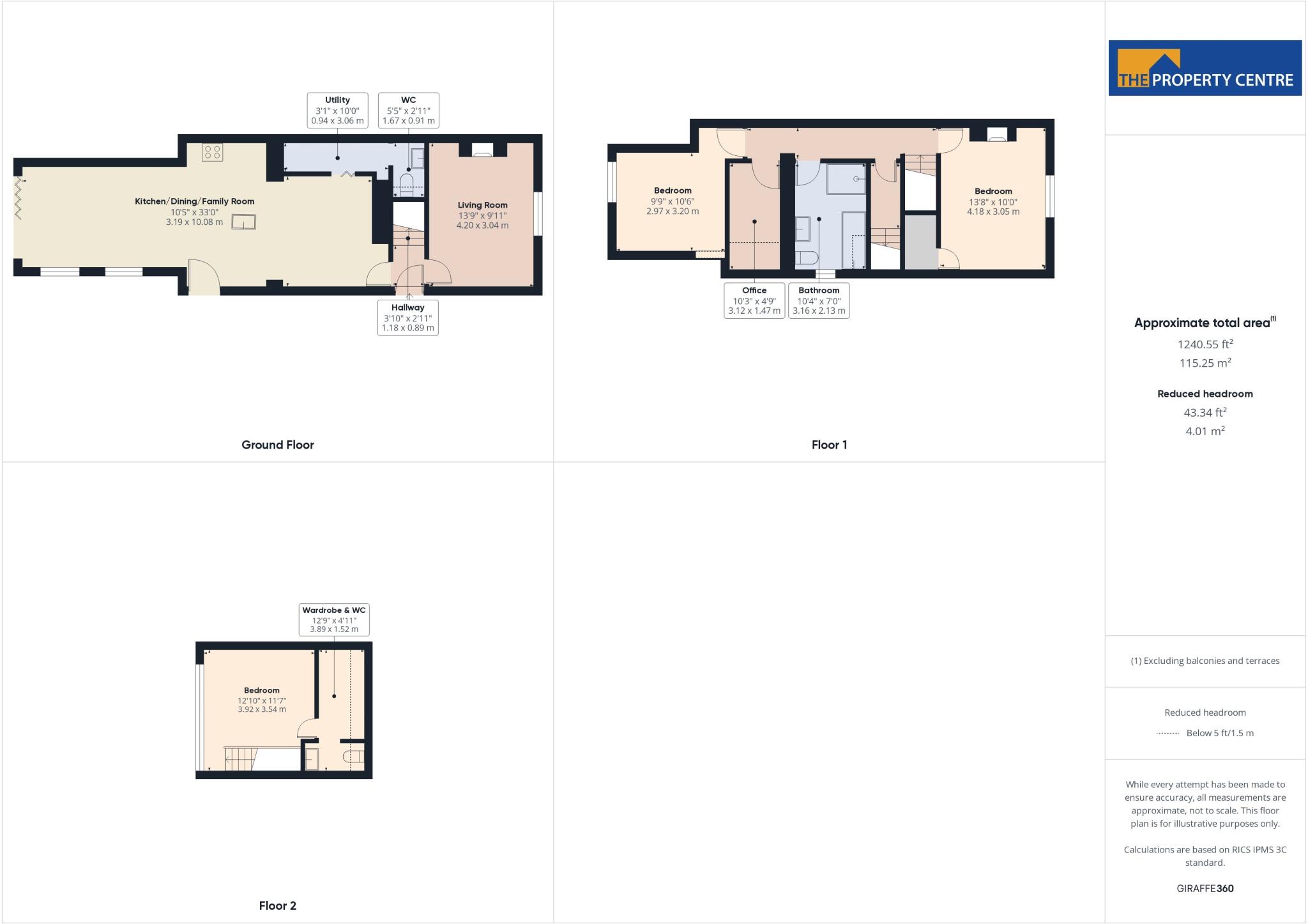
Spacious kitchen/diner and exceptional four-piece bathroom
Three bedrooms across multiple storeys, comfortable living room
Off-street parking; no onward chain for faster completion
Heating: LPG boiler and radiators; independent fuel supply
Solid brick walls likely uninsulated — potential upgrade needed
Very slow broadband; medium flood risk and above-average crime
This Victorian semi sits in a quiet hamlet position with countryside views and a large private garden, offering a peaceful setting for family life. The house retains period character while presenting a bright, contemporary kitchen/diner and an exceptional four-piece bathroom — ready to move into with immediate possession available.
Accommodation is arranged over multiple levels with three comfortable bedrooms and a generous living room for everyday family use. Off-street parking adds convenience, and the substantial plot creates scope for outdoor living, play space, or further landscaping.
Practical considerations are clear: heating is via an LPG boiler and radiators, the solid brick walls are likely uninsulated and may need upgrading, and broadband speeds are very slow. There is a medium flood risk for the area and local crime levels are above average; these factors should be weighed by buyers.
The location performs well for schooling, including top-ranked local options, and benefits from meadow, woodland and stream nearby for walks. With no onward chain and good mobile signal, the property suits families wanting period charm with space to adapt, or buyers looking for a character home to improve over time.
4 bedroom semi-detached house for sale in Pheasant Lane, Cheltenham, GL51 — £800,000 • 4 bed • 3 bath • 1801 ft²
3 bedroom semi-detached house for sale in Severn Way, Apperley, Gloucester, Gloucestershire, GL19 — £400,000 • 3 bed • 2 bath • 1484 ft²
3 bedroom semi-detached house for sale in School Road, Bishops Cleeve, Cheltenham, GL52 — £550,000 • 3 bed • 2 bath • 1455 ft²
4 bedroom detached house for sale in Bamfurlong Lane, Cheltenham, Gloucestershire, GL51 — £725,000 • 4 bed • 3 bath • 2311 ft²
4 bedroom semi-detached house for sale in Stoke Road, Stoke Orchard, Cheltenham, GL52 — £470,000 • 4 bed • 3 bath • 1680 ft²
4 bedroom detached house for sale in Village Road, Cheltenham, GL51 — £375,000 • 4 bed • 2 bath • 1375 ft²














































































































































































