Well‑presented family home with garage, large garden and extra loft space.
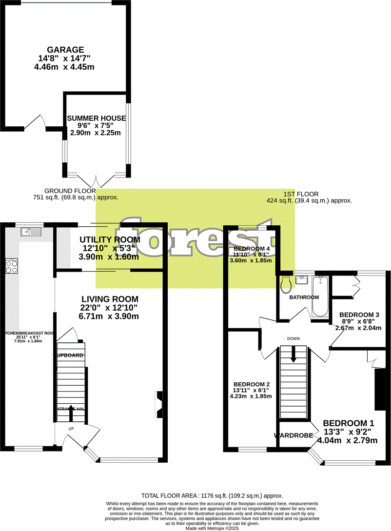
Four bedrooms plus boarded loft room for storage or hobbies
Extended side kitchen and conservatory/utility for flexible living
Detached garage with rear access and separate summer house
Driveway parking for at least one car; up‑and‑over garage door
Generous, well‑maintained rear garden with lawn and patio
Single family bathroom only; no additional shower room on first floor
Freehold tenure; council tax band C (affordable)
Buyers should confirm planning/rights for extensions and services
This immaculately presented four-bedroom end-of-terrace offers generous living space arranged over two storeys, extended to the side and finished to a modern standard. The long through living room and extended kitchen/conservatory create a flexible ground-floor layout that suits family life and entertaining. A boarded loft room provides valuable extra space for storage or a hobby room.
Outside, the property benefits from a deep, well-kept rear garden, a detached garage with rear access and a summer house — ideal for home working or children’s play. Driveway parking to the front adds everyday convenience on this popular residential street close to Feltham High Street and local amenities.
Practical points to note: there is a single bathroom serving four bedrooms, and some buyers may wish to verify any permissions for the existing side extension. The house sits in an area described as more deprived and with average local crime; council tax band is C which is relatively affordable. Broadband and mobile signal are strong, making the home suitable for remote working and family connectivity.
4 bedroom end of terrace house for sale in Uxbridge Road, Feltham, Middlesex, TW13 — £540,000 • 4 bed • 2 bath • 1124 ft²
4 bedroom semi-detached house for sale in Helen Avenue, Feltham, Middlesex, TW14 — £565,000 • 4 bed • 2 bath • 1110 ft²
4 bedroom semi-detached house for sale in Harlington Road West, Feltham, Middlesex, TW14 — £650,000 • 4 bed • 2 bath • 1333 ft²
2 bedroom terraced house for sale in Cravan Avenue, Feltham, TW13 — £450,000 • 2 bed • 1 bath • 810 ft²
4 bedroom end of terrace house for sale in Sunningdale Avenue, Feltham, TW13 — £550,000 • 4 bed • 2 bath • 1600 ft²
4 bedroom semi-detached house for sale in Millbourne Road, Feltham, Middlesex, TW13 — £569,950 • 4 bed • 2 bath • 1363 ft²






















































































