Affordable town-centre buy with strong rental or starter-home potential.
Three double bedrooms plus small third bedroom suitable for single use or study
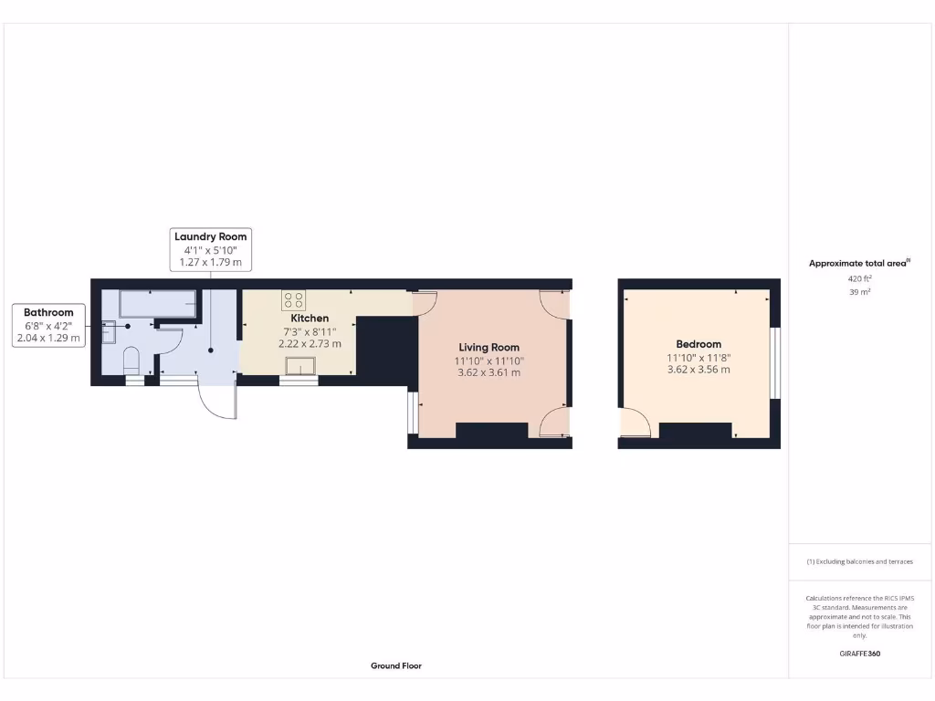
Approx. 657 sq ft (61 m²) — small overall footprint
Bay-fronted living room provides strong natural light
Galley kitchen with direct access to utility and laundry areas
Freehold tenure, low council tax and fast broadband/mobile
Small paved front garden; no garage, on-street parking only
Some external wear and minor maintenance required (pointing/paint)
Reports of potential damp and general need for modernisation
This compact three-bedroom end-terrace offers an affordable entry into Boston's town centre housing market. The house retains period character — a bay-fronted reception and red-brick exterior — while offering a practical layout with living room, galley kitchen, utility/laundry space and a ground-floor bathroom. The home is freehold and benefits from low council tax, fast broadband and excellent mobile signal.
The property will suit first-time buyers or landlords seeking a straightforward buy-to-let: rooms are well-proportioned for the footprint and the street is quiet with easy on-street parking. Nearby amenities and several primary and secondary schools, including a couple rated Outstanding, add everyday convenience for families.
Note the property requires some modernization and visible external wear; there are reports of potential damp and minor maintenance like repointing and paintwork. Internally room sizes are compact and the plot is small, so buyers should expect limited outdoor space. Viewing is recommended to assess renovation scope and confirm condition before committing.
3 bedroom terraced house for sale in Browns Road, Boston, PE21 — £125,000 • 3 bed • 1 bath • 771 ft²
3 bedroom end of terrace house for sale in Windsor Bank, Boston, PE21 — £118,500 • 3 bed • 1 bath • 806 ft²
2 bedroom terraced house for sale in Horncastle Road, Boston, PE21 — £155,000 • 2 bed • 1 bath • 1039 ft²
3 bedroom terraced house for sale in Albert Street, Boston, PE21 — £145,000 • 3 bed • 1 bath • 1174 ft²
4 bedroom terraced house for sale in Dover Terrace, Boston, PE21 — £179,950 • 4 bed • 2 bath • 1145 ft²
3 bedroom semi-detached house for sale in Bluebell Walk, Boston, PE21 — £189,950 • 3 bed • 2 bath • 764 ft²














































































