Character-filled, spacious chapel conversion with large garden and gated parking.
Converted Victorian Gothic chapel with original stained-glass windows and high ceilings
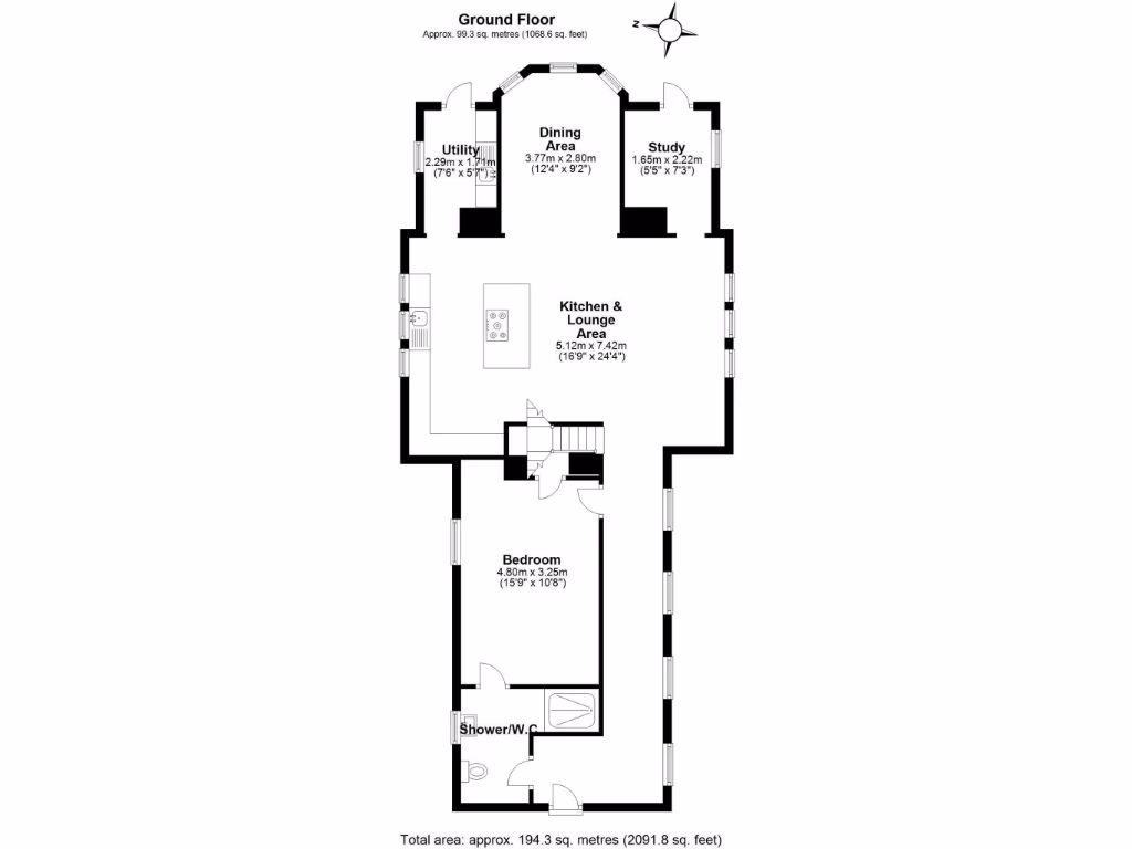
Approximately 2,091 sq ft (194.3 sq m) of versatile, multi-level living space
Ground-floor bedroom with en-suite; ideal for multi-generational use or guests
Open-plan modern kitchen with island, wine cooler and integrated appliances
Gated enclosed driveway with ample off-street parking and extensive wooden decking
Slow local broadband speeds — may limit high-bandwidth home working
Local crime levels are above average; consider security measures
Council tax described as quite expensive — factor into running costs
A striking Victorian Gothic conversion, this former chapel delivers nearly 2,092 sq ft of character-rich living. High ceilings, arched stained-glass windows and exposed beams create a dramatic, light-filled interior that blends original features with a contemporary open-plan kitchen and living areas. The property is arranged over multiple levels and offers flexible space suitable for family life, home working and entertaining.
Ground-floor accommodation includes a reception hallway with stained glass, a large open-plan lounge and dining area with a log-burning stove, study, utility and a ground-floor bedroom with boutique en-suite. Upstairs provides a multi-use landing, the main bedroom and a third bedroom currently used as a dressing room, plus a generous main bathroom with bath and separate shower.
Outside is a gated, enclosed driveway with ample parking and extensive bespoke wooden decking that wraps the property — ideal for socialising and quiet relaxation. The location offers easy access to local schools, green spaces, and main road links, while nearby pools and countryside paths suit walkers and cyclists.
Practical points to note: broadband speeds are reported slow in the area, and local crime statistics are above the national average. Council tax is described as quite expensive. These factors should be considered alongside the home’s size, period charm and flexible layout when assessing suitability.
3 bedroom character property for sale in Willow House, The Furlongs, Shrewsbury, SY3 — £439,000 • 3 bed • 2 bath • 1330 ft²
6 bedroom character property for sale in Park Lane, Old Park, Telford, TF3 — £699,995 • 6 bed • 2 bath • 3700 ft²
3 bedroom detached house for sale in Outwoods, Newport, TF10 — £375,000 • 3 bed • 1 bath • 947 ft²
5 bedroom detached house for sale in Kynnersley, Telford, TF6 — £650,000 • 5 bed • 4 bath • 2683 ft²
4 bedroom detached house for sale in Shepherds Lane, Red Lake, Telford, Shropshire, TF1 — £475,000 • 4 bed • 2 bath • 2743 ft²
3 bedroom barn conversion for sale in Church Street, Hinstock, Market Drayton, TF9 — £600,000 • 3 bed • 2 bath • 2099 ft²


















































































































































































































