Private village setting with large garden and outdoor kitchen for social living.
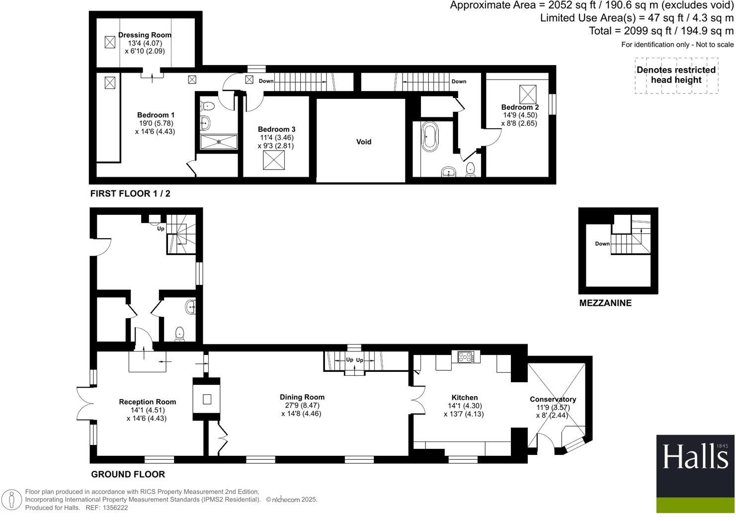
- Converted barn with exposed beams and double-height glazed frontage
- Spacious kitchen/breakfast room with conservatory access
- Principal suite with dressing room and ensuite bathroom
- Mezzanine study/gym could be used as fourth bedroom
- Outdoor kitchen, summerhouse bar and landscaped gardens
- Gated driveway with parking for multiple vehicles and cart shed
- Oil-fired heating (ongoing fuel/maintenance costs)
- Council Tax Band E and average rural broadband speeds
A striking barn conversion in the heart of Hinstock, Odd Fellows Hall combines original character with flexible family living. Wide, double-height spaces, exposed timbers and fireplaces give the house strong period appeal, while a high-spec farmhouse kitchen, conservatory and mezzanine study/gym create practical modern comfort. The property sits on a generous village plot with mature planting, gated driveway and parking for multiple vehicles, plus a fully equipped outdoor kitchen and summerhouse bar for entertaining.
Accommodation is arranged over multiple levels to suit family routines: a principal suite with dressing room and ensuite, two further double bedrooms, a mezzanine that can serve as a fourth bedroom or home gym, and generous reception rooms ideal for gatherings. Practical features include double glazing, oil-fired boiler and a cellar for storage. The layout offers scope for adaptation if buyers wish to reconfigure spaces or add personal upgrades.
Buyers should note a few practical considerations. Heating is oil-fired, so expect ongoing fuel and maintenance costs; the property is council tax band E, above average for the area. Broadband speeds are average for a rural location. An outbuilding shows significant ivy cover that may need attention. Overall, this is a characterful, sizeable home suited to families or buyers seeking countryside lifestyle and versatile indoor/outdoor entertaining space.
4 bedroom barn conversion for sale in Brookend Barn, Hinstock, TF9 — £695,000 • 4 bed • 3 bath • 1847 ft²
4 bedroom barn conversion for sale in Coley Mill Barns, Coley Lane, Newport, TF10 — £624,950 • 4 bed • 2 bath • 2864 ft²
Parking for sale in High Offley, Stafford, Staffordshire, ST20 — £425,000 • 5 bed • 2 bath • 1512 ft²
5 bedroom barn conversion for sale in Red House Farm, Longdon-Upon-Tern, Telford, Shropshire, TF6 6LE, TF6 — £675,000 • 5 bed • 3 bath • 2492 ft²
3 bedroom barn conversion for sale in Owl Barn, Brockton Grange Farm, Blymhill/Great Chatwell, TF11 — £475,000 • 3 bed • 2 bath • 1050 ft²
4 bedroom barn conversion for sale in Hopton, Nesscliffe, Shrewsbury, SY4 — £675,000 • 4 bed • 2 bath • 1826 ft²










































































































