Move-in ready mid-terrace with garage and garden near the high street.
Three double bedrooms, principal with en suite
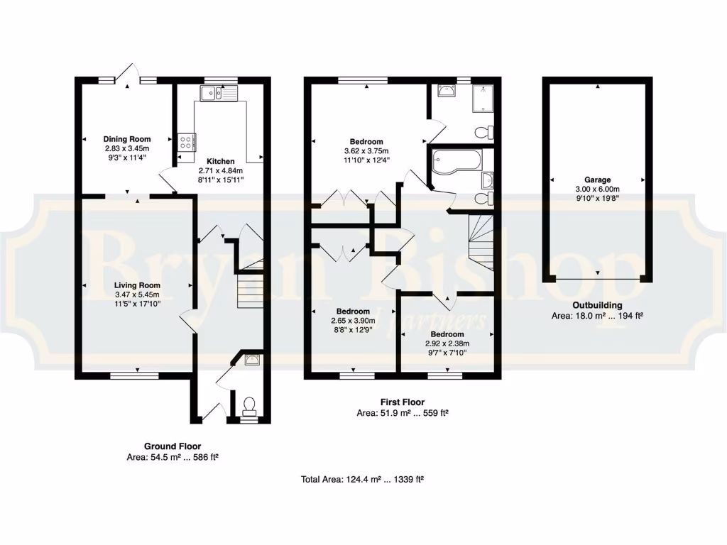
A well-presented three-bedroom mid-terrace townhouse set in a peaceful, small development just yards from Welwyn village centre. The house offers generous living space across two storeys, including a long kitchen and a large front living room that link easily with a dining area and the rear garden — a practical layout for family life and entertaining.
The principal bedroom benefits from a luxury en suite, while a guest cloakroom and family bathroom add useful flexibility. The rear garden is tiered with a raised deck for outdoor dining, and the property includes a separate garage en bloc and block-paved parking. Recent double glazing and gas central heating provide efficient everyday comfort, and broadband and mobile signals are strong in the area.
This freehold home presents as move-in ready with tasteful fixtures and fittings throughout, suiting buyers who want a straightforward transition into village living with easy access to Welwyn Garden City and fast rail links to London Kings Cross. The location supports convenient day-to-day life with shops, schools and amenities within a short walk.
Notable considerations: the plot is modest with a small front garden and compact overall footprint typical of mid-terrace houses. Council tax is described as expensive, and while well maintained, the property sits within a tightly arranged development where external space is limited compared with detached alternatives.
3 bedroom end of terrace house for sale in Welwyn Hall Gardens, Welwyn, AL6 — £645,000 • 3 bed • 2 bath • 1212 ft²
3 bedroom semi-detached house for sale in Butterwick Way, Welwyn, AL6 — £750,000 • 3 bed • 2 bath • 1337 ft²
3 bedroom house for sale in Church Street, Welwyn, AL6 — £775,000 • 3 bed • 1 bath • 1600 ft²
3 bedroom end of terrace house for sale in Welwyn By Pass Road, Welwyn, AL6 — £450,000 • 3 bed • 2 bath • 1172 ft²
3 bedroom terraced house for sale in Layton Street, Welwyn Garden City, AL7 — £500,000 • 3 bed • 2 bath • 1060 ft²
3 bedroom terraced house for sale in High Street, Welwyn, Hertfordshire, AL6 — £550,000 • 3 bed • 2 bath • 943 ft²






































































