Contemporary family home with generous garden and flexible living spaces.
- New-build four-bedroom detached house with energy-efficient construction
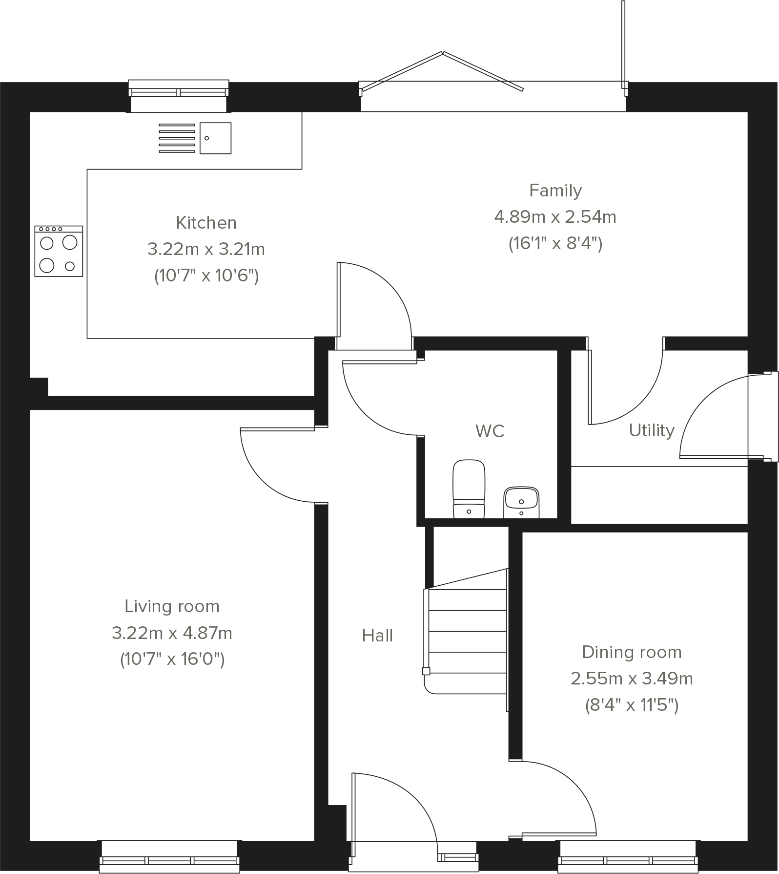
- Open-plan kitchen/family room with bi-fold doors to garden
- Separate living room, dining room, downstairs WC and utility
- En suite to principal bedroom; only one bathroom in property
- Large plot with private garden and single garage parking
- Overall internal size is compact (approx. 509 sq ft)
- Very slow local broadband speeds; excellent mobile signal
- Low crime area in an affluent part of Melton Mowbray
West View Cottage is a newly built, energy-efficient four-bedroom detached house on Nottingham Road, offering contemporary living with flexible space for modern family life. The ground floor features an open-plan kitchen/family room with bi-fold doors to the garden, plus separate living and dining rooms for everyday and formal use. A useful utility and ground-floor WC add practical convenience, while a single garage provides on-plot parking.
Upstairs, the principal bedroom includes an en suite and there is an additional study ideal for a home office. The property sits on a large plot with private outdoor space and benefits from low local crime and excellent mobile signal. The development’s red brick and contemporary finishes deliver good kerb appeal and likely long-term efficiency savings.
Notable limitations: the overall internal size is compact (approx. 509 sq ft) for a four-bedroom house, and the listing records just one bathroom (the en suite), which may be restrictive for larger households. Broadband speeds in the area are reported as very slow, which could affect those needing reliable high-speed internet for remote working or streaming. Buyers should also confirm final council tax banding post-occupation.
This home will suit families seeking a modern, low-maintenance new build with flexible living and outdoor space, or investors wanting a contemporary property in an affluent Melton Mowbray neighbourhood — but viewings should include close attention to room sizes and the single-bathroom layout.
3 bedroom semi-detached house for sale in Nottingham Road,
Melton Mowbray,
Leicestershire,
LE130NX, LE13 — £349,995 • 3 bed • 1 bath • 419 ft²
5 bedroom detached house for sale in Nottingham Road,
Melton Mowbray,
Leicestershire,
LE130NX, LE13 — £599,995 • 5 bed • 1 bath • 1332 ft²
3 bedroom semi-detached house for sale in Nottingham Road,
Melton Mowbray,
Leicestershire,
LE130NX, LE13 — £294,995 • 3 bed • 1 bath • 587 ft²
4 bedroom detached house for sale in Nottingham Road,
Melton Mowbray,
Leicestershire,
LE130NX, LE13 — £484,995 • 4 bed • 1 bath • 1205 ft²
3 bedroom semi-detached house for sale in Nottingham Road,
Melton Mowbray,
Leicestershire,
LE130NX, LE13 — £294,995 • 3 bed • 1 bath • 587 ft²
4 bedroom detached house for sale in Burton Road,
Melton Mowbray,
LE13 — £479,950 • 4 bed • 1 bath • 1102 ft²


























































































