**Standout Features:**
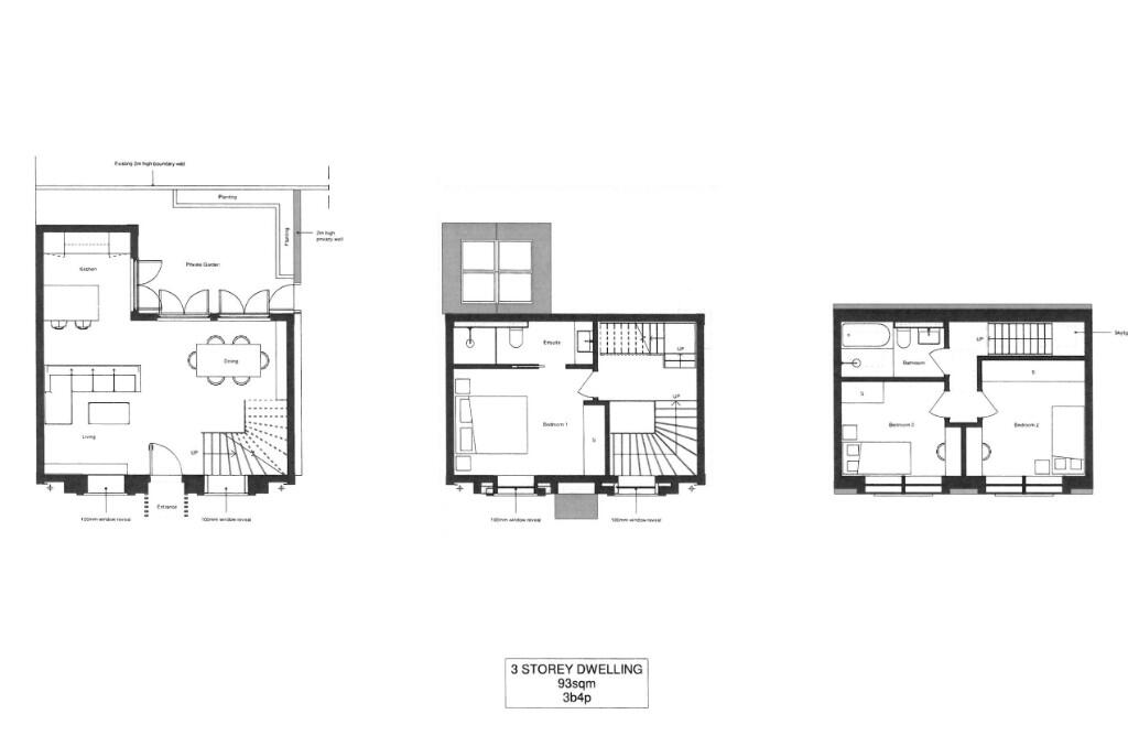
- Full planning permission for a three-bedroom detached house.
- Off-street parking for two vehicles.
- Courtyard garden at the rear.
- Ideal family-friendly layout over three floors.
- Located near Ramsgate Town with good amenities.
**Summary:**
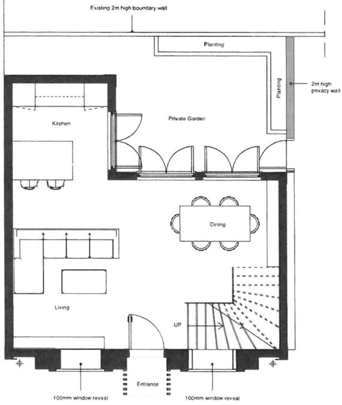
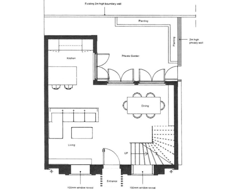
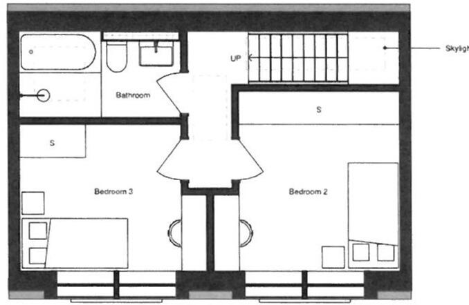
This exceptional building plot presents a unique opportunity to construct a three-bedroom detached house with full planning permission in the desirable Ramsgate area. Envision a beautiful family home featuring a modern open-plan living/dining area and kitchen on the ground floor, perfect for entertaining. The well-thought-out design includes the principal bedroom with en-suite on the first floor, plus two additional bedrooms and a family bathroom set on the second floor.
Off-street parking for two vehicles and a charming courtyard garden to the rear add to the appeal, making this plot ideal for families seeking a cozy outdoor space. Close to essential amenities and reputable schools, it offers a blend of convenience and comfort. Potential buyers will appreciate the prospect of creating their perfect home in a friendly community setting. With a competitive price of £125,000 and chain-free status, this is a rare opportunity that won’t last long.
Plot for sale in Carlton Avenue, Ramsgate, CT11 — £125,000 • 1 bed • 1 bath • 1001 ft²
Residential development for sale in 1A Carlton Avenue, Ramsgate, Kent, CT11 — £125,000 • 3 bed • 1 bath • 871 ft²
Land for sale in Ramsgate Road, Margate, CT10 — £600,000 • 1 bed • 1 bath • 1571 ft²
Land for sale in Effingham Street, Ramsgate, CT11 — £140,000 • 1 bed • 1 bath
Plot for sale in Yorkstones, Cliff Promenade, Broadstairs, CT10 — £280,000 • 3 bed • 2 bath
Plot for sale in Plot 9 at South Cliff Parade, Broadstairs CT10 — £650,000 • 4 bed • 1 bath • 3251 ft²


























































