**Property Highlights:**
- **Guide Price:** £275,000 - £300,000
- **Plot Size:** Very large with substantial boundary, ideal for development
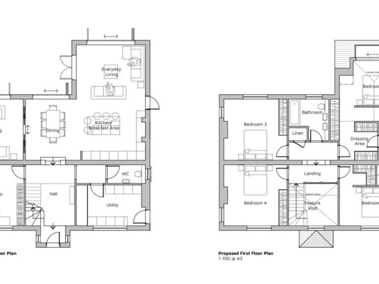
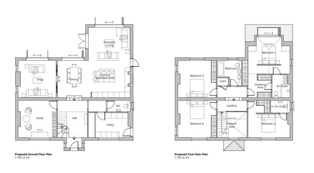
- **Planning Consent:** Approved for a single detached dwelling and car barn (Ref: 24/02390/FUL)
- **Location:** On the border of Swanley Village with excellent transport links to London
- **Privacy & Space:** Adjacent to established trees, creating a semi-rural environment
- **Suitability:** Excellent for couples, families, or investors seeking a new build opportunity
Discover an exceptional opportunity to secure a large single plot on the scenic border of Swanley Village, perfect for building your dream home. This unique property comes with planning consent to erect a modern detached dwelling, featuring a car barn and substantial landscaped grounds. With an ecological area and mature trees providing a tranquil setting, you can enjoy both privacy and a green outlook.
Situated for convenience, this plot offers excellent access to Swanley Station with a quick journey to London, along with ample local amenities and state and private schools nearby. As the sale is chain-free, you can embark on your development without delay. Embrace the potential to craft your personalized living space in a vibrant community—properties like this seldom last long in such a desirable area!
Take advantage of this rare chance to develop in a comfortable neighborhood with strong future potential. Viewing is essential to appreciate the expansive possibilities this plot offers.
Plot for sale in Fawkham Avenue, Longfield, DA3 — £1,000,000 • 4 bed • 2 bath • 2689 ft²
Land for sale in Brasted Hill Road, Brasted, Westerham, TN16 1NJ, TN16 — £600,000 • 1 bed • 1 bath • 3200 ft²
Plot for sale in Farningham Hill Road, DA4 0JR, DA4 — £350,000 • 4 bed • 1 bath • 1658 ft²
Plot for sale in Self Build Plot in Ivy Hatch, TN15 — £1,250,000 • 1 bed • 1 bath • 4210 ft²
Plot for sale in Edward Road, Sundridge Park, Kent, BR1 — £975,000 • 6 bed • 6 bath • 5934 ft²
Land for sale in Land Off Lullingstone Avenue, Swanley, BR8 — £125,000 • 3 bed • 1 bath • 806 ft²














