Three-bedroom semi with exceptional private garden and multi-car parking in popular Acomb..
Bay‑fronted living room with wood‑burning stove and high ceilings
Three well‑proportioned bedrooms; principal spans full house width
Large private rear garden with summer house, bar, sauna and hot tub space
Generous driveway providing off‑street parking for multiple cars
Conservatory extends living space and opens to the garden
Single family bathroom only; potential need for additional shower room
EPC rated D; glazing installed before 2002 may need upgrading
Freehold property built c.1900‑1929 in a comfortable neighbourhood
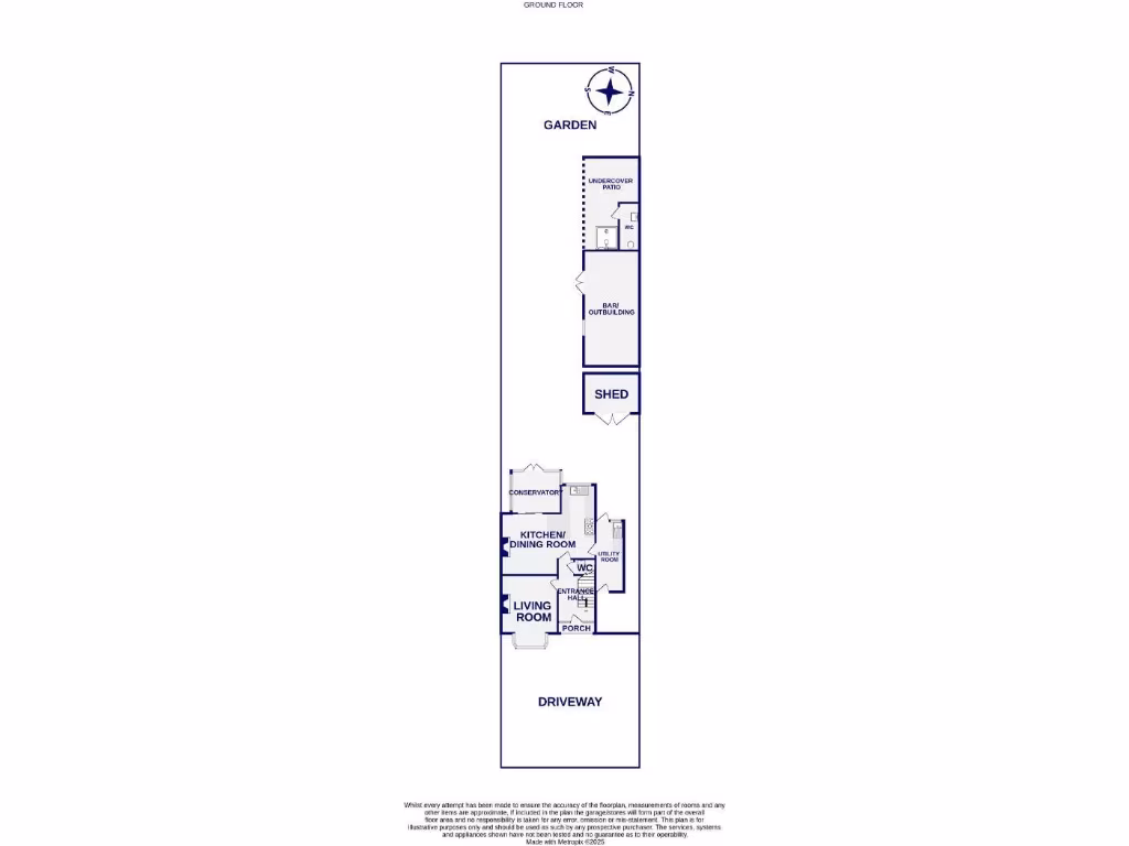
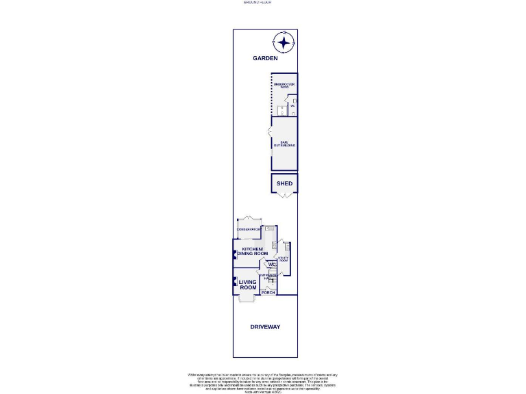
Set on a popular Acomb street, this substantial three‑bedroom semi offers generous family living across two floors. The bay‑fronted living room, shaker‑style kitchen with dining space and a glazed conservatory give flexible ground‑floor accommodation and plenty of natural light. The principal bedroom spans the house front; two further bedrooms suit children, guests or a home office.
The rear garden is a clear highlight — large, private and arranged for entertaining with an outbuilding, summer house with fitted bar and sauna, outside shower, separate WC and a covered area suitable for a hot tub or seating. A wide block‑paved driveway provides off‑street parking for multiple cars and gated side access adds convenience. The property is freehold and located close to Acomb Front Street shops, good schools and transport links into York.
Practical points to note: the EPC is rated D, double glazing dates from before 2002 and there is a single family bathroom, so some buyers may wish to update heating, glazing or add a shower room. Overall the house appears well cared for but offers clear scope for light modernisation to increase comfort and value. This will suit a growing family seeking a roomy period home in a leafy, well‑connected neighbourhood.
3 bedroom semi-detached house for sale in Moorgate, York, YO24 4HR, YO24 — £500,000 • 3 bed • 1 bath • 1027 ft²
3 bedroom semi-detached house for sale in Dijon Avenue,York,YO24 3DD, YO24 — £300,000 • 3 bed • 1 bath • 842 ft²
3 bedroom semi-detached house for sale in Chestnut Grove, Acomb, York, YO26 — £395,000 • 3 bed • 2 bath • 750 ft²
3 bedroom semi-detached house for sale in Hamilton Drive West, York, North Yorkshire, YO24 — £300,000 • 3 bed • 1 bath • 951 ft²
2 bedroom semi-detached house for sale in Shirley Avenue, York, YO26 — £294,000 • 2 bed • 1 bath • 835 ft²
2 bedroom semi-detached house for sale in Melwood Grove, York, YO26 — £350,000 • 2 bed • 1 bath • 688 ft²


















































































