Renovation opportunity with garage and sizeable garden near shops and transport.
Three bedrooms with reception and separate diner or optional open plan
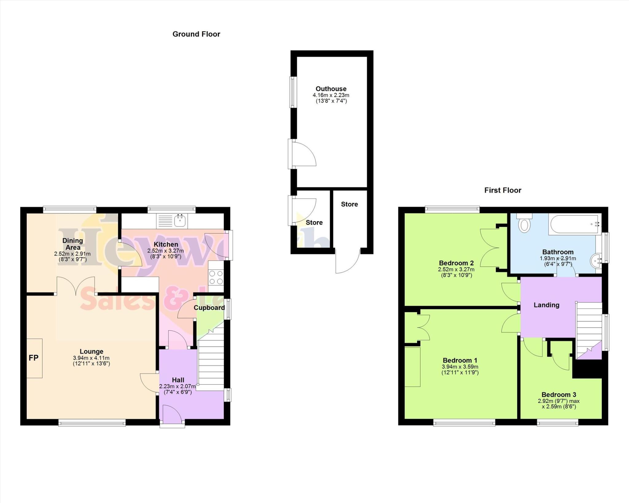
This three-bedroom semi-detached house sits centrally in Barrow, close to shops, bus routes and local amenities. The property offers a reception room and separate diner with scope for an open-plan layout, plus a kitchen, three bedrooms and a family bathroom — a practical layout for household living.
Outside there are front and sizeable rear gardens, an outhouse and a garage, giving space for parking, storage and outdoor projects. The plot is decent for the street and the garden presents scope for landscaping or extension (subject to planning).
The house requires updating and renovation throughout, offering clear scope to increase value by modernising kitchens, bathroom and decor. Constructed mid-20th century with filled cavity walls, mains gas boiler and pre-2002 double glazing, it’s fundamentally sound but will need cosmetic and some fabric work.
Affordable running costs are a positive: council tax Band A and very low local crime. The surrounding area is a challenged, working-class neighbourhood with higher deprivation indicators — buyers should weigh community context when considering long-term plans. A virtual tour is available for an initial inspection.
3 bedroom house for sale in Worcester Street, Barrow In Furness, LA13 — £163,000 • 3 bed • 1 bath • 526 ft²
3 bedroom house for sale in Reynolds Place, Barrow In Furness, Cumbria, LA14 — £189,950 • 3 bed • 2 bath • 743 ft²
3 bedroom house for sale in Doncaster Place, Barrow In Furness, LA13 — £163,000 • 3 bed • 1 bath • 535 ft²
3 bedroom house for sale in Holker Street, Barrow In Furness, LA14 — £119,950 • 3 bed • 1 bath • 708 ft²
3 bedroom house for sale in Dundas Street, Barrow In Furness, LA14 — £119,500 • 3 bed • 1 bath • 629 ft²
2 bedroom house for sale in Meadowlands Avenue, Barrow In Furness, LA13 — £219,950 • 2 bed • 1 bath • 737 ft²






















































